37

Julianaplein 16

Bussum

€365.000 k.k.
  • SoortGalerijflat , Appartement
  • Kosteninfo €365.000 k.k.
  • Woonoppervlakte64 m2
  • Perceel0 m2
  • Inhoud215 m3
  • Kamers2
  • Slaapkamers1
  • EnergielabelD

Omschrijving

TE KOOP: ROYAAL HOEKAPPARTEMENT JULIANAPLEIN 16 TE BUSSUM MET RUIM BALKON OP HET ZUIDWESTEN, GELEGEN IN HET CENTRUM

ALGEMENE OMSCHRIJVING:
Midden in het bruisende centrum van Bussum, op loopafstand van het NS-station, de bushalte, winkels en gezellige restaurants, staat dit lichte 2-kamer(voorheen 3-kamer) hoekappartement te koop. Het appartement bevindt zich op het mooiste stukje van het gewilde appartementengebouw aan het Julianaplein, direct aan de Veerstraat. Dankzij de gunstige hoekligging geniet u hier nagenoeg de hele dag van de zon én een fraai uitzicht op het Julianaplein.
Het appartement ligt op de 2e verdieping van het gebouw en heeft een ruim balkon van maar liefst 13 m² op het zuidwesten, ideaal om de gehele dag lekker van het zonnetje te genieten.

INDELING:
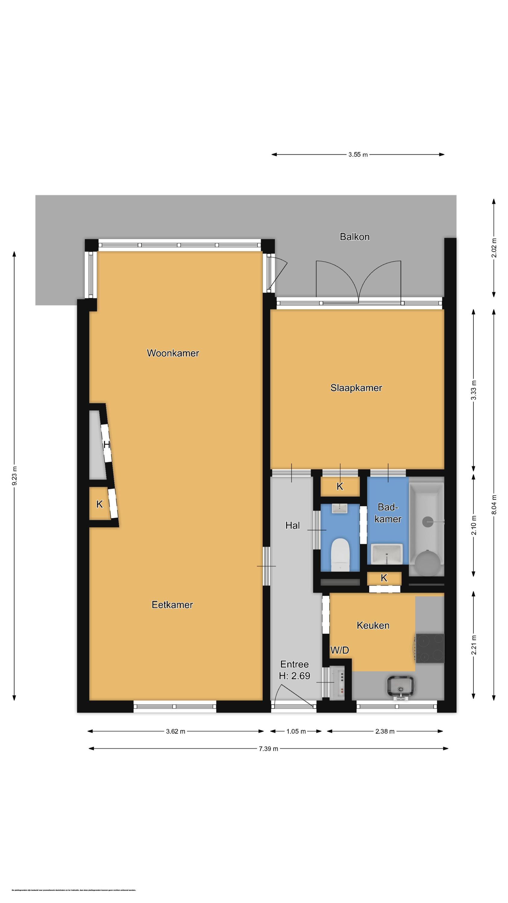
Via de centraal afgesloten entree met video-intercominstallatie komt u binnen op de begane grond. Hier vindt u het trappenhuis, de lift en toegang tot de gemeenschappelijke fietsenberging. Op de tweede verdieping komt u het appartement binnen in de hal, voorzien van video-intercom, meterkast en een toilet met fontein.
De lichte woon- en eetkamer, gelegen op de hoek, biedt veel daglicht en toegang tot het balkon. De gesloten keuken bevindt zich aan de galerijzijde van het appartement.
De ruime slaapkamer heeft openslaande deuren naar het balkon, een vaste kast en directe toegang tot de badkamer. De badkamer is voorzien van een wastafel, ligbad met douche en een elektrische boiler (eigendom). Tevens beschikt het appartement over een eigen berging op dezelfde etage (6 m²).

VERDUURZAMING VVE:
Het gebouw wordt uitstekend onderhouden door een zeer gezonde Vereniging van Eigenaren (VvE). In het tweede kwartaal van 2026 start de VvE met een uitgebreid verduurzamings- en onderhoudsplan. Dit plan omvat onder meer het onderhoud en de isolatie van het dak, na-isolatie van gevels en winkelvloeren, coating van de galerijen, verbetering van leidingwerk, riolering en ventilatie, en vervanging van de kozijnen aan de achtergevel (galerijkant).
Voor dit verduurzamingsplan draagt het appartement bij via een gezamenlijke VvE-lening van € 36.588 met een looptijd van 20 jaar. Dit resulteert in een maandelijkse toevoeging aan de servicekosten van € 258,98 (rente en aflossing). Eigenaren kunnen hun aandeel in de lening jaarlijks boetevrij (ook in delen) vervroegd aflossen. Desgewenst kan de koper dit bedrag ook meenemen in een bouwdepot bij de hypotheekaanvraag.

KENMERKEN EN BIJZONDERHEDEN:
• Centrale ligging: in hartje Bussum, op loopafstand van het NS-station, bushalte, winkels en restaurants.
• 2-kamer (voorheen 3-kamer) hoekappartement met extra ruim balkon op het zuidwesten (13 m²).
• Het appartement kan naar eigen smaak worden ingericht.
• Gemeenschappelijke fietsenberging, lift, droogzolder, afgesloten centrale entree met video-intercom.
• Verwarming via blokverwarming.
• Goed onderhouden en gezonde VvE.
• Verduurzamings- en onderhoudsplan VvE: start Q2 2026, inclusief isolatiemaatregelen.
• Bouwjaar: 1958
• Woonoppervlakte: 64 m²
• Inhoud: 215 m³
• Berging: 6 m²
• Bijdrage VvE: € 221,84 per maand (2026), exclusief voorschot stookkosten van € 126,00.
• Energielabel D

CLAUSULES IN DE KOOPAKTE:
• Niet-bewoningsclausule
• Asbestclausule
• Ouderdomsclausule

SAMENVATTING:
Dit zonnige hoekappartement in het centrum van Bussum is ideaal voor wie wil wonen met alle voorzieningen binnen handbereik en tegelijk wil genieten van de zon. Dankzij het ruime balkon, de goede lichtinval en de solide VvE met toekomstgericht verduurzamingsplan, is dit dé kans die je niet iedere dag tegenkomt. Het appartement biedt volop mogelijkheden om het naar eigen smaak in te richten. Kom gerust eens kijken en ervaar zelf de charme van deze unieke plek in Bussum!
brochure

Waar staat dit huis?

Julianaplein 16, Bussum

Woningvideo

Plattegronden

Afspraak maken

Laat uw gegevens achter en wij nemen zo spoedig mogelijk contact met u op.