20

Hoogeveenseweg 0 ong

Bruntinge

€775.000 k.k.
  • SoortEengezinswoning , Woonhuis
  • Kosteninfo €775.000 k.k.
  • Woonoppervlakte175 m2
  • Perceel1758 m2
  • Inhoud600 m3
  • Kamers5
  • Slaapkamers4
  • EnergielabelA+++
Woningen met een energielabel A of beter

Omschrijving

NIEUW TE BOUWEN VRIJSTAANDE PLATTELANDSWONING OP EEN PRACHTIGE LANDELIJKE LOCATIE!

Uw eigen droomhuis realiseren? Op een mooie locatie in het buurtschap Bruntinge kunt u uw woonwens in vervulling laten gaan op deze bouwkavel van 1758m². Op de kavel mag een vrijstaande plattelandswoning met schuur worden gerealiseerd. NUTS-voorzieningen reeds aanwezig.

MOGELIJK ONTWERP:
Om het u makkelijk te maken is er door een architect reeds een ontwerp (inclusief een indicatieve berekening van de bouwkosten) gemaakt voor een prachtige vrijstaande woning in landelijke stijl (met een woonoppervlakte van circa 175m²). Ook is er een 2e ontwerp (met bouwkostenberekening) voor een andere type woning beschikbaar.
Wilt u toch liever uw eigen ontwerp? De architect helpt u hier graag mee verder.

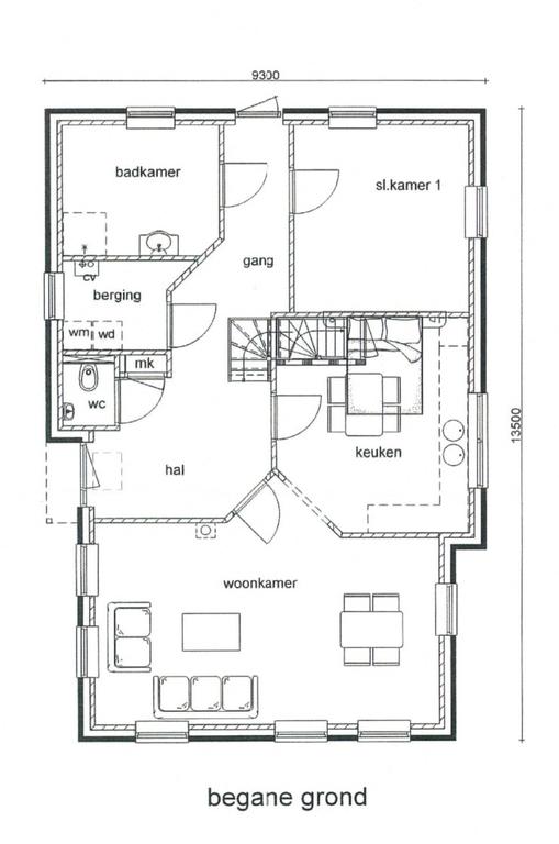
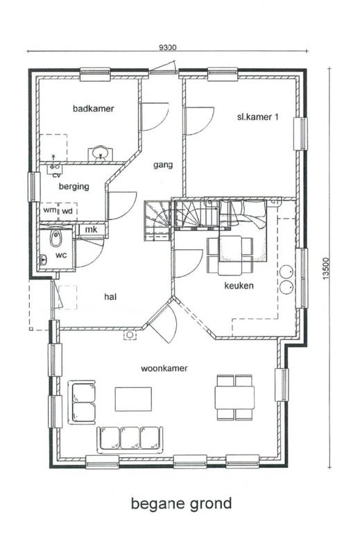
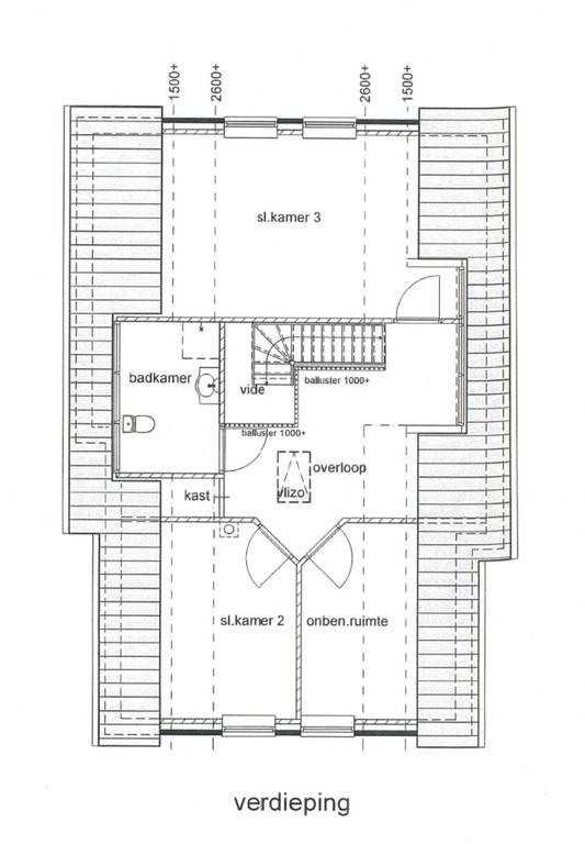
Indeling (zie toegevoegde plattegrond):
Begane grond: hal/entree, toilet, bijkeuken, woonkamer met halfopen woonkeuken, slaapkamer en badkamer.
Eerste verdieping: overloop, 3 slaapkamers en een badkamer.
Tweede verdieping: bergzolder bereikbaar via vlizotrap.

OMGEVING/LIGGING:
De bouwkavel is gelegen in het prachtige buurtschap Bruntinge, op een locatie midden in de natuur met weidse uitzichten en toch op 5 minuten van de gezellige dorpen Westerbork en Beilen met alle denkbare voorzieningen. De prachtige natuurgebieden Het Mantingerzand en Scharreveld zijn op loop-/fietsafstand gelegen. Tevens centrale ligging t.o.v. uitvalswegen, binnen 10 autominuten zit u op de A28 of N381.

Voor meer informatie neem gerust contact met ons op.

Contactpersoon

Afspraak maken

Laat uw gegevens achter en wij nemen zo spoedig mogelijk contact met u op.