42

Kerklaan 17

Amstelhoek

€935.000 k.k.
  • SoortHerenhuis , Woonhuis
  • Kosteninfo €935.000 k.k.
  • Woonoppervlakte238 m2
  • Perceel160 m2
  • Inhoud811 m3
  • Kamers5
  • Slaapkamers3
  • EnergielabelA
Woningen met een energielabel A of beter

Omschrijving

Luxe, sfeervol huis nabij centrum Uithoorn met label A

U kunt uw auto (en elektrische auto) parkeren op eigen terrein. Via de voortuin bereikt u de twee voordeuren: de linker voordeur biedt toegang tot de begane grond, en via de rechter voordeur bereikt u de woning op de 1e en 2e verdieping. Intern zijn beide delen met elkaar verbonden, zodat het ook als één ruim geheel te gebruiken is.

De begane grond is momenteel ingericht als woon-/werkruimte, met een sfeervolle ruimte die bijvoorbeeld als kantoor, praktijk, atelier of studio kan dienen. U treft hier tevens een keuken, toilet en berging. Hierdoor is het mogelijk om hier een kleinschalig bedrijf aan huis te voeren (zie de optieplattegronden voor indelingsvoorbeelden). Indien gewenst is de begane grond ook relatief eenvoudig te wijzigen naar een zelfstandige woonruimte voor bijvoorbeeld een inwonend kind, au-pair of ouder.

Op de 1e verdieping bevindt zich een royale en lichte woonkamer, een ruime woonkeuken met luxe inrichting en toegang tot een riant terras, plus een toiletruimte.
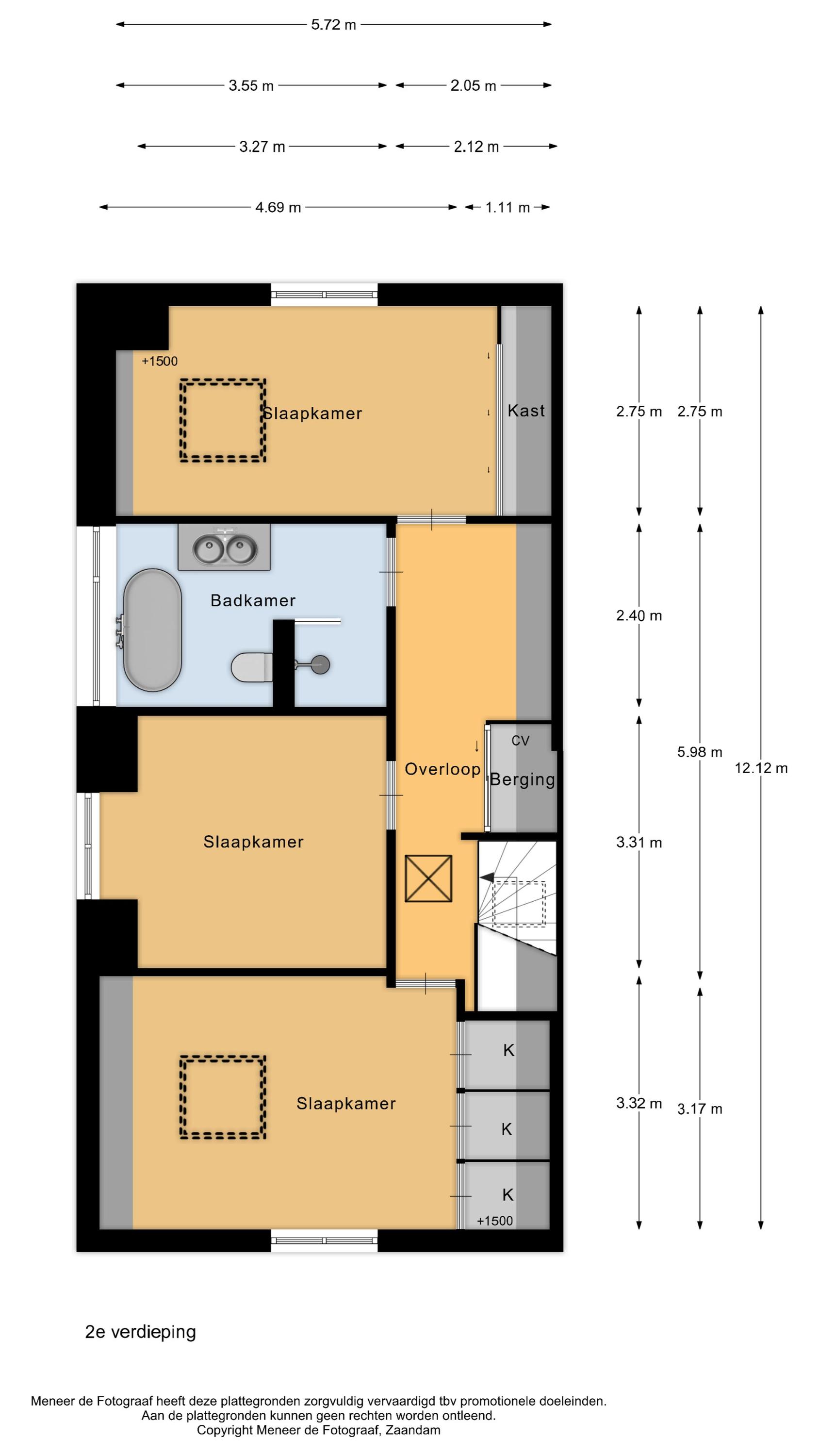
Op de 2e verdieping zijn drie grote slaapkamers aanwezig, alle met indrukwekkende hoogte en zichtbare houten balken. Ook is hier een luxe badkamer en veel bergruimte. In het hele huis valt het prachtige daglicht op en op diverse plekken heeft u fraaie doorkijkjes richting de rivier de Amstel.

De woning ligt op loopafstand van winkelcentrum Amstelplein en gezellige horeca aan de Amstel. Openbaar vervoer is dichtbij, met een directe busverbinding richting Utrecht en tramverbindingen richting Amsterdam, dat binnen 30 minuten bereikbaar is. Ook uitvalswegen richting Amsterdam, Utrecht en Schiphol liggen zeer gunstig. Scholen en sportvoorzieningen zijn per fiets eenvoudig bereikbaar.

De feiten op een rij:
- Gebouwd in 1930, oorspronkelijk gebruikt voor handel en ambacht; later o.a. stempelfabriek en timmerfabriek. Nu in gebruik als heerlijk familiehuis met mogelijkheid tot werken aan huis.
- Bestemming: Wonen, met op de begane grond tevens mogelijkheid voor bedrijf aan huis (zie optieplattegronden).
- Twee voordeuren aanwezig (nummers 15 en 17): links toegang tot de begane grond, rechts tot 1e en 2e verdieping.
- Grondige verbouwing in 2019: o.a. elektra, dak, kozijnen, keuken, badkamer, afwerking en isolatie vernieuwd.
- Energielabel A.
- Begane grond met vloerverwarming, woon-/werkruimte, keuken, toilet en berging.
- Begane grond eenvoudig te wijzigen naar indeling met woonkamer, slaapkamer, badkamer en keuken.
- 1e verdieping: royale woonkamer, ruime woonkeuken met luxe inrichting, toiletruimte en toegang tot riant terras.
- 2e verdieping: drie grote slaapkamers, luxe badkamer en bergruimte.
- Luxe afwerking: strak stucwerk, deels gietvloer, deels lamelparket.
- Overal veel daglicht en diverse doorkijkjes richting de Amstel.
- Heerlijk groot terras bereikbaar vanuit de woonkeuken.
- Tuin toegankelijk vanuit de woon-/werkruimte op de begane grond.
- Parkeren op eigen terrein met laadmogelijkheid.
brochure

Waar staat dit huis?

Kerklaan 17, Amstelhoek

Plattegronden

Afspraak maken

Laat uw gegevens achter en wij nemen zo spoedig mogelijk contact met u op.