58

Beethovenstraat 24

Akersloot

Verkocht onder voorbehoud
  • SoortEengezinswoning , Woonhuis
  • Kosteninfo Verkocht onder voorbehoud
  • Woonoppervlakte112 m2
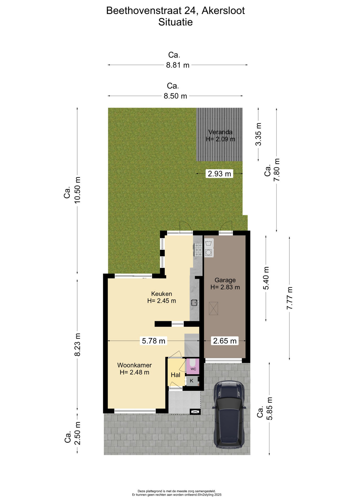
  • Perceel254 m2
  • Inhoud481 m3
  • Kamers5
  • Slaapkamers4
  • EnergielabelC

Omschrijving

Hoekwoning met garage
Op zoek naar een sfeervolle, ruime én perfect gelegen woning in Akersloot? Deze prachtige hoekwoning met aangebouwde stenen garage aan de Beethovenstraat biedt alles wat u nodig heeft voor jarenlang woonplezier. Rustig gelegen tegenover een gezellig plein, op een royaal perceel van 254 m², met 112 m² woonoppervlakte, voelt thuiskomen hier als een warm welkom.

Comfortabel wonen zonder zorgen
Parkeerproblemen? Niet hier. U beschikt over een eigen oprit én een ruime garage met vliering. Via de verzorgde voortuin bereikt u de entree met overkapping – ideaal voor regenachtige dagen. De hal biedt toegang tot het toilet, de garderobe, meterkast en natuurlijk de lichte, uitgebouwde woonkamer.

Licht, ruimte en sfeer
De woonkamer is zowel aan de voorzijde als achterzijde uitgebouwd, wat zorgt voor een comfortabele, ruimtelijke leefomgeving. Dankzij de grote schuifpui, de raampartijen in de uitbouw én het zijraam komt er veel natuurlijk daglicht naar binnen. Het zitgedeelte aan de voorzijde biedt een sfeervol uitzicht op het plein, terwijl het eetgedeelte aan de achterzijde perfect aansluit op de open keuken.

Koken met plezier
De lange, rechte keukenopstelling loopt door in de uitbouw, waardoor u veel werkruimte én volop opbergruimte heeft. De keuken is uitgerust met diverse inbouwapparatuur en een groot 6-pits gasfornuis met oven – ideaal voor de kookliefhebber. Op de begane grond geniet u bovendien van het comfort van vloerverwarming.

Drie slaapkamers en moderne badkamer
Op de eerste verdieping bevinden zich drie fijne slaapkamers en een moderne badkamer met inloopdouche, wastafelmeubel, wandcloset en handdoekradiator. Via een vaste trap bereikt u de tweede verdieping, waar een sfeervolle, ruime slaapkamer met twee dakkapellen is gecreëerd. Hier treft u tevens de cv-opstelling op de overloop.

Genieten in de zonnige achtertuin
De achtertuin ligt op het zuidwesten, waardoor u de hele dag van de zon kunt genieten. Of u nu heerlijk wilt tafelen of wilt barbecueën met vrienden en familie: dit is de plek. Tijdens warme zomerdagen biedt de houten overkapping een prettige schaduwplek. Vanuit de tuin heeft u direct toegang tot de garage, waar tevens de wasmachine- en drogeraansluitingen zijn gesitueerd. De vliering zorgt voor extra bergruimte.

Verduurzaming
De woning is de afgelopen jaren uitgebreid verduurzaamd. Zo is bodemisolatie aangebracht met EPS-vlokken en zijn de gevels voorzien van steenwolisolatie. Ook het dak is van binnenuit geïsoleerd, waardoor warmteverlies aanzienlijk wordt beperkt. Alle kozijnen zijn uitgerust met dubbel glas en op het dak zijn zeven zonnepanelen geplaatst, elk met een vermogen van 415 Wp. Dankzij deze maatregelen is het energieverbruik verlaagd en het wooncomfort merkbaar verbeterd.

Locatie:
Akersloot is een prachtig dorp dat centraal ligt aan het Alkmaardermeer met een uitstekende bereikbaarheid. Op slechts enkele minuten afstand vindt u diverse winkels, een supermarkt en de plaatselijke haven. Het strand van Castricum is slechts 20 minuten fietsen, ideaal voor een dagje uit aan de kust. Daarnaast zijn er volop sportverenigingen en twee basisscholen in de buurt, wat de locatie ideaal maakt voor gezinnen.

Bijzonderheden:
2023: Toilet begane grond en badkamer vernieuwd
2016: Nieuwe houten voordeur geplaatst met HR++ glas
2015: Overkapping geplaatst en wanden en plafonds op de eerste en tweede verdieping v.v. glad stucwerk
2014: Nieuwe binnendeuren, dak v.v. nieuw dakfolie, panlatten, dakpannen en een nieuw dakraam
2013: Nieuwe keuken geplaatst en wanden en plafond begane grond v.v. glad stucwerk
2004: Uitbouw aan de achterzijde en garage met vliering aan de zijkant gebouwd
1993: Erker met aangrenzend afdak boven de voordeur gebouwd

Kortom: deze hoekwoning biedt een ideale combinatie van ruimte, comfort, licht en ligging. Bent u op zoek naar een instapklare woning met volop mogelijkheden? Dan is dit uw kans. Maak snel een afspraak en ervaar zelf hoe fijn thuiskomen aan de Beethovenstraat kan zijn!

Interesse in deze woning?! Schakel direct uw eigen NVM-aankoopmakelaar in. Uw NVM-aankoopmakelaar komt op voor úw belang en bespaart u tijd, geld en zorgen. Adressen van collega NVM-aankoopmakelaars vindt u op Funda.
brochure

Waar staat dit huis?

Beethovenstraat 24, Akersloot

Woningvideo

Plattegronden

Afspraak maken

Laat uw gegevens achter en wij nemen zo spoedig mogelijk contact met u op.