32

Steenplaat 20

Zeewolde

€495.000 k.k.
  • SoortEengezinswoning , Woonhuis
  • Kosteninfo €495.000 k.k.
  • Woonoppervlakte128 m2
  • Perceel247 m2
  • Inhoud452 m3
  • Kamers5
  • Slaapkamers4
  • EnergielabelC

Omschrijving

Weer beschikbaar – nu met vergroot perceel en bouwkundige goedkeuring | Perceel van 226 m² naar 247,6 m² | Instap klaar | Vraagprijs € 495.000 k.k.

Deze royale hoekwoning, met veel licht, ruimte én een unieke ligging is opnieuw op de markt en biedt nog meer dan voorheen. Het perceel is officieel vergroot met circa 21,6 m² naar een totaal van circa 247,6 m². Daarnaast heeft de woning een positieve bouwkundige keuring doorlopen. Met vier volwaardige kamers, een brede uitbouw, (over de volledige breedte plus nog eens twee meter opzij) en een diepe achtertuin op een uitstekende locatie vormt dit een compleet woonpakket voor wie ruimte, comfort en natuur in balans zoekt.

Wonen aan het park – alles binnen handbereik
De ligging van deze woning is bijzonder: Stelt u zich voor dat u via uw poort aan de achterzijde direct een groen park in loopt. Via de dijk bereikt u vervolgens het Wolderwijd. Wanneer u met uw gezicht naar de woning staat, dan loopt u rechtsaf binnen enkele minuten naar het centrum van Zeewolde. Daar vindt u voorzieningen als supermarkten, speciaalzaken, horecagelegenheden en de haven. Vanaf de naastgelegen speeltuin kunt u het centrum zelfs al zien. Aan de andere kant ligt zowel het bos, speelplekken en de MMM-boerderij op enkele minuten lopen.
U woont hier met uw voordeur op een rustige straat en uw achterdeur aan het groen. Dat maakt de locatie van de woning écht uniek.

Indeling en leefruimte
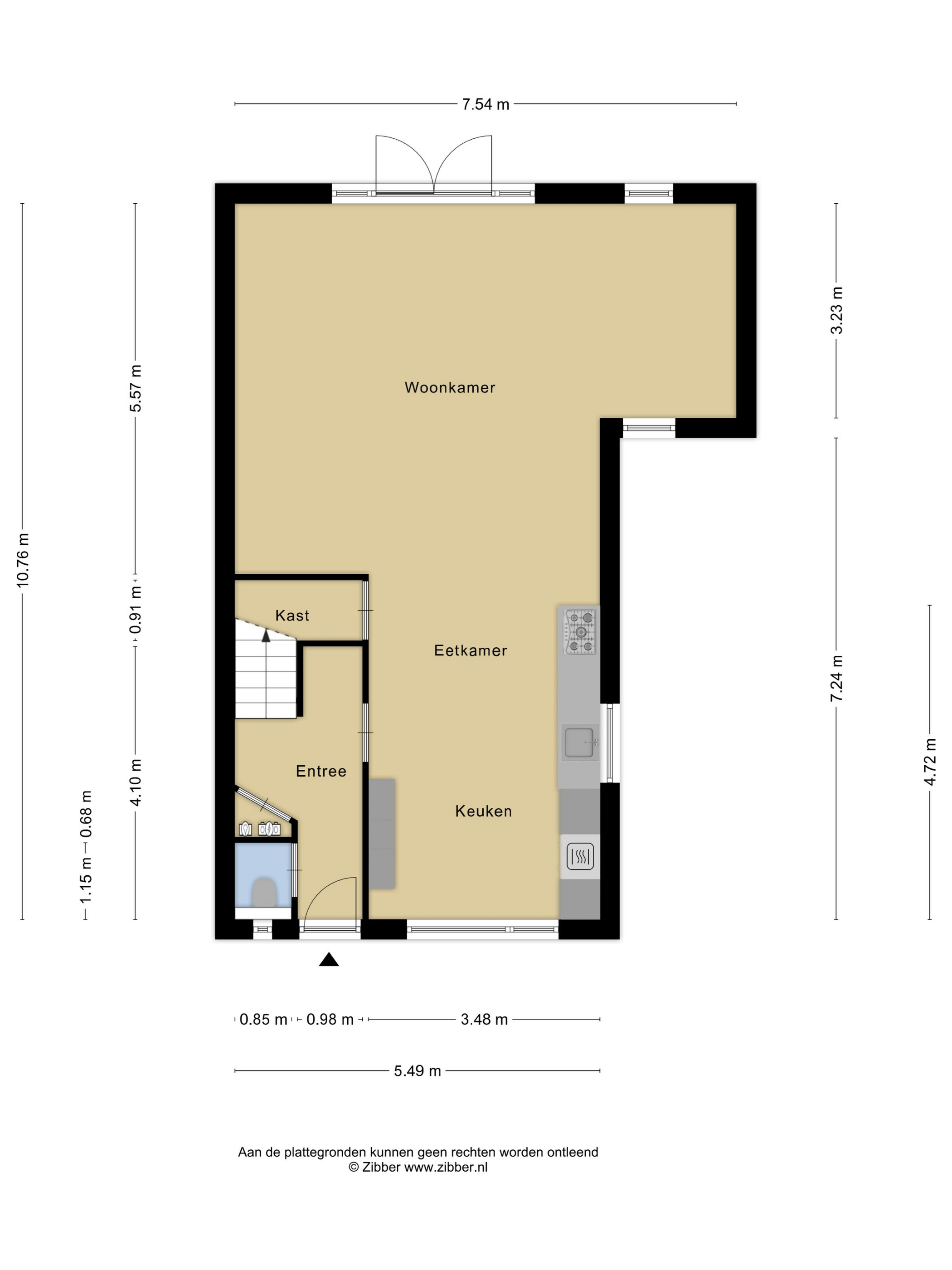
Begane grond
De entree biedt toegang tot een hal met meterkast, trapopgang en een modern afgewerkte toiletruimte met zwevend toilet.
De woonkamer is het hart van deze woning. Dankzij de uitbouw over de volle breedte (+ 2 meter extra opzij!) ontstaat een ruimte die zowel overzichtelijk als comfortabel aanvoelt. Ramen aan de voor- en zijzijde in combinatie met grote raampartijen aan de achterzijde, zorgen voor uitstekende lichtinval. De openslaande deuren verbinden de woonkamer naadloos met de tuin. Dit is een ruimte waar u zich dagelijks prettig voelt, of u nu ontspant, werkt of gasten ontvangt.
De open keuken aan de voorzijde is functioneel ingericht met een rechte opstelling. De inbouwapparatuur omvat een gaskookplaat met afzuigkap, combi-magnetron, oven, koel-/vriescombinatie en vaatwasser. Er is voldoende werk- en bergruimte, en vanuit de keuken heeft u zicht op zowel de straatzijde als het groen dat zich naast de woning bevindt.

Eerste verdieping
Op de eerste verdieping vindt u drie slaapkamers van goede afmetingen, geschikt als slaapkamers, kinderkamers, studeerkamer of kleedkamer. De badkamer is praktisch ingericht met een 2e toilet, douche, wastafel, en radiator.

Tweede verdieping
Via een vaste trap bereikt u de tweede verdieping. Hier ligt een ruime vierde kamer, momenteel ingericht als kantoorruimte. De ligging aan de achterzijde maakt het een rustige werkplek, geschikt voor thuiswerken. De kamer beschikt over veel daglicht en biedt in de wintermaanden, als de bomen hun bladeren hebben verloren, zelfs uitzicht op het Wolderwijd!
Op de overloop bevinden zich de aansluitingen voor wasmachine en droger, evenals de cv-ketel (Intergas HRE, 2016, eigendom) en de mechanische ventilatie.

Buitenruimte met vrije ligging
De achtertuin is diep en breed en gelegen op het noordoosten. Door het ontbreken van directe bebouwing aan de zijkant heeft u eigenlijk de perfecte balans: U profiteert hier gedurende het grootste deel van de dag van zowel zon als schaduwplekken. De tuin beschikt over een vrijstaande stenen berging en een achterom die direct uitkomt op het parkje.
Aan de voorzijde is parkeergelegenheid op eigen terrein, een praktisch voordeel in een woonwijk.

Kenmerken die het verschil maken

Woning en perceel
• Hoekwoning met uitbouw over de volle breedte (+2 meter opzij!)
• Perceel vergroot naar circa 247,6 m² (was 226 m² + circa 21,6 m²)
• Vier volwaardige kamers, waaronder een ruime kamer met overloop op zolder
• Bouwkundig rapport beschikbaar zonder verrassingen
• Direct te betrekken en volledig instap klaar.

Ligging en omgeving
• Rustige straat, aan het park
• Water, bos en MMM-boerderij binnen enkele minuten lopen
• Centrum, winkels, horeca en haven op loopafstand
• Natuurlijke sfeer, groen, goede zonligging omdat directe bebouwing naast de woning ontbreekt.

Comfort en afwerking
• Diepe achtertuin met berging, vrije ligging en ruime hoeveelheid zon
• Parkeergelegenheid op eigen terrein
• Gedeeltelijk voorzien van HR-glas, dak-, muur- en vloerisolatie
• Energielabel C (geldig tot 02-03-2027)
• CV-ketel Intergas HRE (2016, eigendom)
• In de winter: uitzicht op het Wolderwijd vanaf de kantoorruimte.

De omgeving: Eerste woonwijk van Zeewolde
U woont hier in de eerste woonwijk van Zeewolde, een rustige, groene buurt met een goed voorzieningenniveau. Scholen, sportfaciliteiten en speelplekken bevinden zich allemaal op loop- of fietsafstand.
Via het park achter de woning staat u via de dijk binnen enkele minuten aan het Wolderwijd of in het bos.
Het centrum van Zeewolde is te voet bereikbaar, evenals de haven en verschillende horecagelegenheden.
De combinatie van rust, natuur en voorzieningen maakt deze locatie geschikt voor gezinnen, werkende professionals en iedereen die zoekt naar een evenwichtige woonomgeving mét het gemak van alle voorzieningen dichtbij.

In het kort
Een royale hoekwoning met vier kamers, een uitgebouwde woonkamer en een diepe achtertuin op een vergroot perceel van circa 247,6 m² biedt ruimte en comfort in een groene en rustige straat. De ligging is direct aan een park en op loopafstand van water, bos en het centrum. De woning is bouwkundig goedgekeurd en volledig instap klaar.

Vraagprijs: € 495.000 k.k.
Bouwjaar: 1984
Woonoppervlakte: ca. 128 m²
Perceel: ca. 247,6 m² (vergroot met +21,6 m²)
Inhoud: ca. 452 m³
Energielabel: C (geldig tot 02-03-2027)

Bouwkundig rapport en NEN-2580 meetrapport beschikbaar op aanvraag

Alle verstrekte informatie moet beschouwd worden als een uitnodiging tot het doen van een bod of om in onderhandeling te treden. Er kunnen geen rechten worden ontleend aan deze woninginformatie.
ERA Makelaardij RENGER is de makelaar van de verkoper. Wij adviseren altijd om uw eigen makelaar mee te nemen voor uw belangenbehartiging bij de aankoop van uw toekomstige woning.
brochure

Waar staat dit huis?

Steenplaat 20, Zeewolde

Woningvideo

Plattegronden

Afspraak maken

Laat uw gegevens achter en wij nemen zo spoedig mogelijk contact met u op.