39

Keteldiep 16

Zeewolde

Verkocht onder voorbehoud
  • SoortEengezinswoning , Woonhuis
  • Kosteninfo Verkocht onder voorbehoud
  • Woonoppervlakte87 m2
  • Perceel322 m2
  • Inhoud325 m3
  • Kamers4
  • Slaapkamers3
  • EnergielabelB

Omschrijving

Op een zeer ruim perceel en in een rustige straat hebben wij deze HOEKWONING met 3 slaapkamers in de verkoop gekregen. Met de keuken gesitueerd aan de voorzijde van de woning blijft er een grote woon-/eetkamer over aan de achterzijde en de aangebouwde berging aan huis zorgt voor extra ruimte. Het bouwjaar van de woning is 1989, is volledig geïsoleerd en het woonoppervlakte bedraagt ca. 87 m2. De achtertuin ligt op het zuidoosten, is zeer ruim en bied vele mogelijkheden.

Op korte afstand van het centrum, scholen en op fietsafstand van het strand, de aanloophaven, sportfaciliteiten en het bosgebied is dit een ideale ligging. Om en nabij de woonwijk is er recent opnieuw nieuwe bestrating, parkeerhavens en groen aangelegd.

Enthousiast geworden om hier uw eigen plekje van te maken? Maak dan gauw een afspraak voor een bezichtiging! Graag tot snel!

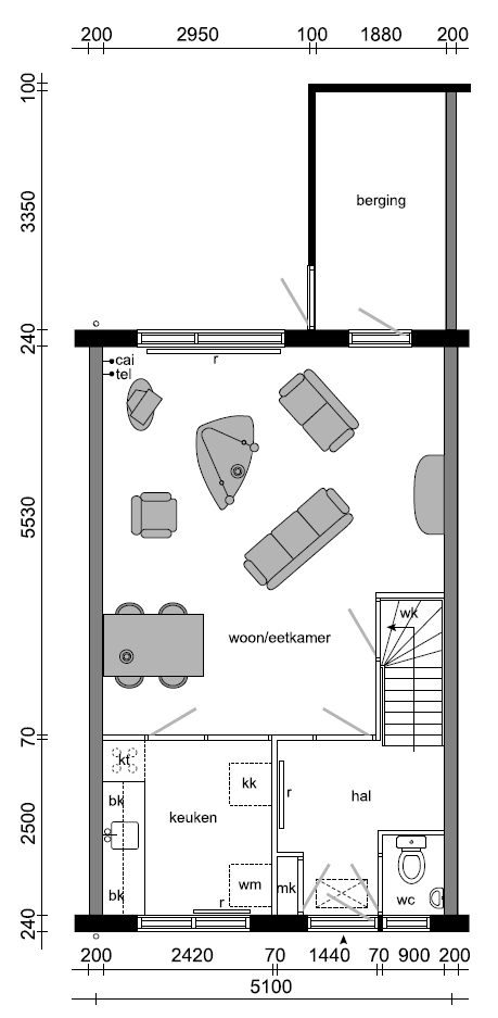
Indeling
Begane grond
U betreedt de woning via de entree met hal, meterkast, toiletruimte met toilet en fonteintje en trapopgang naar de 1e verdieping. Via de toegangsdeur bereikt u de woonkamer die zeer licht is door de openslaande deuren naar de achtertuin. Ook vindt u achterin de deur naar de berging, welke ook toegang geeft tot de achtertuin. De halfopen keuken bevindt zich aan de voorzijde van de woning en is voorzien van een hoog en laag keukenblok in lichte kleurstelling met donker aanrechtblad. Ook de aansluiting voor de wasmachine vindt u in de keuken. Op de vloer ligt een lichtgrijze laminaatvloer.

Eerste verdieping
De overloop op de 1e verdieping verbindt een viertal vetrekken waarvan 3 slaapkamers en een badkamer. De grootste slaapkamer is gelegen aan de achterzijde van de woning, evenals de kleine slaapkamer. De 3e slaapkamer ligt aan de voorzijde net als de badkamer welke voorzien is van een wastafel met planchet en spiegel, douche en een radiator.

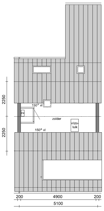
Tweede verdieping
Via een vlizo trap bereikt u de zolder met een groot velux dakraam en in een kast de Cv-installatie.

Kenmerken
• Gunstige ligging dichtbij het Zeewolder centrum met diverse supermarkten, winkels, haven en restaurants met buitenterrassen
• Veel lichtinval door openslaande deuren naar tuin en raampartij in de keuken
• Halfopen keuken aan de voorzijde
• 3 volwaardige slaapkamers op de verdieping
• Zeer ruime en diepe achtertuin op het zuidoosten met vele mogelijkheden
• Eigen oprit met plek voor 2 auto’s en voldoende parkeergelegenheid in de straat
• Bouwjaar 1986
• Energielabel B, geldig t/m 22-03-2031
• Woonoppervlakte ca. 87 m2 op een perceel van 322 m2

Alle verstrekte informatie moet beschouwd worden als een uitnodiging tot het doen van een bod of om in onderhandeling te treden. Er kunnen geen rechten worden ontleend aan deze woninginformatie. Het rapport met de NEN-2580 meting kunnen wij, op verzoek, per email versturen.

ERA Makelaardij Renger is de makelaar van de verkoper. Wij adviseren u uw eigen makelaar mee te nemen voor uw belangenbehartiging bij de aankoop van uw toekomstige woning.
brochure

Waar staat dit huis?

Keteldiep 16, Zeewolde

Plattegronden

Afspraak maken

Laat uw gegevens achter en wij nemen zo spoedig mogelijk contact met u op.