37

Zuider Vijverlaan 9

Schagen

Verkocht onder voorbehoud
  • SoortEengezinswoning , Woonhuis
  • Kosteninfo Verkocht onder voorbehoud
  • Woonoppervlakte102 m2
  • Perceel201 m2
  • Inhoud367 m3
  • Kamers4
  • Slaapkamers3
  • EnergielabelD

Omschrijving

Altijd al willen wonen!

Er staan niet veel woningen aan de Zuider Vijverlaan in Schagen. Dus komen er ook maar weinig huizen te koop. Nu is je kans. Nr. 9 een hoekwoning met garage met 201m2 eigen grond staat te koop. Dat er grote interesse is om aan de Zuider Vijverlaan te wonen wordt duidelijk als je de straat in rijdt. In tegenstellen tot de omliggende straten kom je in een groene straat met bomen en de vijver die de naam van de straat eer aandoen. En dat vervolgens ook nog eens op een steenworp afstand van het centrum van Schagen.

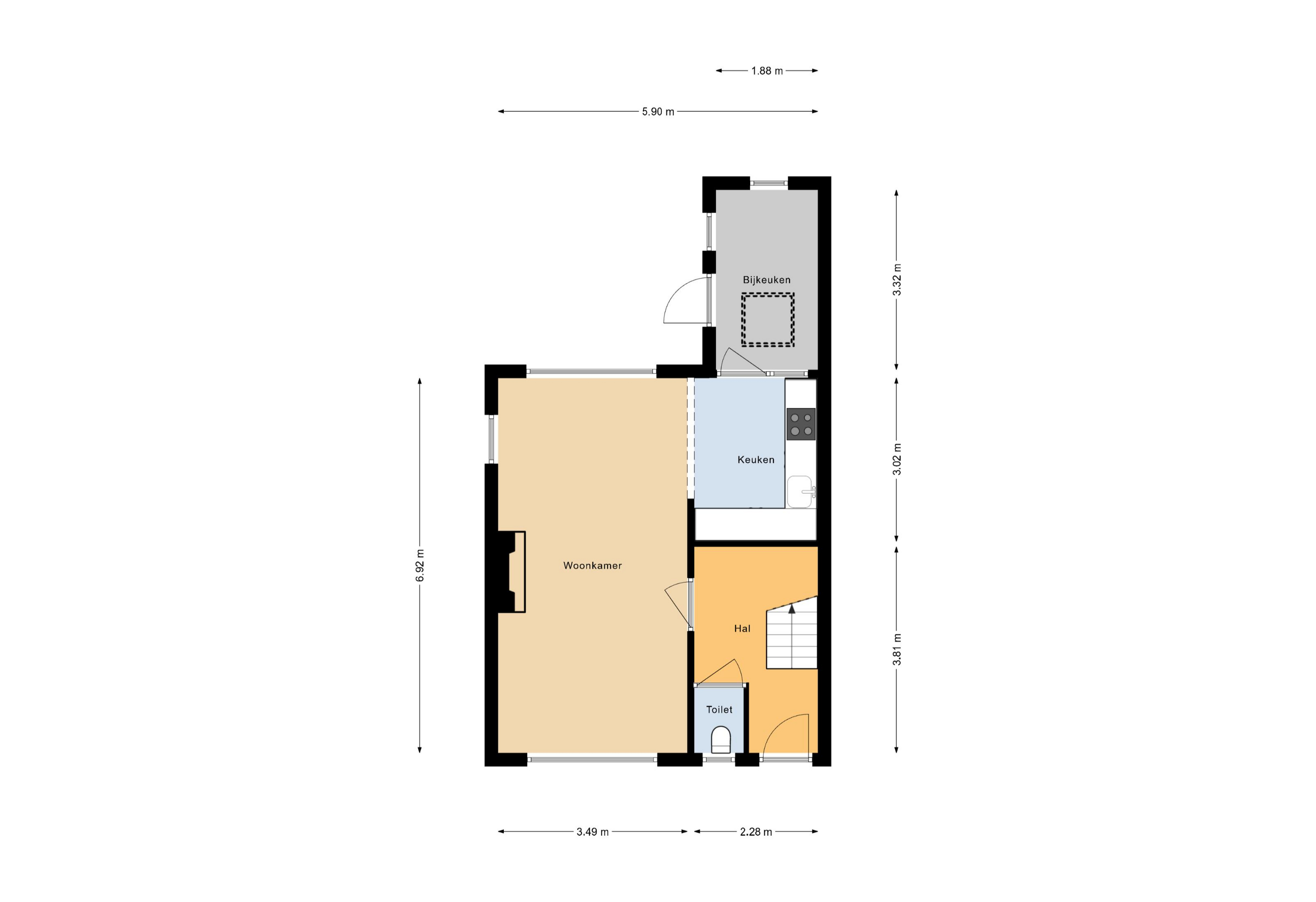
Het hoekhuis, gebouwd in 1959, heeft je veel te bieden. Via de hal met meterkast en toilet kom je in de doorzon woonkamer. Grote raampartijen in voor-, achter- en zijgevel maken het tot een lichte woonkamer. De keuken is open en voorzien van een hoek opgestelde keuken. Vanuit de keuken kom je in de bijkeuken om vervolgens de tuin in te gaan.

Op de verdieping zijn twee slaapkamers te vinden. De slaapkamer aan de achterzijde is de grootste over de volle breedte van de woning. De badkamer is voorzien van douche, wastafel en toilet. Een vaste trap brengt je naar de zolderverdieping.

De zolder is voorzien van een dakkapel en biedt veel ruimte. Een prima derde slaapkamers. Op deze verdieping is eveneens de CV ketel opgesteld.

De achtertuin is op het Zuiden georiƫnteerd. Als de zon schijnt, een garantie om hier heerlijk te genieten. De garage is achter de achtergevel van de woning gerealiseerd samen om een dak met de garage van de buren.

Altijd al aan de Zuider Vijverlaan willen wonen? Maak dan nu je afspraak voor een bezichtiging. Vraag deze aan via funda.nl of bel of mail ons. Frits Hallensleben laat je het huis graag zien. Neem je eigen NVM aankoopmakelaar mee en laat je goed adviseren over je aankoop. De NVM aankoopmakelaars zijn te vinden op Funda.nl of NVM.nl

Waar staat dit huis?

Zuider Vijverlaan 9, Schagen

Woningvideo

Plattegronden

Contactpersoon

Jolanda Hallensleben-Bethlehem
ERA makelaardij Schagen

Afspraak maken

Laat uw gegevens achter en wij nemen zo spoedig mogelijk contact met u op.