54

De Dreef 46

Schagen

NET VERKOCHT
  • SoortEengezinswoning , Woonhuis
  • Kosteninfo NET VERKOCHT
  • Woonoppervlakte162 m2
  • Perceel374 m2
  • Inhoud631 m3
  • Kamers6
  • Slaapkamers5
  • EnergielabelA
Woningen met een energielabel A of beter

Omschrijving

Riante twee onder een kap woning, levensloop bestendig, met tuin op het Zuiden en inpandige garage.

De tijd breekt weer aan van zonnige dagen met heerlijke temperaturen. Wat is het dan heerlijker dan je tuin in te lopen en van die zon te genieten. De tuin bij deze woning is niet alleen breder maar geweldig diep om op ieder moment van de dag de zon te vangen. Natuurlijk helpt daarbij dat de tuin op het Zuiden is georiƫnteerd. Een overkapping met tuinberging staat achter in de tuin.

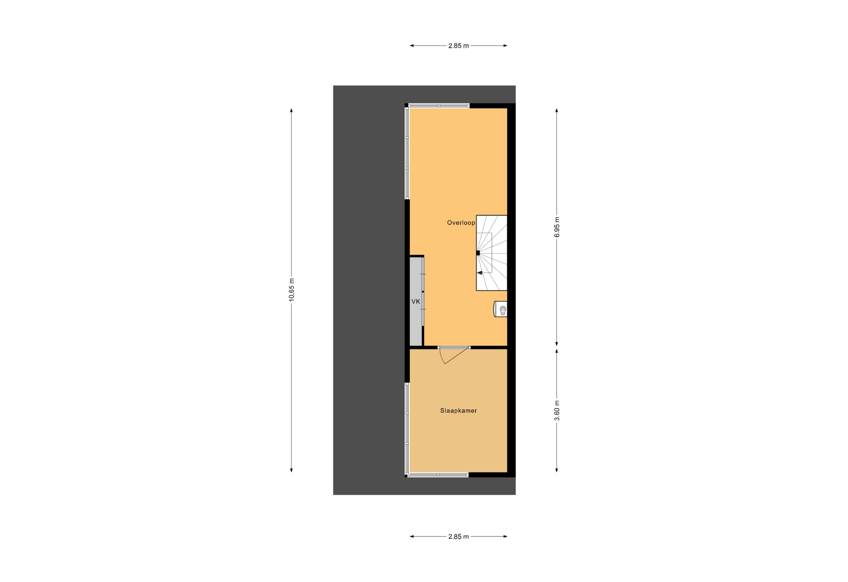
Met zijn vijf slaapkamers biedt dit huis een zee aan ruimte welke bovenal praktisch is ingedeeld. Is het een wens om een slaap- en badkamer op de begane grond te hebben zoek dan niet langer en breng deze woning een bezoek. Verder bevinden zich drie slaapkamers met dubbele badkamer op de eerste verdieping. De laatste slaapkamer is op de zolder verdieping te vinden.

Via de hal met meterkast kun je naar de tuingerichte woonkamer met schuifpui die toegang geeft tot de achtertuin. De keuken met een in een hoek opgestelde keuken bevindt zich aan de straatzijde. Zowel de woonkamer als de keuken zijn voorzien van extra zijramen wat voor extra licht inval zorgt. De garage is inpandig en voorzien van elektrische garagedeur. De slaapkamer op de begane grond is bereikbaar via de woonkamer. Deze slaapkamer is voorzien van badkamer en suite.

De overloop op de verdieping geeft toegang tot de drie slaapkamers, de badkamer en toilet. De hoofdslaapkamer heeft eveneens een badkamer en suite. Hierin staan nu de wasmachine en droger opgesteld.

De zolderverdieping biedt ruimte aan de ruime voorzolder met opstelling van de CV ketel en de laatste slaapkamer.

Het huis heeft een energielabel A en is voorzien van 10 Zonnepanelen. Nog meer informatie staat op de woningwebsite dedreef46.nl.

Wil je de woning bezichtigen? Vraag je bezichtiging aan via Funda.nl of bel of mail. Frits Hallensleben laat je de woning graag zien. Neem je eigen NVM aankoopmakelaar mee bij je bezichtiging. Deze zal je kunnen adviseren omtrent je grootste aankoop. NVM aankoopmakelaars zijn te vinden op Funda.nl en NVM.nl.

Waar staat dit huis?

De Dreef 46, Schagen

Woningvideo

Plattegronden

Afspraak maken

Laat uw gegevens achter en wij nemen zo spoedig mogelijk contact met u op.