30

Professor Eijkmanstraat 9

Nijkerk

€419.000 k.k.
  • SoortEengezinswoning , Woonhuis
  • Kosteninfo €419.000 k.k.
  • Woonoppervlakte93 m2
  • Perceel102 m2
  • Inhoud317 m3
  • Kamers5
  • Slaapkamers4
  • EnergielabelC

Omschrijving

Sfeervolle jaren ’30 woning met karakter, moderne badkamer en zonnige tuin!

In een rustige straat nabij het gezellige centrum van Nijkerk staat deze charmante tussenwoning uit de jaren ’30. Een huis met sfeer, licht en ruimte, waar karakteristieke elementen mooi samengaan met hedendaags comfort. De woning is goed onderhouden, beschikt over een moderne badkamer (2021), recent schilderwerk (2025) en heeft een verrassend indeling met vier slaapkamers, een balkon en een fijne tuin met berging.

De Professor Eijkmanstraat is gelegen op korte afstand van het centrum van Nijkerk, scholen, supermarkten en het station. In de buurt zijn meerdere speeltuintjes en direct voor de woning vind je bovendien twee openbare laadpalen en ruime parkeergelegenheid.

Bouwjaar 1930. Woonoppervlak 93m2. Perceeloppervlak 97m2. Energielabel C.

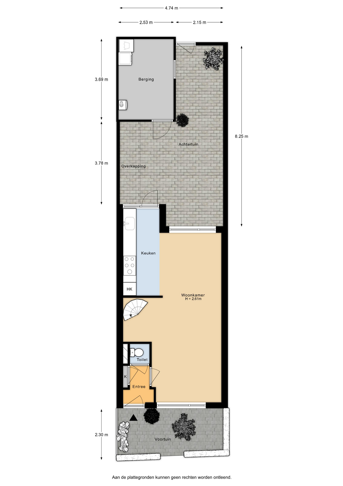
INDELING
Begane grond: via de voortuin bereik je de entree met hal en toilet. De lichte woonkamer heeft een houten vloer en een karakteristieke uitstraling: één zijde is gestuct, de andere zijde bestaat uit een steensmuur. Aan de achterzijde bevindt zich de open keuken, voorzien van een koelkast, combi-oven en vaatwasser. De huidige bewoner heeft de bestaande keuken enigszins gemoderniseerd, waardoor de keuken fris en eigentijds oogt. Vanuit de keuken stap je de zonnige tuin/patio in, een heerlijke plek om buiten te zitten.

De woning beschikt over een gezellige tuin/patio met volop middagzon. Achterin bevindt zich de stenen berging met elektra, cv-installatie (Atag , 2011) en aansluitingen voor wasmachine en droger. De tuin is via een achterom bereikbaar.

Eerste verdieping: aan de voorzijde ligt een ruime slaapkamer en een tweede kamer die momenteel als werkkamer wordt gebruikt. De derde slaapkamer, aan de achterzijde, heeft een behangafwerking. Allen zijn voorzien van dubbel glas, een laminaatvloer en een gipsplafond.
De moderne badkamer (ca. 2021) is compleet uitgevoerd met een douche, ligbad, wastafelmeubel en een deur naar het balkon/terras.

Tweede verdieping: de zolderverdieping is verrassend ruim en ingericht als grote vierde slaapkamer. Dankzij de dakkapellen aan voor- en achterzijde is er veel licht en extra ruimte. Ook hier ligt een laminaatvloer en is dubbel glas aanwezig.

Vliering: boven de zolder is nog een kleine bergvliering aanwezig, ideaal voor koffers of seizoensspullen.

BIJZONDERE KENMERKEN
- Sfeervolle tussenwoning
- Vier slaapkamers, waarvan één met dakkapellen aan voor- en achterzijde
- Badkamer vernieuwd in 2021
- Balkon/terras grenzend aan de badkamer
- Vrijstaande stenen berging met cv-opstelling en wasruimte
- Zonnige tuin/patio met achterom
- Schilderwerk buitenzijde 2025 (Alleen de voorzijde)
- Gratis parkeren voor de deur (met laadpalen in de straat)
- Rustige ligging op loopafstand van scholen, winkels en het centrum van Nijkerk
brochure

Waar staat dit huis?

Professor Eijkmanstraat 9, Nijkerk

Woningvideo

Plattegronden

Afspraak maken

Laat uw gegevens achter en wij nemen zo spoedig mogelijk contact met u op.