32

Buitenweg 84

Maarssen

Verkocht onder voorbehoud
  • SoortPortiekflat , Appartement
  • Kosteninfo Verkocht onder voorbehoud
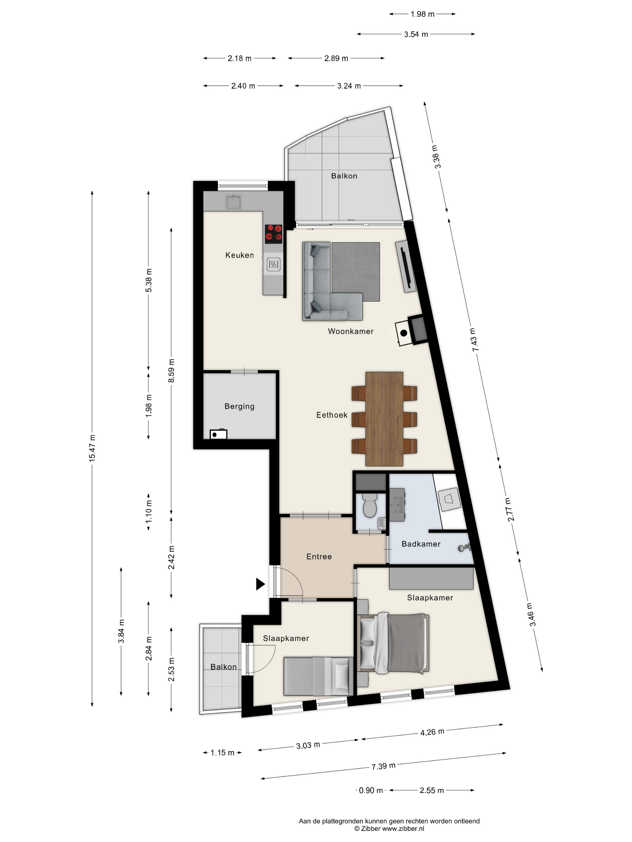
  • Woonoppervlakte90 m2
  • Perceel0 m2
  • Inhoud299 m3
  • Kamers3
  • Slaapkamers2
  • EnergielabelC

Omschrijving

Dit RUIME APPARTEMENT van ca. 90 m² biedt een heerlijk vrij uitzicht aan zowel de voor- als achterzijde en is gelegen op de 2e verdieping, midden in de geliefde wijk Zandweg Oostwaard. De lichte woonkamer met halfopen keuken vormt het hart van de woning en geeft toegang tot een zonnig balkon op het zuidoosten. Daarnaast is het appartement voorzien van een nette badkamer en twee comfortabele slaapkamers, waarvan één met directe toegang tot een tweede balkon op het noordwesten. De woning beschikt bovendien over een praktische berging binnen én een extra berging in de onderbouw. Kortom, een sfeervol en goed verzorgd appartement met volop ruimte en licht, op een prettige en rustige locatie.

Ligging:
De woning is gelegen aan een rustige straat in de groene en geliefde wijk Zandweg-Oostwaard. Op korte afstand bevinden zich diverse voorzieningen zoals winkels, openbaar vervoer en medische faciliteiten. Het sfeervolle centrum van Maarssen-dorp, met zijn gezellige terrassen, restaurants en boetiekjes, ligt op loop- of fietsafstand. Hier kunt u prettig uw dagelijkse boodschappen doen of rustig genieten van een kop koffie. Voor wie graag actief blijft, zijn er mooie wandelroutes langs de Vecht en diverse recreatiemogelijkheden in de nabije omgeving. Ook winkelcentrum Bisonspoor en het NS-station van Maarssen zijn binnen ca. 10 minuten per fiets bereikbaar.

De centrale ligging van de woning staat garant voor een goede bereikbaarheid van diverse voorzieningen. Maarssen ligt op ca. 25 autominuten van Amsterdam en 10 minuten van Utrecht. Het NS-station in Maarssen heeft verbindingen met Amsterdam en Utrecht. Bushaltes zijn op enkele minuten loopafstand.

Indeling:

Begane grond:
Entree appartementencomplex:
De entree van het complex is netjes verzorgd en voorzien van een bellentableau, brievenbussen en biedt toegang tot zowel de trap als de lift naar de bovengelegen verdiepingen.

Entree appartement:
De entree van het appartement bevindt zich op de 2e verdieping en is inpandig gelegen, waardoor u uw woning op een aangename manier bereikt.

Hal:
De hal is voorzien van een intercom en geeft toegang tot de twee slaapkamers, de badkamer, een separaat toilet en leidt via twee openslaande deuren naar de woonkamer.

Woonkamer:
De ruime woonkamer met halfopen keuken is voorzien van een sfeervolle gashaard. Aan de zijde van de keuken bevindt zich de toegang tot de inpandige berging. Vanuit de woonkamer is er via een schuifpui directe toegang tot het zonnige balkon.

Keuken:
De L-vormige keuken is uitgerust met diverse inbouwapparatuur, waaronder een koel-vriescombinatie, combimagnetron, vaatwasser, inductiekookplaat met afzuigkap en een enkele spoelbak met kraan.

Balkon (achterzijde):
Het balkon, gelegen op het zonnige zuidoosten, biedt een prachtig vrij uitzicht over het water en park en is uitgerust met een elektrisch zonnescherm.

Berging 1 (inpandig):
De berging, bereikbaar vanuit de woonkamer, biedt ruimte voor de cv-installatie en de mechanische ventilatie en is voorzien van meerdere opbergplanken.

Slaapkamer 1:
Deze slaapkamer is gelegen aan de voorzijde van het appartement en voorzien van een dubbele raampartij. Daarnaast biedt de slaapkamer toegang tot een 2e balkon.

Balkon (voorzijde):
Het balkon ligt gunstig op het noordwesten en biedt een prachtig vrij uitzicht. Vanaf de middag schijnt hier de zon, waardoor u tot in de avond heerlijk buiten kunt zitten.

Slaapkamer 2:
De master slaapkamer is eveneens gelegen aan de voorzijde en voorzien van een dubbele raampartij.

Badkamer:
De nette badkamer is uitgerust met een wastafel met wastafelmeubel, een toiletkast, een medicijnkast met spiegels, handdoekenradiator, een toilet en een inloopdouche. Daarnaast bevinden zich hier ook de aansluitingen voor de wasmachine en droger.

Berging 2 (onderbouw):
De 2e berging bevindt zich in de onderbouw van het appartementencomplex. De berging is voorzien van elektra en biedt ruimte voor extra opslag en het stallen van uw fietsen.

Oplevering:
In overleg.

Bijzonderheden:
• Ruim appartement van ca. 90 m²
• Ruime woonkamer met half open keuken
• 2 balkons waarvan één op het zuidoosten en één op het noordwesten
• 2 slaapkamers
• Nette ruime badkamer
• 2 bergingen waarvan één in het appartement en één in de onderbouw
• Verwarming en warm water: cv-ketel (Remeha 2021)
• Energielabel: C
• Dubbele beglazing
• Elektra: 7 groepen en aardlek is aanwezig
• VvE kosten: € 226,- p.m.

De verkoper vertelt:
Het appartement waar wij negen jaar lang, dag in- dag uit- met hart en ziel van hebben mogen genieten. Het huis heeft precies dát wat je nodig hebt. We hebben nooit één keer gedacht dat óns huis, ooit iemand anders huis zou kunnen worden. Een eigen plek waar je nooit meer weg wilt. Als je het huis nu koopt weet je zeker dat je daar nooit spijt van zult krijgen. Helaas wonen we nu uit medische noodzaak in een zorgcentrum.

Interesse in dit huis?
Schakel uw eigen NVM-aankoopmakelaar in. Uw NVM-aankoopmakelaar komt op voor uw belang en bespaart u tijd, geld en zorgen. Gegevens van collega NVM-makelaars in de regio vindt u op Funda.nl
brochure

Waar staat dit huis?

Buitenweg 84, Maarssen

Plattegronden

Afspraak maken

Laat uw gegevens achter en wij nemen zo spoedig mogelijk contact met u op.