41

Hondsdraf 7

Leusden

€625.000 k.k.
  • SoortEengezinswoning , Woonhuis
  • Kosteninfo €625.000 k.k.
  • Woonoppervlakte144 m2
  • Perceel246 m2
  • Inhoud491 m3
  • Kamers5
  • Slaapkamers4
  • EnergielabelC

Omschrijving

Welkom op Hondsdraf 7,
Een heerlijke hoekwoning met een lichte en ruim uitgebouwde woonkamer waar comfort, ruimte en groen perfect samenkomen. Deze sfeervolle hoekwoning biedt maar liefst vier volwaardige slaapkamers, een moderne keuken, een verzorgde badkamer en een zonnige tuin waar jong en oud zich meteen thuis voelen. De woning ligt aan rustige straatje aan de rand van de wijk, direct aan de Hamersveldse Wetering, een charmante waterloop omzoomd met knotwilgen waar kinderen graag spelen en wandelaars genieten van het groene uitzicht. Ideaal voor wie houdt van rust, ruimte en privacy.

De indeling van de woning is als volgt:
Bij binnenkomst in de entree/hal vind je een vernieuwde meterkast, een ruim en recentelijk vernieuwd vrij hangend toilet met fontein en de trap naar boven. Vanuit de hal stap je de lichte en royale woonkamer in – dé plek waar het gezin samenkomt. Dankzij de grote raampartijen en de prettige lichtinval voelt de woonkamer ruim, warm en uitnodigend aan. Hier is genoeg plek voor een grote eettafel, een gezellige zithoek én een speelhoek voor de kinderen. Aan de achterzijde bevindt zich de eetkamer met deur naar de tuin, ideaal voor zomerse diners met de tuindeur open.
De moderne keuken (2019) is een echte blikvanger: strak vormgegeven in wit met houtaccenten en uitgerust met hoogwaardige Bosch-apparatuur, waaronder een koelkast, vriezer, oven, magnetron, inductiekookplaat en een kraan met boiler. Dankzij de lichtkoepel is de keuken altijd aangenaam licht. Achter de keuken bevindt zich een praktische bijkeuken met aansluitingen voor wasmachine en droger – perfect voor het gezinsleven – en een extra deur naar buiten.
De achtertuin ligt rondom de woning en is er daardoor de hele dag zowel zon als schaduw te vinden. De tuin is fraai aangelegd met meerdere terrassen en zithoekjes, een gazon en volwassen beplanting: een fijne speelplek voor kinderen en een ontspannen buitenruimte voor ouders. Achterin staat een stenen berging met elektra en via de achterom bereik je eenvoudig de parkeerplaats of auto.
Op de eerste verdieping bevinden zich drie ruime slaapkamers en een strakke badkamer met inloopdouche, tweede toilet en modern wastafelmeubel. De combinatie van witte en grijze tegels geeft de ruimte een frisse, tijdloze uitstraling.
De zolderverdieping biedt een voorzolder met de CV-opstelling en extra bergruimte, plus een royale vierde kamer met dakraam – ideaal als tiener slaapkamer, werkkamer of hobbyruimte.
Kortom, Hondsdraf 7 is een instapklare gezinswoning waar aan alles is gedacht: ruimte, comfort, rust én een groene omgeving. Met de Hamersveldse Wetering en haar rij knotwilgen als natuurlijke voortuin, speelplekken in de buurt en scholen op korte afstand, is dit een ideale plek om te wonen en op te groeien.
Benieuwd geworden? Plan snel een bezichtiging en ervaar zelf de fijne sfeer van deze woning!

Bijzonderheden
- Uitgebouwde woonkamer
- Strakke, moderne keuken (2019)
- Winkelcentrum Biezenkamp op loopafstand
- Scholen en kinderdagverblijven op loopafstand
- Hoogwaardige Bosch inbouwapparatuur
- Vier volwaardige slaapkamers
- Ruim perceel met zonnige tuin
- Functionele bijkeuken met wasruimte
- Rustig in het groen gelegen
- 12 zonnepanelen

Waar staat dit huis?

Hondsdraf 7, Leusden

Woningvideo

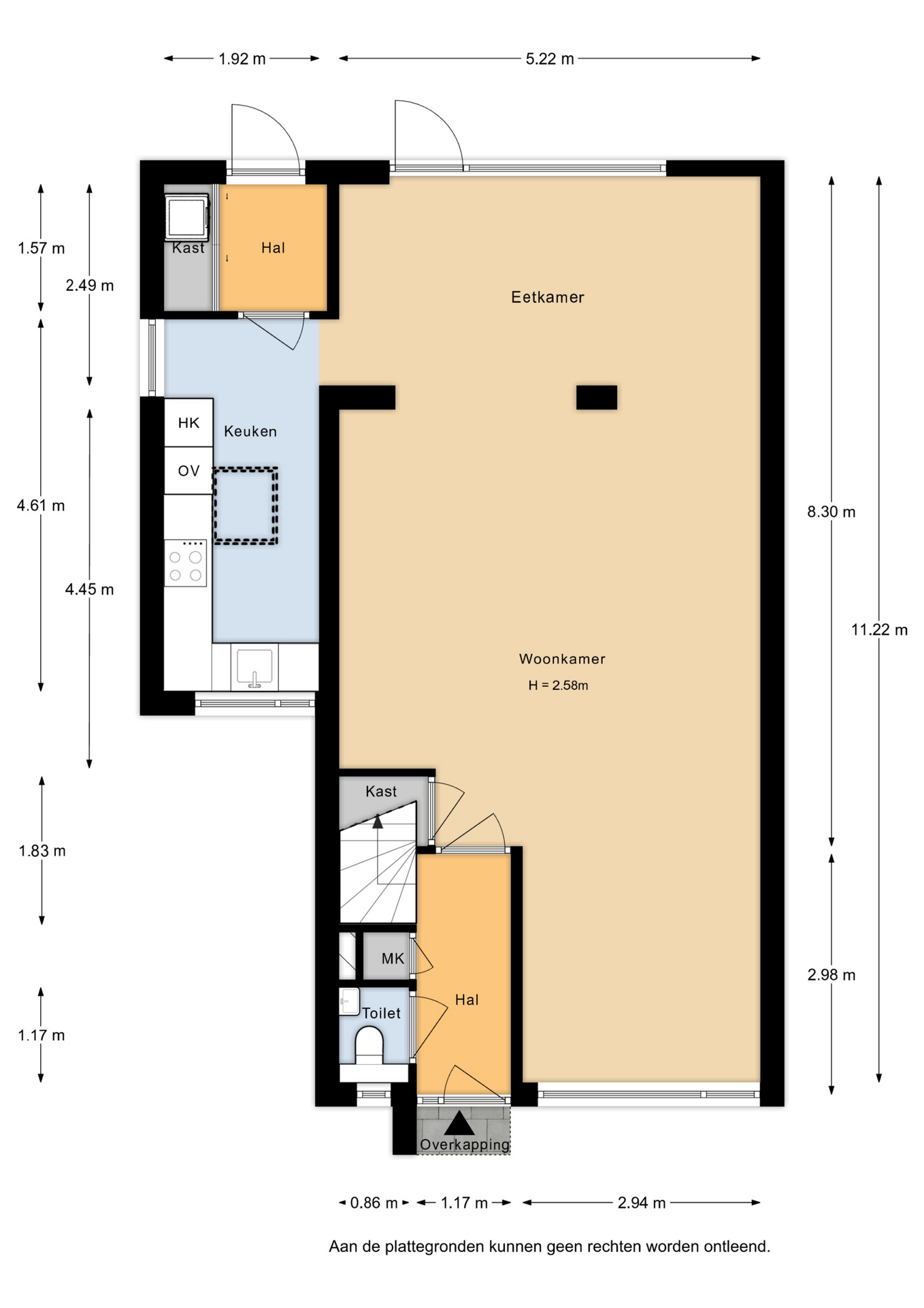
Plattegronden

Afspraak maken

Laat uw gegevens achter en wij nemen zo spoedig mogelijk contact met u op.