34

Karel Doormanstraat 11

Hasselt

€315.000 k.k.
  • SoortEengezinswoning , Woonhuis
  • Kosteninfo €315.000 k.k.
  • Woonoppervlakte77 m2
  • Perceel167 m2
  • Inhoud295 m3
  • Kamers4
  • Slaapkamers3
  • EnergielabelC

Omschrijving

Karel Doormanstraat 11, Hasselt

Een instapklare, sfeervolle twee-onder-een-kapper op een toplocatie. Deze "tweekapper" ligt in een rustige straat van het charmante Hanzestadje Hasselt, met alle voorzieningen om de hoek. Denk aan basisscholen, winkels, sportverenigingen, kinderopvang, en de jachthaven. Binnen vijf minuten zit je op de A28 richting Zwolle of Meppel, en het gezellige centrum van Hasselt is zo te fietsen.

Of je nu starter bent of op zoek bent naar een gezinswoning, dit huis biedt een fijne mix van comfort, ruimte en mogelijkheden. De woning is in de afgelopen jaren netjes gemoderniseerd en heeft een energielabel C. Dankzij de diepe achtertuin en de dubbele berging is het ook een ideale plek voor klussers, tuinliefhebbers of mensen die graag buiten leven.


Indeling


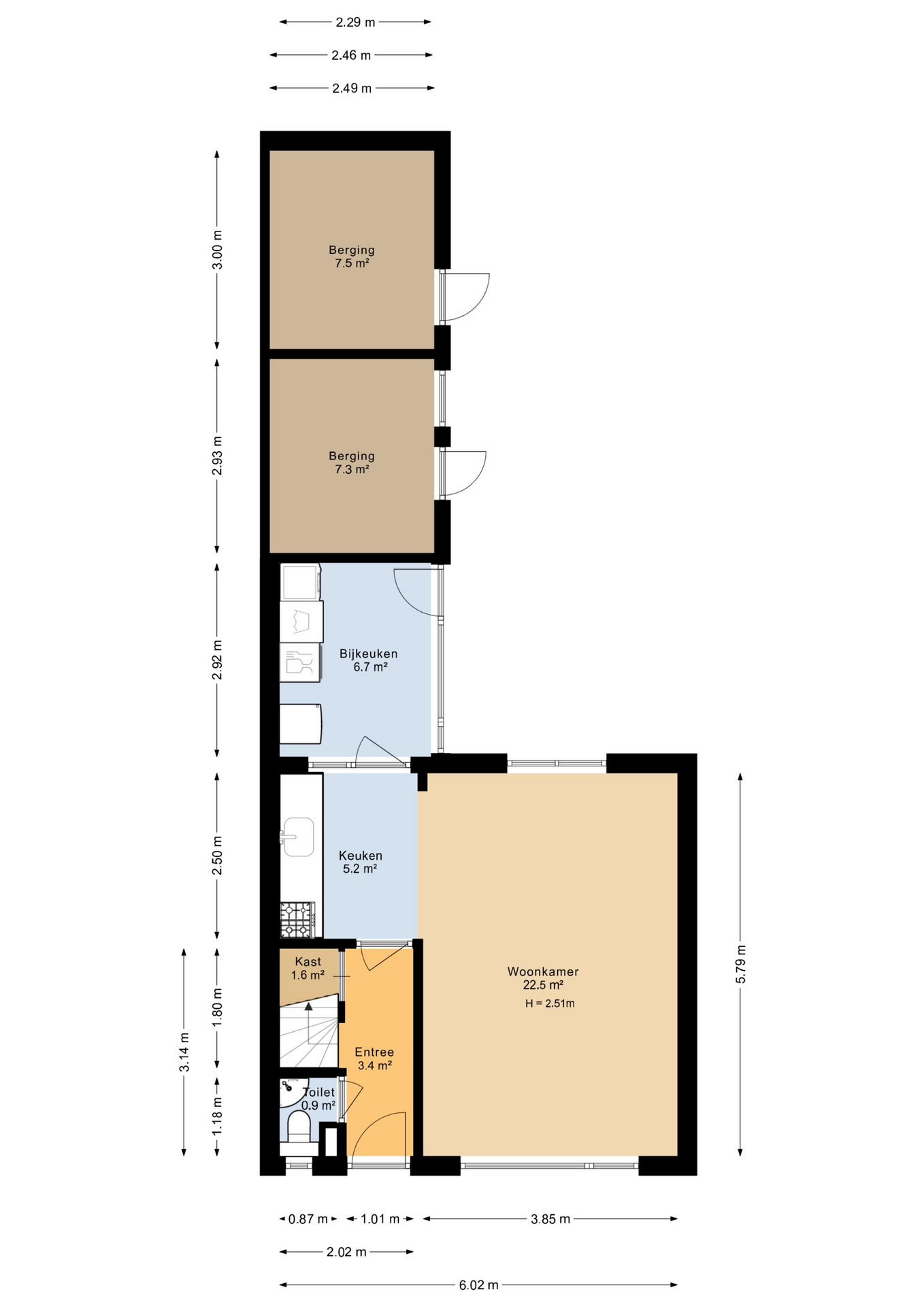
Begane grond
Je stapt binnen in de hal met meterkast, een modern toilet, de trap naar boven en een handige trapkast. De woonkamer is verrassend licht dankzij de grote ramen aan zowel de voor- als achterkant. Er is genoeg plek voor een knusse zithoek én een ruime eethoek. De vloer is afgewerkt met vloerbedekking over een karaktervolle granitovloer en de muren zijn strak en fris afgewerkt.

De keuken is halfopen en voorzien van een recht keukenblok met houten werkblad en inbouwapparatuur zoals een gaskookplaat, oven en afzuigkap. Direct aansluitend is de bijkeuken, waar je extra kastruimte hebt en de vaatwasser, plek witgoed en toegang tot de achtertuin. Een ideale ruimte voor extra gemak in het dagelijks leven.


Eerste verdieping
Op de verdieping bevinden zich drie slaapkamers. Twee van de kamers beschikken over ingebouwde kasten. Alle kamers zijn afgewerkt met een laminaatvloer en nette wanden. Ook de ramen zorgen voor lekker veel daglicht. De badkamer is volledig betegeld en voorzien van een douchecabine, wastafelmeubel met lades en spiegelkast, designradiator en een raam voor natuurlijke ventilatie. Ook is er mechanische ventilatie aanwezig.


Tweede verdieping
Via een vlizotrap bereik je de zolder. Deze ruimte is perfect geschikt als extra bergruimte.


Buiten
Aan de voorzijde van het huis ligt een nette voortuin met ruimte voor een zitje in de avondzon. De achtertuin ligt op het zuidoosten, dus volop zon van ’s ochtends tot halverwege de middag. De tuin is diep, groen en goed beschut. Er is ruimte genoeg voor meerdere terrassen, speelruimte, of zelfs een moestuin. Achterin de tuin vind je twee bergingen die met elkaar verbonden zijn via een binnendeur, ideaal voor opslag of hobby’s.


Bijzonderheden
- Twee-onder-een-kapwoning
- Bouwjaar 1950
- Energielabel C
- Woonoppervlakte: 77 m²
- Perceel: 167 m²
- Inhoud woning: 295 m³
- Moderne keuken (2020)
- Badkamer vernieuwd in 2022
- HR++ beglazing in hele woning
- Gedeeltelijke vloer- en gevelisolatie (EPS-parels, 2023)
- CV-ketel Vaillant uit 2021, eigendom
- Gemoderniseerd en instapklaar
- Drie slaapkamers
- Moderne badkamer met raam en mechanische ventilatie
- Halfopen keuken met inbouwapparatuur
- Ruime bijkeuken met witgoedaansluiting
- Bergzolder bereikbaar via vlizotrap
- Twee bergingen met binnendeur
- Diepe en zonnige achtertuin op het zuidoosten
- Overkapping aanwezig
- Vrij parkeren voor de deur
brochure

Waar staat dit huis?

Karel Doormanstraat 11, Hasselt

Woningvideo

Plattegronden

Afspraak maken

Laat uw gegevens achter en wij nemen zo spoedig mogelijk contact met u op.