49

Holtenerstraat 14

Hasselt

€395.000 k.k.
  • SoortEengezinswoning , Woonhuis
  • Kosteninfo €395.000 k.k.
  • Woonoppervlakte133 m2
  • Perceel228 m2
  • Inhoud476 m3
  • Kamers5
  • Slaapkamers4
  • EnergielabelD

Omschrijving

Holtenerstraat 14 Hasselt

Ruime en verzorgde hoekwoning met stenenberging, vier slaapkamers en heerlijke tuin met overkapping op een vrije locatie aan de Stenendijk

Welkom aan de Holtenerstraat 14 in het sfeervolle Hasselt! Deze goed onderhouden hoekwoning ligt op een prachtige, vrije plek aan de monumentale Stenendijk, in een rustige en kindvriendelijke woonomgeving. Hier woon je op loopafstand van het historische centrum, met winkels, scholen, horeca, de weekmarkt én het Zwartewater letterlijk om de hoek. Een heerlijke plek voor wie het gemak van het centrum wil combineren met rust, ruimte en een prettige buurtsfeer.

De woning biedt meer ruimte dan je van buiten vermoedt en is door de jaren heen met zorg onderhouden. Denk aan recent schilderwerk (2023), een vernieuwd plat dak op de bijkeuken (2024) en een fraaie overkapping uit 2025. Met energielabel D, dubbel glas en een Intergas HR-ketel (2010) is dit een solide en comfortabele woning die direct te betrekken is.


Indeling

Begane grond
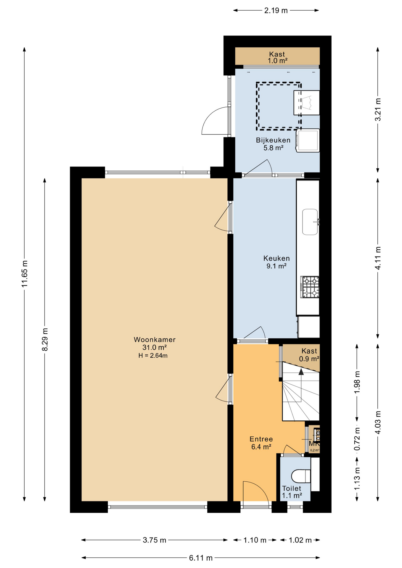
Via de hal/entree stap je binnen in een ruime hal met meterkast, toiletruimte en trapopgang. Vervolgens kom je in de lichte doorzonwoonkamer van circa 31 m², een prettige leefruimte met grote ramen aan beide zijden, veel natuurlijke lichtinval en een warme, huiselijke sfeer. De afwerking is neutraal en verzorgd, met lichte wanden en een nette vloer.

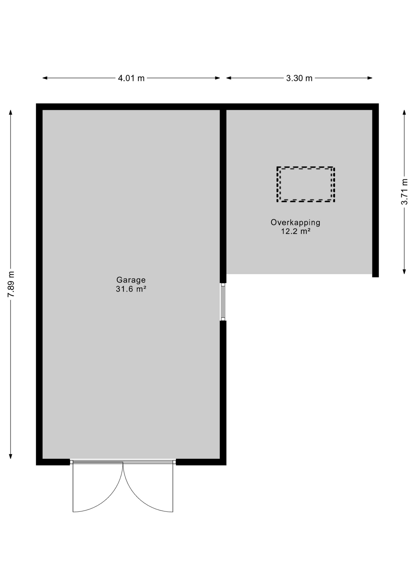
Aan de achterzijde bevindt zich de keuken, uitgevoerd in een praktische rechte opstelling en voorzien van diverse inbouwapparatuur: gaskookplaat, afzuigkap, oven, magnetron en vaatwasser. Aansluitend ligt de bijkeuken met plek voor de wasmachine, droger en extra voorraad. Vanuit hier is er toegang tot de stenen berging en de tuin.


Eerste verdieping
De overloop biedt toegang tot drie goed bemeten slaapkamers, allemaal licht en netjes afgewerkt. De moderne badkamer (ca. 2017) is volledig uitgerust met een inloopdouche, wastafelmeubel en tweede toilet; fris, eigentijds en praktisch ingedeeld.


Tweede verdieping
Via een vaste trap bereik je de zolderverdieping, een volwaardige extra woonlaag met volop mogelijkheden. Hier is een vierde slaapkamer gerealiseerd, voorzien van dakraam en bergruimte achter de knieschotten. Deze kamer leent zich uitstekend als werk- of logeerkamer. Ook bevindt zich hier de cv-installatie (Intergas HR, 2010).


Buitenruimte
De achtertuin is een groot pluspunt van deze woning. Gelegen op het noordoosten, verzorgd aangelegd en met een fijne balans tussen zon en schaduw. Blikvanger is de ruime overkapping (2025) een sfeervolle plek waar je het hele jaar door comfortabel buiten kunt zitten. De tuin is onderhoudsvriendelijk, biedt volop privacy en beschikt over een achterom.

Aan de voorzijde vind je een oprit: ideaal voor auto en motor. Dankzij de hoekligging is er extra buitenruimte aan de zijkant van de woning, wat zorgt voor een vrij gevoel en extra lichtinval binnen.


Locatie en omgeving
De Holtenerstraat ligt aan de rand van de geliefde Stenendijk-buurt, op loopafstand van het charmante centrum van Hanzestad Hasselt. Je vindt er gezellige cafés, winkels, supermarkten, basisscholen en sportvoorzieningen.
Ook natuurliefhebbers voelen zich hier thuis: langs de Stenendijk en het Zwartewater kun je heerlijk wandelen en fietsen in een karakteristiek, waterrijk landschap.

De bereikbaarheid is uitstekend. Binnen enkele minuten rijd je via de N331 richting Zwolle of Zwartsluis, en ook het openbaar vervoer is goed geregeld. De combinatie van rust, ruimte en centrale ligging maakt dit een bijzonder aantrekkelijke plek om te wonen.


Kenmerken en bijzonderheden
• Bouwjaar: circa 1969
• Woonoppervlakte: ca. 133 m²
• Perceeloppervlakte: 228 m²
• Energielabel D (geldig t/m 2034)
• Cv-installatie: Intergas HR (2010)
• Dubbel glas
• Schilderwerk buitenzijde 2023
• Plat dak bijkeuken vernieuwd 2024
• Overkapping geplaatst 2025
• Moderne badkamer (±2017)
• Vier slaapkamers
• Oprit voor auto
• Nieuwe dakgoten
• Rolluiken voorzijde woning (zuiden)
• Tuin op het noordoosten met royale overkapping
• Rustige ligging op loopafstand van het centrum van Hasselt
• Vrij uitzicht richting de Stenendijk

Samenvatting
Deze hoekwoning aan de Holtenerstraat 14 combineert ruimte, licht en verzorging met een uitstekende ligging in het charmante Hasselt. De woning is instapklaar, praktisch ingedeeld en biedt alle comfort voor gezinnen, starters of thuiswerkers.
Met vier slaapkamers, een ruime stenenberging, een zonnige tuin met overkapping en vrij uitzicht over de Stenendijk is dit een huis waar je direct kunt intrekken én waar je je meteen thuis zult voelen.

Tot slot
Laat je verrassen door de ruimte, de verzorgde afwerking en de heerlijke ligging van deze woning.
Plan snel een bezichtiging! We laten je Holtenerstraat 14 in Hasselt graag van dichtbij beleven!
brochure

Waar staat dit huis?

Holtenerstraat 14, Hasselt

Woningvideo

Plattegronden

Afspraak maken

Laat uw gegevens achter en wij nemen zo spoedig mogelijk contact met u op.