32

Messenmakerssteegje 11

Gouda

€550.000 k.k.
  • SoortHerenhuis , Woonhuis
  • Kosteninfo €550.000 k.k.
  • Woonoppervlakte116 m2
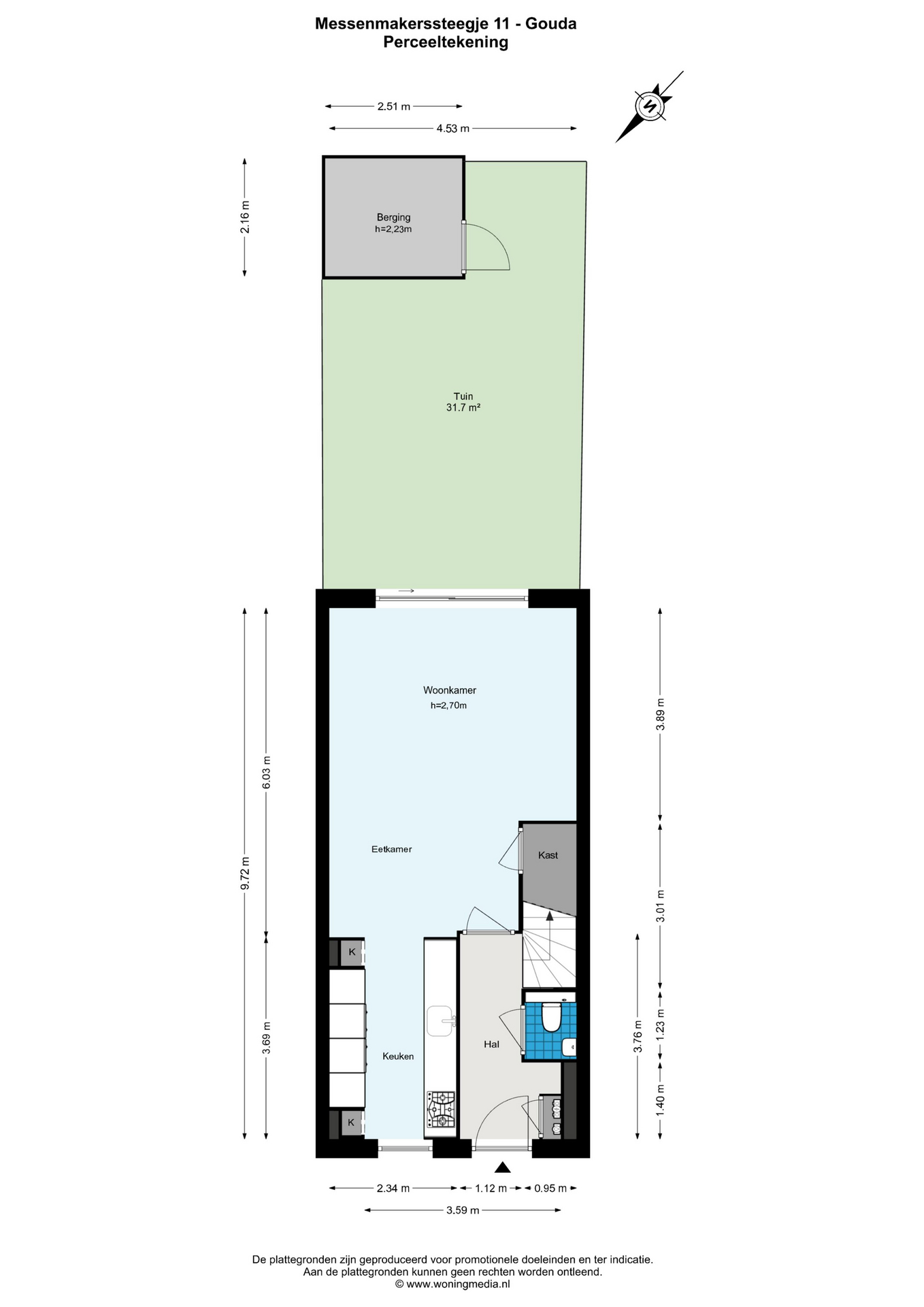
  • Perceel91 m2
  • Inhoud542 m3
  • Kamers5
  • Slaapkamers4
  • EnergielabelA
Woningen met een energielabel A of beter

Omschrijving

Moderne en instapklare eengezinswoning met eigen parkeerplaats op een rustige locatie in Gouda!

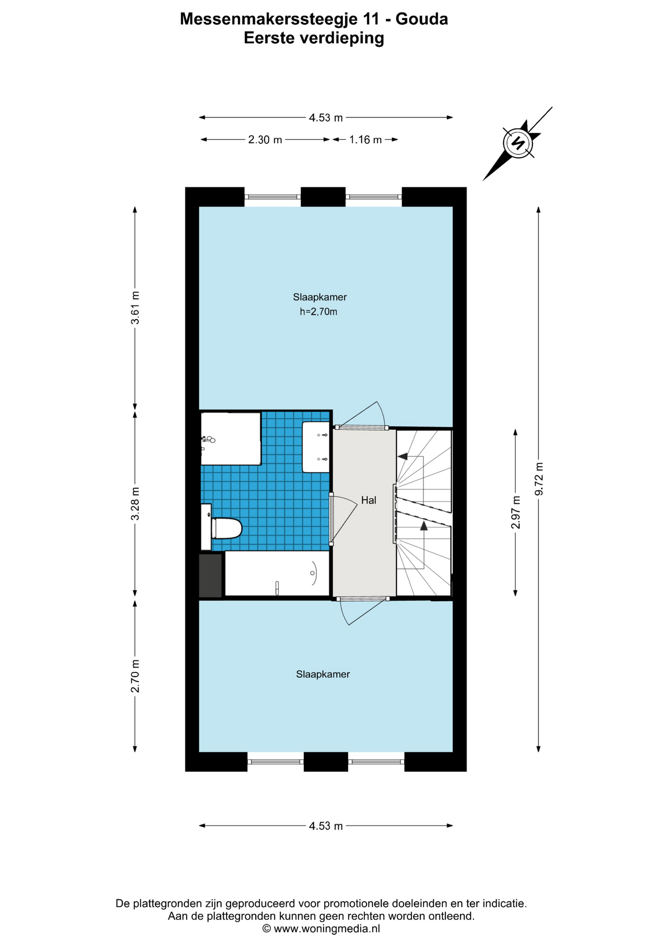
Aan het Messenmakerssteegje 11 in Gouda staat deze uitstekend onderhouden en moderne woning uit 2014 met een woonoppervlakte van ca. 116 m². De woning beschikt over energielabel A, een eigen parkeerplaats in de parkeergarage en een hoogwaardige afwerking. Dankzij de ruime indeling, moderne keuken en meerdere slaapkamers is dit een ideale woning voor gezinnen of stellen die comfortabel willen wonen op een zeer centrale maar toch ook rustige locatie. De begane grond bestaat uit een entree met hal en toilet. De lichte woonkamer is voorzien van een fraaie PVC visgraatvloer met bies (2020), comfortabele vloerverwarming en een grote schuifpui naar buiten. Hierdoor ontstaat een prettige verbinding tussen binnen en buiten. Aan de voorzijde bevindt zich de luxe keuken, vernieuwd in 2020, uitgevoerd met een keramisch werkblad en diverse Siemens inbouwapparatuur, waaronder een grote koelkast, separate vriezer, inbouw koffiezetapparaat, combi-oven, vaatwasser, gaskookplaat met wokbrander en afzuigkap. Het verlaagde plafond met inbouwspots maakt het geheel strak afgewerkt. Op de eerste verdieping bevinden zich twee ruime slaapkamers. De slaapkamer aan de achterzijde is voorzien van elektrische zonwering. De badkamer is compleet uitgevoerd met een ligbad, douchecabine, toilet en wastafel. De tweede verdieping beschikt over een overloop met wasmachineaansluiting en de CV-ketel (2014, goed onderhouden). Daarnaast zijn hier nog twee extra kamers aanwezig: een ruime slaapkamer met entresol en een groot vernieuwd dakraam met handbediende zonneschermen (2020), en een separate werk- of hobbykamer met een groot Velux dakraam, eveneens vernieuwd in 2020. De woning is volledig geïsoleerd en voorzien van HR++ glas, wat bijdraagt aan een energiezuinig en comfortabel woonklimaat. Het buitenschilderwerk is uitgevoerd in 2025. Daarnaast beschikt de woning over een eigen parkeerplaats in de afgesloten parkeergarage. De ligging is bijzonder prettig: rustig wonen in een sfeervol steegje, terwijl het historische centrum van Gouda, winkels, horeca en station zich op korte afstand bevinden. De mooie zonnige stadstuin op het zuidoosten maakt het geheel compleet.

Deze moderne woning combineert ruimte, comfort en een uitstekende locatie met het gemak van een eigen parkeerplaats. Zie jij jezelf hier straks wonen? Plan gerust een bezichtiging in!

Feiten op een rij:
- Eengezinswoning, bouwjaar 2014;
- Woonoppervlakte ca. 116 m²;
- Energielabel A;
- Volledig geïsoleerd en voorzien van HR++ glas;
- Vier slaapkamers / werkkamers;
- Lichte woonkamer met schuifpui;
- Mooie zonnige stadstuin op het zuidoosten;
- PVC visgraatvloer met bies (2020) en vloerverwarming op de begane grond;
- Luxe keuken (2020) met Siemens inbouwapparatuur;
- Moderne badkamer met ligbad, douchecabine en toilet;
- Tweede verdieping met slaapkamer met entresol en extra werkkamer;
- Grote vernieuwde dakramen met zonwering (2020);
- CV-ketel uit 2014, onderhouden;
- Laminaatvloer op eerste en tweede verdieping;
- Buitenschilderwerk uitgevoerd in 2025;
- Eigen parkeerplaats in afgesloten parkeergarage;
- VvE-bijdrage parkeerplaats ca. € 18,67 per maand;
- Gelegen op een zeer centrale en toch rustige locatie in het centrum van Gouda.
brochure

Waar staat dit huis?

Messenmakerssteegje 11, Gouda

Plattegronden

Afspraak maken

Laat uw gegevens achter en wij nemen zo spoedig mogelijk contact met u op.