52

Binnenpad 20

Giethoorn

NET VERKOCHT
  • SoortWoonboerderij , Woonhuis
  • Kosteninfo NET VERKOCHT
  • Woonoppervlakte299 m2
  • Perceel15817 m2
  • Inhoud1107 m3
  • Kamers8
  • Slaapkamers4
  • EnergielabelF

Omschrijving

Verkocht | Bert Leistra ERA Makelaardij og

Binnenpad 20, Giethoorn | Unieke woningcombinatie op een schilderachtige locatie!

Welkom bij Binnenpad 20, een monumentaal pand met een nieuw rieten dak, gebouwd in 1920 als pottenbakkerswinkel. Deze riante, vrijstaande woning biedt een unieke combinatie van karakter en comfort, gelegen op een royale kavel van 15817 m².

Locatie/omgeving
Gelegen aan het Binnenpad, nabij het centrum van Giethoorn, biedt deze woning een unieke locatie. Giethoorn staat bekend om zijn waterwegen in plaats van wegen en auto’s, waardoor een idyllische sfeer ontstaat met kabbelend water en rietgedekte huisjes langs de oevers. Binnenpad 20 is via de achterzijde per auto bereikbaar. Scholen, sportclubs en de dichtstbijzijnde supermarkt (op slechts vier minuten fietsen) bevinden zich in de buurt.

Bijzonderheden:
- Woonoppervlakte: 299 m²
- Externe bergruimte: 161 m²
- Inhoud: 1108 m³
- Bouwjaar: 1920
- Karakteristieke woning in een voormalige pottenbakkerswinkel
- Ruime woonkamer
- Open keuken met inductiekookplaat, oven en koelkast
- Ruime slaapkamer
- Zolderruimte
- Royale achtertuin, bereikbaar per auto
- Nabij scholen, supermarkten en sportclubs
- Gelegen in het bruisende hart van Giethoorn
- Omringd door een schilderachtige omgeving
brochure

Waar staat dit huis?

Binnenpad 20, Giethoorn

Woningvideo

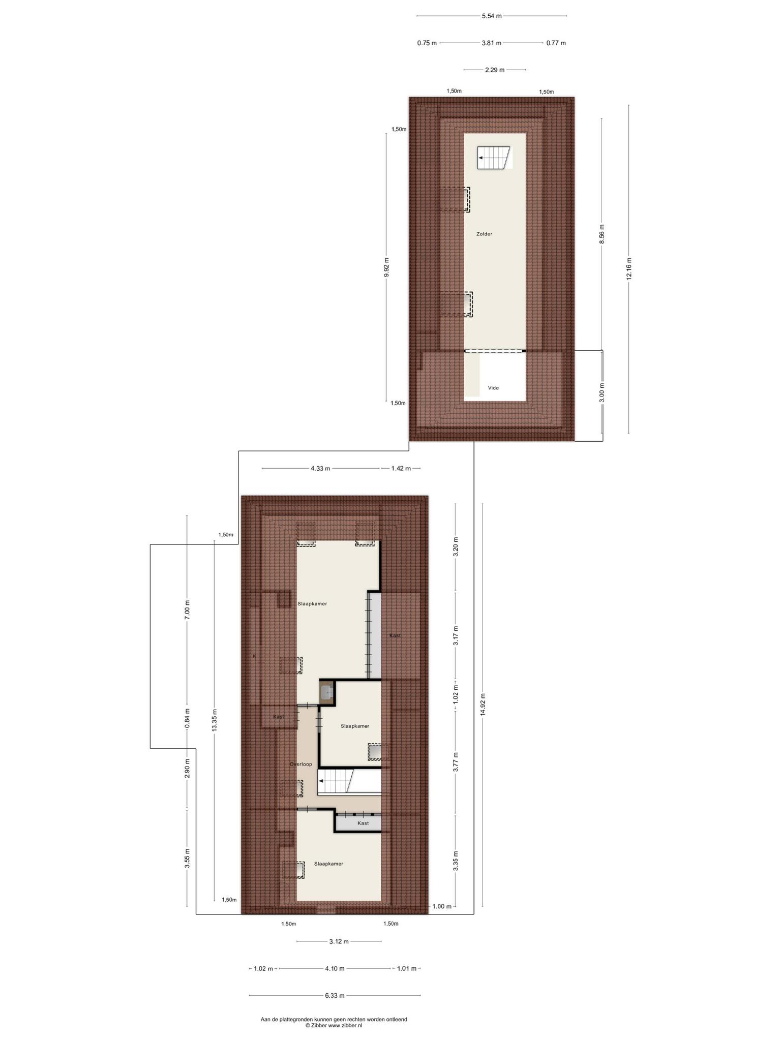
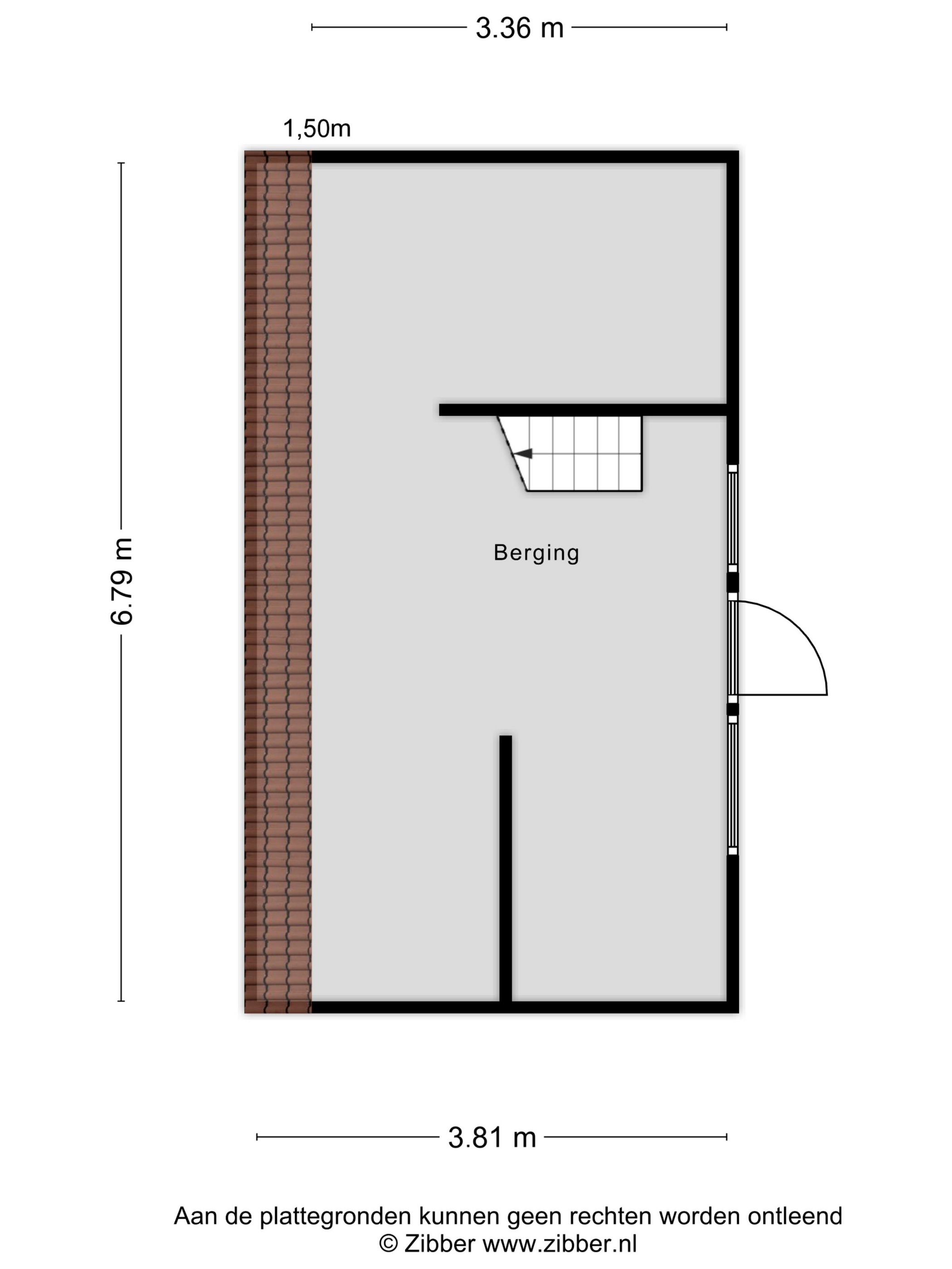
Plattegronden

Afspraak maken

Laat uw gegevens achter en wij nemen zo spoedig mogelijk contact met u op.