74

Belterweg 8

BELT-SCHUTSLOOT

NET VERKOCHT
  • SoortEengezinswoning , Woonhuis
  • Kosteninfo NET VERKOCHT
  • Woonoppervlakte172 m2
  • Perceel1453 m2
  • Inhoud444 m3
  • Kamers5
  • Slaapkamers4
  • EnergielabelB

Omschrijving

Wonen in rust, ruimte, sfeer en vrij-uitzicht op natuur & water| Belterweg 8 Belt- Schutsloot

In het waterrijke dorp Belt-Schutsloot, midden in het prachtige natuurgebied Weerribben-Wieden, vind je deze vrijstaande woning op een unieke locatie aan rustig vaarwater.

Omringd door riet, weilanden en veel groen woon je hier heerlijk vrij, met uitzicht waar je elke dag opnieuw van geniet.
Geen verkeersdrukte, maar vogelgeluiden en kabbelend water. En het mooiste? Vanuit je achtertuin vaar je zó de natuur in.

Met een woonoppervlakte van circa 172 m², een royaal luxe botenhuis, meerdere bergingen én een fraai aangelegde tuin aan het water, biedt deze woning het complete plaatje.
Ideaal als je houdt van tuinieren, varen of gewoon lekker ruim wilt wonen.

De woning is gebouwd in 1989 en door de jaren heen goed onderhouden, met o.a. een volledig gerenoveerd rieten dak, 12 zonnepanelen én energielabel B.

Je woont hier buitenaf, maar zeker niet afgelegen: Giethoorn, Zwartsluis en Meppel liggen om de hoek, en via de N334 zit je zo op weg richting Zwolle of de Randstad.
Of je nu houdt van varen, fietsen, schaatsen of wandelen: hier begint het avontuur letterlijk voor je deur.


Indeling

Begane grond
Bij binnenkomst in de ruime hal voel je het meteen: dit is een huis met karakter. De woonkamer ligt aan de achterkant van de woning en heeft grote ramen met uitzicht op de tuin en het water. Dankzij de lichtgrijze plavuizen en lichte afwerking voelt het er warm en uitnodigend aan.
De open keuken bevindt zich eveneens aan de achterzijde en heeft een landelijke uitstraling. Hij is voorzien van een oven, gaskookplaat en volop kastruimte. Direct grenzend vind je de bijkeuken, waar ook de wasmachine en droger staan opgesteld. Vanuit hier loop je zo het overdekte terras op — perfect voor lange zomeravonden of een kop koffie in de ochtendzon.
Er zijn op de begane grond twee slaapkamers aanwezig. De grootste kamer is ideaal als hoofdslaapkamer; de andere kamer is perfect in te richten als logeerkamer, kinderkamer of thuiswerkplek. De badkamer is royaal en voorzien van een ligbad en een wastafelmeubel. Ook is er een apart toilet op de begane grond.

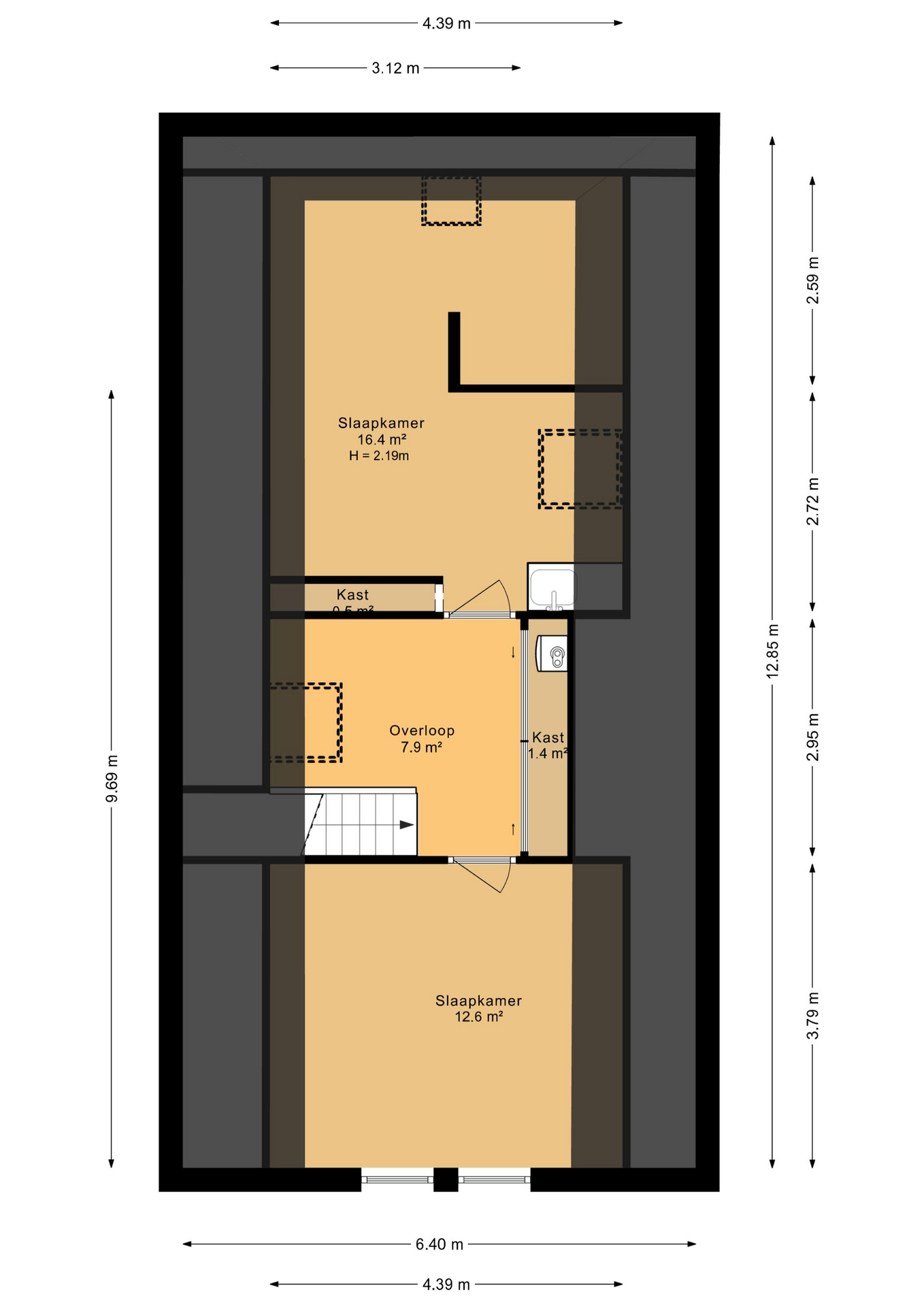
Eerste verdieping
Op de bovenverdieping bevinden zich nog twee ruime slaapkamers, elk met veel lichtinval en een prachtig uitzicht over het omliggende landschap. De overloop is verrassend ruim en biedt plek voor extra kastruimte of een gezellige werkplek.

Buiten
De tuin is zonder twijfel één van de parels van deze woning. Groots, groen, perfect onderhouden en direct aan het water gelegen. Je wordt hier wakker met vogelgezang en sluit je dag af met een zonsondergang aan je eigen aanlegplek. Of je nou ontspant op het overdekte terras, rondwandelt tussen het groen of de boot pakt richting de Wieden — deze tuin biedt rust én vrijheid.

Bijgebouwen
Achter op het perceel staat een luxe botenhuis met ruimte voor twee boten. Volledig voorzien van elektra en netjes afgewerkt. Daarnaast zijn er nog twee bergingen (31 m² en 4 m²) en een handige bergzolder. Meer dan genoeg ruimte voor opslag, hobby’s of een eigen atelier.


Wat maakt deze woning bijzonder?
• Wonen aan vaarwater met zicht op riet en weiland
• Vrijstaande woning op unieke locatie in natuurgebied
• Circa 172 m² woonoppervlakte op een perceel van 1.453 m²
• Inhoud woning: 444 m³
• Bouwjaar: 1989
• Energielabel B
• Twee slaapkamers op de begane grond, twee op de verdieping
• Grote tuin met aanlegmogelijkheid voor eigen boot
• Luxe botenhuis met plek voor twee boten
• 12 zonnepanelen (geplaatst in 2022, 360 Wp per stuk)
• Overdekt terras aan het water
• Rieten kap, volledig gerenoveerd in 2021
• Dubbel glas, deels gevel- en vloerisolatie
• Nefit Topline CV-ketel (onderhouden in 2023)
• Goed onderhouden en energiezuinig
• Gelegen in het natuurgebied Weerribben-Wieden

Ben jij toe aan een plek waar je écht tot rust komt? Waar elke dag begint met uitzicht dat je nooit zat wordt?
Dan is Belterweg 8 in Belt-Schutsloot misschien wel jouw nieuwe thuis. Kom langs, voel de sfeer en ervaar het zelf.
brochure

Waar staat dit huis?

Belterweg 8, BELT-SCHUTSLOOT

Woningvideo

Plattegronden

Afspraak maken

Laat uw gegevens achter en wij nemen zo spoedig mogelijk contact met u op.