28

Vijver 7

Amersfoort

€475.000 k.k.
  • SoortEengezinswoning , Woonhuis
  • Kosteninfo €475.000 k.k.
  • Woonoppervlakte75 m2
  • Perceel63 m2
  • Inhoud293 m3
  • Kamers4
  • Slaapkamers3
  • EnergielabelD

Omschrijving

Wonen op een van de meest bijzondere plekjes van Amersfoort

In het hart van de historische binnenstad, verscholen aan een charmant en karakteristiek straatje, ligt deze unieke woning aan de Vijver 7. Een gemeentelijk beschermd stadsgezicht uit circa 1850, waar sfeer, historie en potentie samenkomen.
Met een woonoppervlakte van 75 m², vier kamers en een knusse stadstuin biedt dit pand een zeldzame kans om te wonen op een plek waar je elke dag het gevoel hebt midden in het oude Amersfoort te leven.

Voor wie is dit het perfecte huis?
Dit is een woning voor liefhebbers van karakter. Voor mensen die vallen voor authentieke straatjes, historische gevels en de charme van een huis met een verhaal.
Ideaal voor:

• Mensen die centraal wil wonen en zelf wil moderniseren
• Creatieve ondernemers of thuiswerkers die sfeer zoeken
• Stadsliefhebbers die liever karakter dan perfectie kiezen
• Kopers die waarde zien in potentie en hun eigen stempel willen drukken
Het huis heeft nog aandacht en modernisering nodig, maar juist daarin schuilt de kans: hier creëer je een unieke stadswoning volledig naar eigen smaak.

Indeling
Begane grond
Twee kamers die flexibel in te delen zijn als woonkamer, eetkamer of werkruimte. Dankzij de indeling zijn meerdere woonconcepten mogelijk. De keuken en de badkamer bevinden zich aan de achterzijde van de woning.

Verdieping
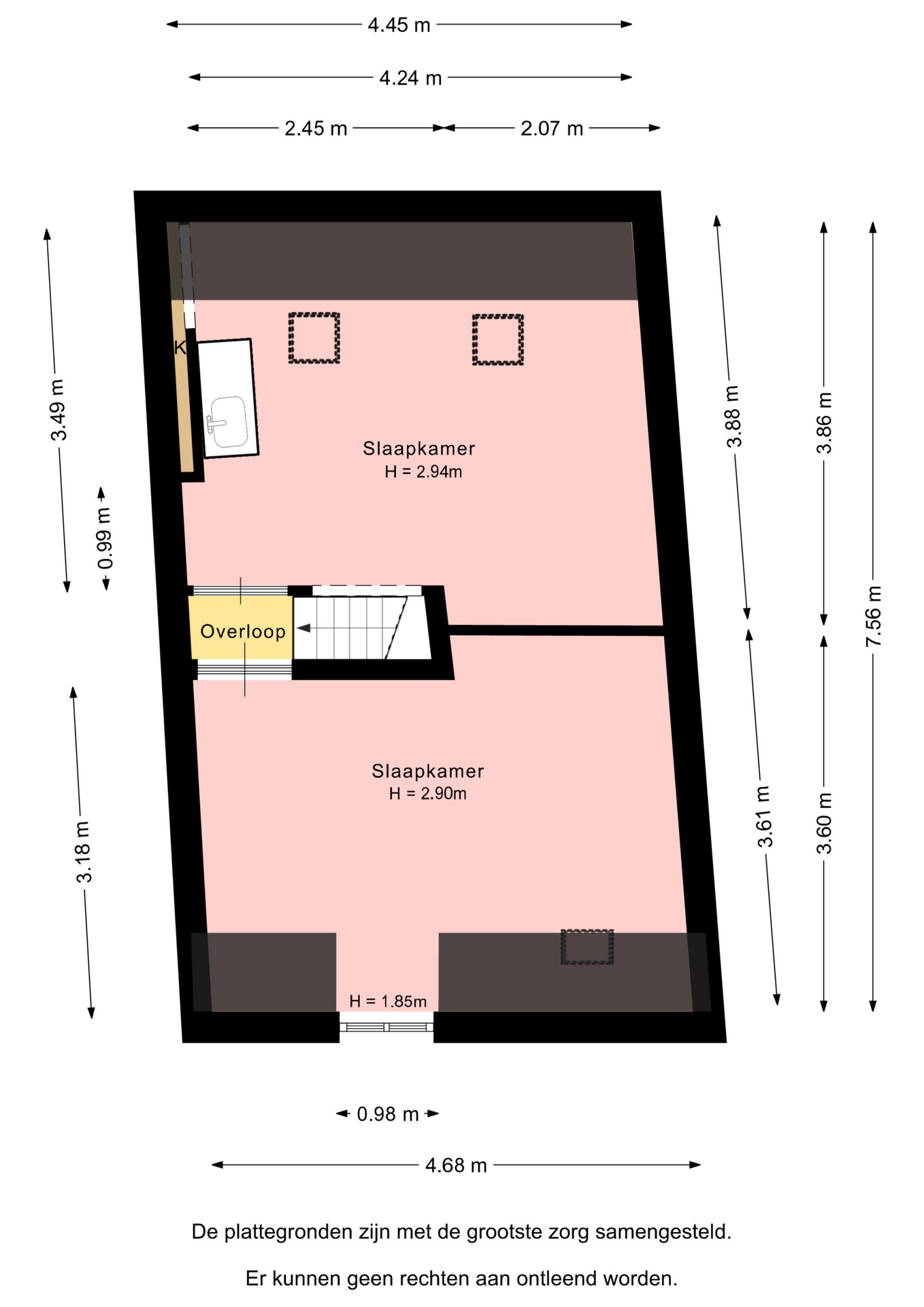
Twee slaapkamers, ideaal als hoofdslaapkamer met extra werk-, logeer- of kinderkamer.

Buitenruimte
Een kleine, beschutte stadstuin — een zeldzame luxe in de binnenstad. Perfect voor een ochtendkoffie, borrel in de zon of een kleine groene oase midden in de stad.

Wat maakt dit object zo bijzonder?
• Gelegen in beschermd stadsgezicht (circa 1850)
• Authentieke ligging in een zeer geliefd straatje
• 75 m² woonoppervlakte
• Vier kamers
• Stadstuin
• Volop mogelijkheden om te moderniseren en waarde toe te voegen

Een huis met geschiedenis én toekomst
Dit is geen instapklare woning, maar een kans om te wonen op een plek waar historie voelbaar is.
De mogelijkheid om in het hart van Amersfoort je eigen verhaal te schrijven.

Waar staat dit huis?

Vijver 7, Amersfoort

Woningvideo

Plattegronden

Afspraak maken

Laat uw gegevens achter en wij nemen zo spoedig mogelijk contact met u op.