53

Baron van Keverbergweg 5

Almere

€1.195.000 k.k.
  • SoortBungalow , Woonhuis
  • Kosteninfo €1.195.000 k.k.
  • Woonoppervlakte206 m2
  • Perceel0 m2
  • Inhoud867 m3
  • Kamers4
  • Slaapkamers2
  • EnergielabelA+++

Alle huizen met de unieke ERA Garantie worden verkocht met 1 jaar garantie na de overdracht

Het internationale ERA label voor bijzondere en exclusieve woningen
Woningen met een energielabel A of beter
Kijk hier welke huizen er mee doen aan de eerstvolgende ERA Open Huizen Route!

Omschrijving

Energieneutraal buiten wonen, werken én recreëren in een architectonische bungalow, op een royale kavel met een vijverpartij in een groen stadslandbouw- en bosgebied op 25 autominuten van hartje Amsterdam!

Deze vrijstaande woning uit 2020, ontworpen door architect Jos Abbo, is een toonbeeld van duurzame architectuur. Met een woonoppervlakte van 206 m² en een perceel van maar liefst 1855 m², biedt deze woning ruimte, comfort en privacy door de het vele groen om de woning heen. Het energielabel A+++ en de hoogwaardige isolatie zorgen voor een energieneutraal en comfortabel binnenklimaat.

DUURZAAM MEESTERWERK:
Dit bijzondere object is een duurzaam meesterwerk: het beschikt over warmte-koudeopslag via de heipalen, het beschikt over 36 zonnepanelen, een warmtepomp, vloerverwarming en vloerkoeling, warmte-terugwin ventilatie systeem met koelfunctie, elektrische zonweringen triple glas. Dit huis heeft een energielabel A+++ en is energieneutraal gebouwd. De omvormers zijn voorbereid voor thuisaccu’s.

INDELING:
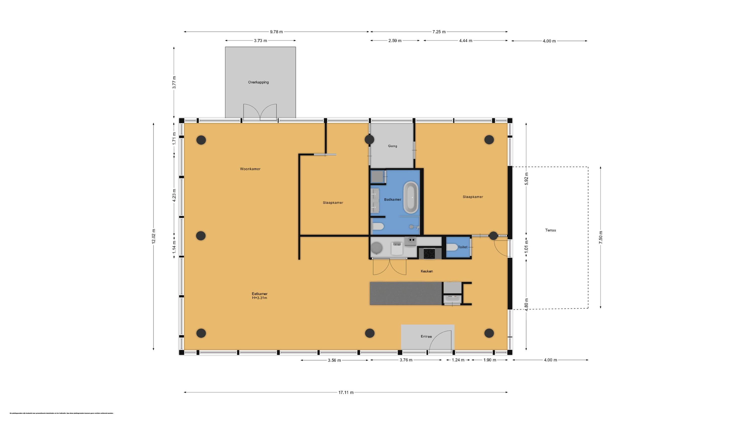
Entree, hal, gastentoilet en garderobe, open keuken met spoeleiland en bargedeelte. De keuken is voorzien van alle benodigde apparatuur zoals een inductiekookplaat, afzuigkap, vaatwasser, koel-vriescombinatie, Quooker, oven en een ingebouwde koffiemachine. De zeer royale leefruimte met een plafondhoogte van 3,31 meter en rondom glazen gevels is geheel vrij indeelbaar. Op dit moment is er een zitgedeelte, een werkgedeelte en een eetgedeelte. Aan de woonkamer zijn openslaande deuren naar een overdekt terras dat uitkijkt over de prachtige karpervijver die onderdeel uitmaakt van de tuin. Aan de achterzijde bevinden zich 2 slaapkamers die beiden toegang geven tot de badkamer die is voorzien van een ligbad, een inloopdouche, toilet en een dubbele wastafelmeubel.

VRIJHEID QUA INDELING:
Indien gewenst kan er vrij éénvoudig een 3e slaapkamer worden gecreëerd middels een aanbouw op het terras aan de westzijde van de villa. Dit terras is al onderheid en voorbereid voor een aanbouw. Zo kan er een derde slaapkamer of een extra werkkamer worden gecreëerd. Zie hiervoor de plattegrond met uitbreidings- en indelingsopties.

WONEN IN HARMONIE MET DE NATUUR:
Gelegen in de wijk Oosterwold, bekend om zijn ecologische en ruim opgezette woonomgeving, biedt deze woning een unieke leefervaring. De omgeving is rijk aan natuur, met mogelijkheden voor stadslandbouw en een gemeenschap die duurzaamheid hoog in het vaandel heeft staan. Hier woon je in je eigen groen oase!

UITSTEKENDE BEREIKBAARHEID:
Door de centraal-landelijke ligging is de woning goed bereikbaar. De nabijheid van de A6 en A27 zorgt voor snelle verbindingen naar steden als Amsterdam, Utrecht en Schiphol, allemaal binnen 30 minuten rijden. Daarnaast zijn voorzieningen zoals scholen, winkels en horecagelegenheden in de nabije omgeving te vinden. De Golfbaan Almeerderhout met 36 holes is op 10 minuten afstand gelegen. Er is een bushalte op 30 meter loopafstand (buurtbus 28 die 2x per uur rijdt richting station Parkwijk/Centrum).


TUIN, OVERKAPPING, VIJVER EN GARAGE:
Het kavel behorend bij dit bijzondere woonhuis beslaat 1855 m² en bestaat uit 5 groene parkeerplekken aan de voorzijde en een prachtige karpervijver aan de zijkant en de achterzijde met diverse terrassen en zitjes. Het talud naar de vijver is afgedekt met Corte staal waarin uitsparingen zijn gemaakt en waar bramen in groeien. De uitsparingen zijn tevens traptreden, zodat men makkelijk de bramen kan oogsten. Het Corte staal komt in het ontwerp van het exterieur van huis op diverse plaatsen terug. Rondom het huis zijn diverse fruitbomen geplant. Aan de woonkamer zijn openslaande deuren naar een overdekt terras van waar men prachtig over de vijver uitkijkt, en mooi uitzicht biedt op de tuin. Aan de westzijde van het huis is een 2e terras aangebracht waar de mogelijkheid aanwezig is om een uitbouw van 30 m² te realiseren indien gewenst. Het is ook mogelijk om hier een serre te maken of een spa-/whirlpool te plaatsen. Aan de voorzijde is een garage van 15 m² die is voorzien van een oplaadpunt voor een elektrische auto. Bij de karpervijver is een groot drijvend vlonderterras aan het water.

VvE:
Dit woning maakt onderdeel uit van de V.v.E. EcoFruithof. Deze regelt het beheer van het openbaar groen, slootonderhoud, en de straat met verlichting. De kosten bedragen € 100,= per maand. Er is een reserveringsreserve voor groot onderhoud. De woning ligt in het verzorgingsgebied VTZ (Vereniging Tureluur Zuid) welke de hoofdontsluitingsweg beheert. De kosten hiervan bedragen ca. € 108,= per jaar.

ERA GARANTIE:
Dit woonhuis wordt verkocht met ERA Garantie. De koper krijgt vanaf het moment van notarieel transport gedurende één jaar garantie op al het zichtbare leidingwerk, sanitaire voorzieningen, zichtbare elektriciteitsvoorzieningen en keuken-inbouwapparatuur van het woonhuis. ERA-garantie: meer zekerheid, een goed gevoel! Vraag naar de voorwaarden.

Bijzonderheden:
• Prachtige vrijstaande bungalow van 206 m2 woonoppervlakte
• goede uitbreidings- en indelingsopties mogelijk
• Architectonisch duurzaam meesterwerk
• Gelegen in het prachtige natuurlijke Oosterwold
• 5 parkeerplaatsen en een garage
• Mooie karpervijver
• Plafondhoogte 3,31 meter
• Rondom glas voorzien van elektrische zonwering (3/4 van de woning)
• 36 zonnepanelen, warmtepomp, warmte-koudeopslag, wtw unit met koeling etc.
• Flexibele indeling mogelijk
• mogelijkheid om aanbouw van 30 m² te realiseren met eigen entree
• Energielabel A+++
• Bouwjaar 2020
• Woonoppervlakte 206 m²
• Overkapping van 14 m²
• Garage 15 m²
• Inhoud 867 m³
• Ingemeten conform de branchebrede meetinstructie op basis van Nen 2580
brochure

Waar staat dit huis?

Baron van Keverbergweg 5, Almere

Woningvideo

Plattegronden

Afspraak maken

Laat uw gegevens achter en wij nemen zo spoedig mogelijk contact met u op.