54

Kardeel 27

Zeewolde

€2.250 per maand
  • SoortEengezinswoning , Woonhuis
  • Kosteninfo €2.250 per maand
  • Woonoppervlakte177 m2
  • Perceel178 m2
  • Inhoud705 m3
  • Kamers5
  • Slaapkamers4
  • EnergielabelA
Woningen met een energielabel A of beter

Omschrijving

Te huur:

Sfeervol wonen in deze strandvilla direct aan het strand en op loopafstand van het centrum van Zeewolde.

Uniek gelegen op één van de mooiste locaties van Zeewolde, treft u deze bijzondere strand-villa aan.
De woning is prachtig afgewerkt en is met recht bijzonder te noemen.
Er zijn maar weinig plekken in Nederland waar u zo'n mooi vrij uitzicht heeft over natuur en water.
U heeft de beschikking over uw eigen parkeerplaats in de parkeergarage, 4 slaapkamers, een dakterras van ca. 35m2, 177m2 woonoppervlakte en een prachtige woonkamer met leefkeuken.
Op uw eigen terras kunt u genieten van een koel drankje en het spectaculaire uitzicht. Kortom, dit is echt een heerlijke woning op een unieke locatie!
Deze strandvilla is gebouwd met een appartementsrecht, het complex heeft een VvE.

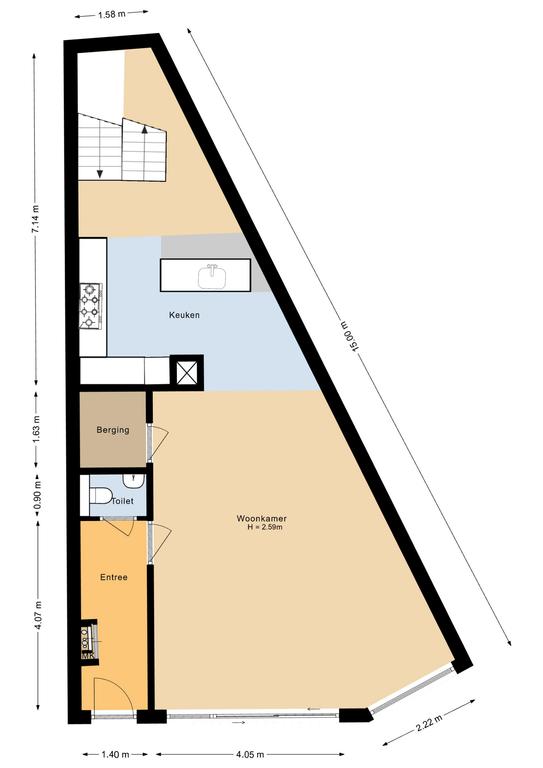
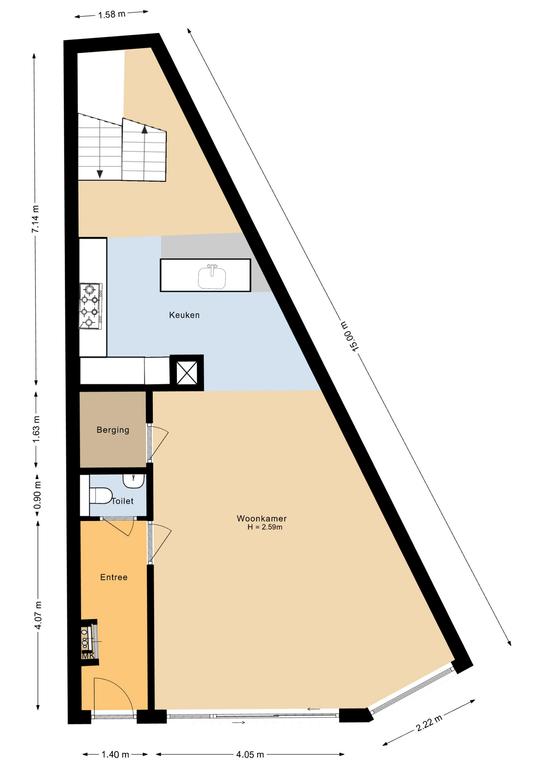
Indeling:

Souterrain:
Vanuit de afgesloten parkeergarage met uw eigen parkeerplek bereikt u eerst de berging (inpandig) en daarna rechtstreeks het trappenhuis van de woning.
Een etage hoger komen we uit in de ruime leef-keuken met daaraan aansluitend de open woonkamer.

Begane grond:
Aan de voorzijde van de woning ligt het gezellig aangelegde terras van waaruit u een fraai uitzicht heeft op het strand en het Wolderwijd, heerlijk om hier te zitten en te genieten van het zonnetje.
Binnenkomend via de voordeur komt u in de hal, hier bevindt zich de meterkast en toiletruimte met vrijdragend toilet en fonteintje. De verrassend ruime woonkamer heeft een schuifpui naar het terras en ook vanuit de woonkamer heeft u weer dat uitzicht dat met elk weertype prachtig is.
Vanuit de woonkamer toegang tot de de zeer luxe keuken die van alle gemakken is voorzien, zoals een 5-pits gasfornuis met 3 ovens, afzuigschouw, vaatwasser, koel-vries combinatie en natuurstenen aanrechtblad.
Aan het schiereiland is tevens plek om even lekker te ontbijten of de dag door te spreken met uw partner.
Door de grote lichtstraat (voorzien van elektrisch te openen raam) heeft u zowel in de keuken als op de andere verdiepingen een hele prettige lichtinval. Op de begane grond ligt een plavuizen vloer met vloerverwarming (bijverwarming).

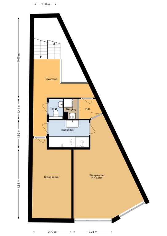
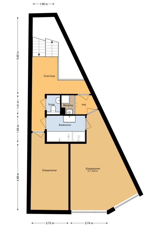
Eerste verdieping:
U komt hier op een royale overloop waar u zelfs ruimte heeft om kasten te plaatsen voor extra bergruimte.
Op de eerste verdieping bevinden zich twee slaapkamers, een badkamer en de technische ruimte met Cv-ketel (2019), MV-unit, in deze ruimte is ook de opstelplaats voor de wasmachine en droger. De slaapkamers zijn aan de voorzijde gelegen en zijn beide voorzien van een Frans balkon, rolluiken en airco.

Vanuit de hoofdslaapkamer (met airco) heeft u ook direct toegang tot de badkamer.
De badkamer is volledig betegeld en voorzien van een ligbad, separate douche, design radiator, wastafelmeubel en vloerverwarming. De separate toiletruimte is voorzien van een vrijdragend toilet en fonteintje.
Deze verdieping is volledig voorzien van laminaat.

Tweede verdieping:
Hier aangekomen valt gelijk de mooie lichtstraat op. Op deze etage heeft u nog een derde en ruime vierde slaapkamer (met airco), beide kamers hebben toegang tot het royale dakterras van ca. 35 m² met dat adembenemende uitzicht over het Wolderwijd en het strand.
Een van de slaapkamers is voorzien van een kitchenette, welke is voorzien van warm en koud water, kleine kookplaat en een koelkast.
Deze verdieping is voorzien van een laminaatvloer.

Dakterras:
Door de bijzonder hoekligging van deze woning heeft u een zeer ruim dakterras, waar een verhoogde composiet vlondervloer en een zonnescherm het helemaal af maken.

Bijzonderheden:
- Veel lichtinval door de kenmerkende trappenhuis met lichtstraat.
- Unieke ligging direct aan het strand.
- Vele voorzieningen op loopafstand, jachthaven, winkels en strand.
- Dakterras op het zuidoosten.
- 1 parkeerplaats en berging in garage.
- 6 zonnepanelen (2023).
- Woonoppervlakte: 177m2
- Energielabel: A
- Huurprijs € 2.250,- per maand excl. gas, water en elektra.
– Borgsom € 4.500,-
– Beschikbaar vanaf medio februari 2026.
– Geen huisdieren toegestaan.
– Verhuur bij gunning door eigenaar.

Waar staat dit huis?

Kardeel 27, Zeewolde

Plattegronden

Afspraak maken

Laat uw gegevens achter en wij nemen zo spoedig mogelijk contact met u op.