- SoortEengezinswoning , Woonhuis
- Kosteninfo Verkocht onder voorbehoud
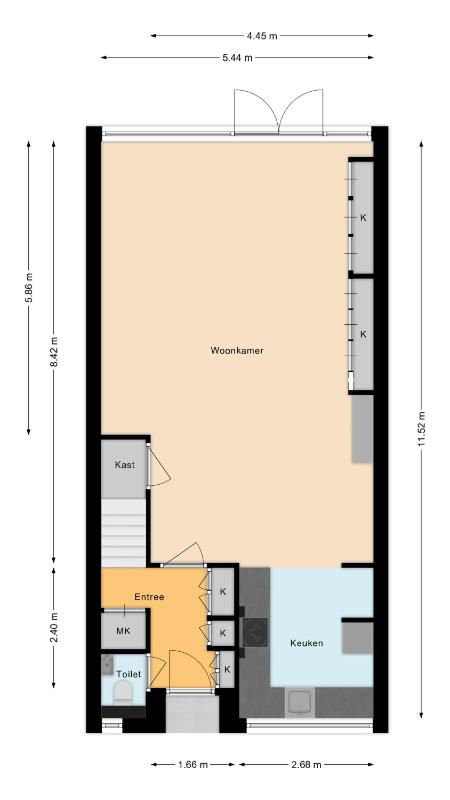
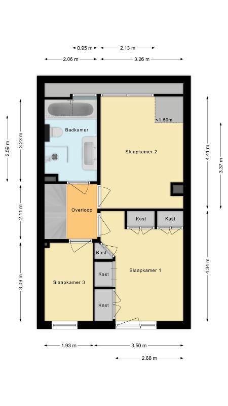
- Woonoppervlakte123 m2
- Perceel164 m2
- Inhoud411 m3
- Kamers5
- Slaapkamers4
- EnergielabelA
- Huizen
- Gratis Waardebepaling
- Over ERA
- Vestigingen
- Nieuws
-
Werken bij ERA
- Aankomend makelaar/commercieel binnendienst medewerker (32-40 uur) in Houten
- Commercieel binnendienst medewerker (32-40 uur) in Leiden
- Vacature (K)RMT - Makelaar Heemstede
- Vacature commercieel medewerk(st)er binnendienst Admiraal ERA Makelaardij
- Enthousiaste stagiaire in de Vastgoed en Makelaardij Rotterdam
- Vacature Assistent-Makelaar (ca. 24 uur) Snel ERA Makelaars Leusden en Bunschoten
- Collectief zelfstandig
- Contact
















































