50

Hatertseweg 490

Nijmegen

€650.000 k.k.
  • SoortEengezinswoning , Woonhuis
  • Kosteninfo €650.000 k.k.
  • Woonoppervlakte134 m2
  • Perceel293 m2
  • Inhoud486 m3
  • Kamers4
  • Slaapkamers3
  • EnergielabelC

Omschrijving

Sfeervolle en riante jaren ’30 tussenwoning met diepe tuin op toplocatie in Nijmegen

Op zoek naar een woning waar karakter, comfort en ruimte samenkomen? Dan is deze uitgebouwde jaren ’30 tussenwoning aan de Hatertseweg in Nijmegen absoluut een bezichtiging waard. Met een royale leefruimte, een heerlijke diepe achtertuin en een gunstige ligging nabij het Goffertpark en de binnenstad, biedt dit huis het beste van twee werelden: wonen in een rustige, groene omgeving én alle voorzieningen binnen handbereik.

Deze sfeervolle woning ademt de karakteristieke jaren ’30-stijl, met onder andere paneeldeuren en een charmante erker aan de voorzijde. Door de jaren heen is het huis gemoderniseerd en uitgebouwd, waardoor het wooncomfort aansluit bij de wensen van nu zonder dat de authentieke details verloren zijn gegaan.

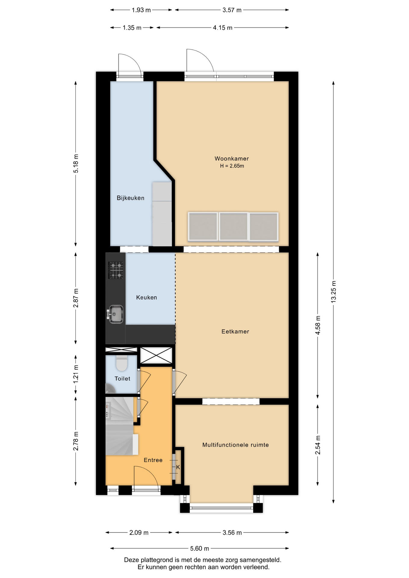
Begane grond
Via de entree betreedt u de hal met het modern verbouwde toilet (2025) en de trap naar boven, die volledig is bekleed met hout en voorzien van sfeervolle trapverlichting. De ruime en lichte woonkamer is over de volle breedte uitgebouwd en valt op door de brede lichtstraat in het midden, die de ruimte een prachtige natuurlijke lichtinval geeft. Zowel vanuit de woonkamer als vanuit de moderne open keuken heeft u direct toegang tot de tuin.
De keuken is uitgerust met diverse inbouwapparatuur, waaronder een vaatwasser (2021), combi-oven en koel-vriescombinatie.


Eerste verdieping
Op de eerste etage bevinden zich twee royale slaapkamers, beide voorzien van vaste kasten. De ruime badkamer is compleet ingericht met een ligbad, aparte douche, een tweede toilet en een wastafel.


Tweede verdieping
De lichte voorzolder, met groot Velux dakraam, biedt volop mogelijkheden als werk- of studeerplek. Daarnaast beschikt deze verdieping over een ruime derde slaapkamer met dakkapellen aan beide zijden, wat zorgt voor extra lichtinval en een aangenaam ruimtelijk gevoel. Verder vindt u hier een aparte wasruimte en een stookruimte met de CV-installatie.

De achtertuin is een absolute parel: ca. 30 meter diep, fraai aangelegd en rijkelijk beplant met een grote diversiteit aan bloemen en planten. Hier geniet u in alle seizoenen van een kleurrijk uitzicht en volop privacy. Dankzij de zonnige ligging, het praktische achterom en de vrijstaande houten berging is dit een tuin die voor iedereen wat te bieden heeft.

De ligging is ideaal: op loopafstand van het Goffertpark, tien minuten fietsen van het bruisende stadscentrum en met diverse voorzieningen zoals scholen, winkels, sportfaciliteiten en gezondheidszorg in de nabije omgeving. Ook de HAN, Radboud Universiteit en meerdere ziekenhuizen bevinden zich op korte afstand. Dankzij de nabijgelegen uitvalswegen (A73/A50) bent u bovendien snel onderweg richting andere steden.

Overige kenmerken:
• Perceeloppervlakte: 293 m²
• Woonoppervlakte: ca. 134 m²
• Dubbel glas en HR-glas
• Deels voorzien van rolluiken en zonwering
• Keuken 2021
• Toilet 2025
• Parkeren voor de woning
• Uitbouw over de volledige breedte van de woning
• Centrale ligging


Ben je op zoek naar een karaktervolle, instapklare woning met veel ruimte en een heerlijke tuin op een toplocatie in Nijmegen? Dan is dit je kans. Neem snel contact op voor een bezichtiging. Deze woning moet je gezien hebben!

Waar staat dit huis?

Hatertseweg 490, Nijmegen

Woningvideo

Plattegronden

Afspraak maken

Laat uw gegevens achter en wij nemen zo spoedig mogelijk contact met u op.