- SoortEengezinswoning , Woonhuis
- Kosteninfo €300.000 k.k.
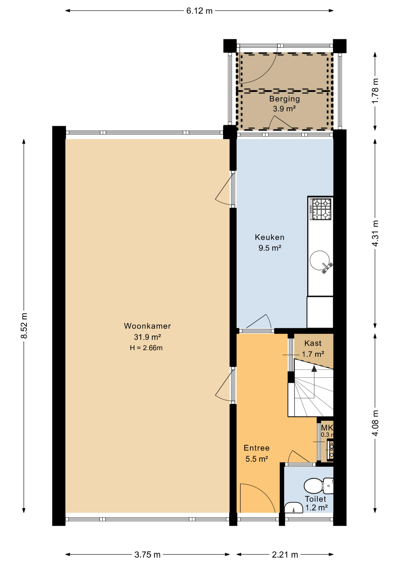
- Woonoppervlakte127 m2
- Perceel186 m2
- Inhoud464 m3
- Kamers5
- Slaapkamers3
- EnergielabelA
- Huizen
- Gratis Waardebepaling
- Over ERA
- Vestigingen
- Nieuws
-
Werken bij ERA
- Aankomend makelaar/commercieel binnendienst medewerker (32-40 uur) in Houten
- Commercieel binnendienst medewerker (32-40 uur) in Leiden
- Vacature (K)RMT - Makelaar Heemstede
- Vacature commercieel medewerk(st)er binnendienst Admiraal ERA Makelaardij
- Enthousiaste stagiaire in de Vastgoed en Makelaardij Rotterdam
- Collectief zelfstandig
- Contact































