46

Merel 10

Bodegraven

€425.000 k.k.
  • SoortEengezinswoning , Woonhuis
  • Kosteninfo €425.000 k.k.
  • Woonoppervlakte121 m2
  • Perceel145 m2
  • Inhoud418 m3
  • Kamers5
  • Slaapkamers4
  • EnergielabelC

Omschrijving

Ruime eengezinswoning (type doorzonwoning) gelegen aan een wandelpad met op steenworp (loop)afstand diverse scholen, een kinderopvang, winkelcentrum Broekvelden én het station. De lichte woonkamer vormt het hart van het huis en biedt een fijne plek om samen te komen. Met vier slaapkamers is er genoeg ruimte voor het gezin, thuiswerken of logees.

De woning ligt in de wijk Broekvelden waardoor deze goed bereikbaar is via de Goudseweg of via de Broekveldselaan. Via deze wegen zijn de A12 en de N11 binnen enkele autominuten bereikbaar. Het station van Bodegraven is binnen vijf minuten fietsen of binnen tien minuten lopen bereikbaar. Vanuit hier ben je met de trein in ca. 20 minuten in Leiden of in Utrecht.
Het centrum van Bodegraven, met gezellige winkeltjes en restaurantjes is gemakkelijk bereikbaar met de fiets.

Wij geven alvast een idee van de indeling zoals u tijdens de bezichtiging mag verwachten:

Begane grond:
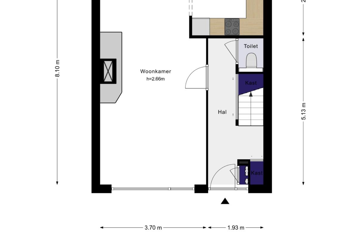
Ruime gang met meterkast en bergkast, extra kastruimte onder de trap naar de verdieping, waar ook de toiletruimte is gemaakt.
De lichte en ruime woonkamer is voorzien van een laminaatvloer en van grote ramen waardoor er veel prettig daglicht binnenkomt. Er is een open haard voor heerlijk warme en sfeervolle avonden. Doorgang naar de open keuken welke in een hoekopstelling is geplaatst en is voorzien van een ingebouwde gaskookplaat, afzuigkap, combi magnetron, vaatwasmachine, koel-vrieskast en naast diverse kastjes is er ook een carrouselkast. Deur naar de tuin.

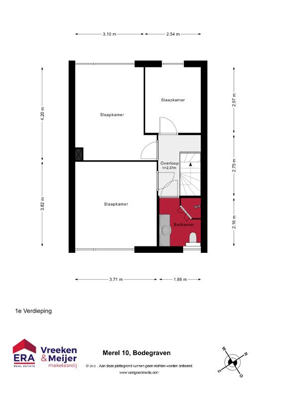
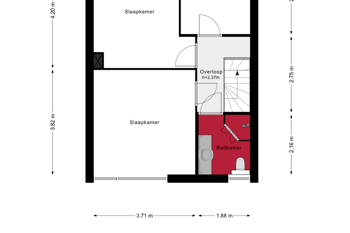
1e verdieping:
Hier is de overloop met de toegang tot de 3 fijne slaapkamers. De badkamer heeft eveneens een prettige maatvoering en is voorzien van een douchecabine, 2e toilet en een wastafelmeubel.

2e verdieping:
Voorzolder met een dakraam. Kamer met veel bergruimte en een dakkapel. Extra (werk)ruimte met tevens de opstelplaats voor de cv ketel (Intergas cv ketel uit 2012) en de aansluitpunten voor de wasmachine en droger. Hier is eveneens een dakraam aanwezig.

Buiten:
In zowel de voor- als de achtertuin kun je heerlijk (vrij) zitten. De voortuin is op het zuidoosten gesitueerd waardoor je vooral ’s ochtends vroeg al even heerlijk een kopje koffie of thee kunt drinken. In de loop van de morgen komt de zon in de achtertuin welke op het noordwesten is gelegen. Door deze ligging (en diepte) er is altijd wel een plekje in de zon of in de schaduw te vinden. In de achtertuin staat de stenen berging die voldoende plek biedt voor meerdere fietsen en/of een werkbank.

Kenmerken en bijzonderheden:
- bouwjaar: 1973
- woonoppervlakte: ca. 121 m²
- perceeloppervlakte: 145 m²
- energielabel: C
- de toegepaste isolatievoorzieningen zijn overwegend vanuit de bouw gedaan;
- een ideale woning voor een (startend) gezin met kinderen.

De presentatie is met zorg samengesteld. Bij het ontbreken van informatie of aan eventuele onjuistheden kunnen geen rechten worden ontleend.
De woning is opgemeten conform de branchebrede meetinstructie, gebaseerd op de norm NEN2580. Aan deze maten kunnen geen rechten worden ontleend. Op de plattegronden genoemde maten zijn slechts indicatief en zijn niet bestemd om te worden gebruikt voor bestelling van keuken, sanitair en/of stofferingen.
brochure

Virtuele tour

toon in nieuw scherm

Waar staat dit huis?

Merel 10, Bodegraven

Woningvideo

Afspraak maken

Laat uw gegevens achter en wij nemen zo spoedig mogelijk contact met u op.