52

Driehuizenpark 21

Lisse

€400.000 k.k.
  • SoortBenedenwoning , Appartement
  • Kosteninfo €400.000 k.k.
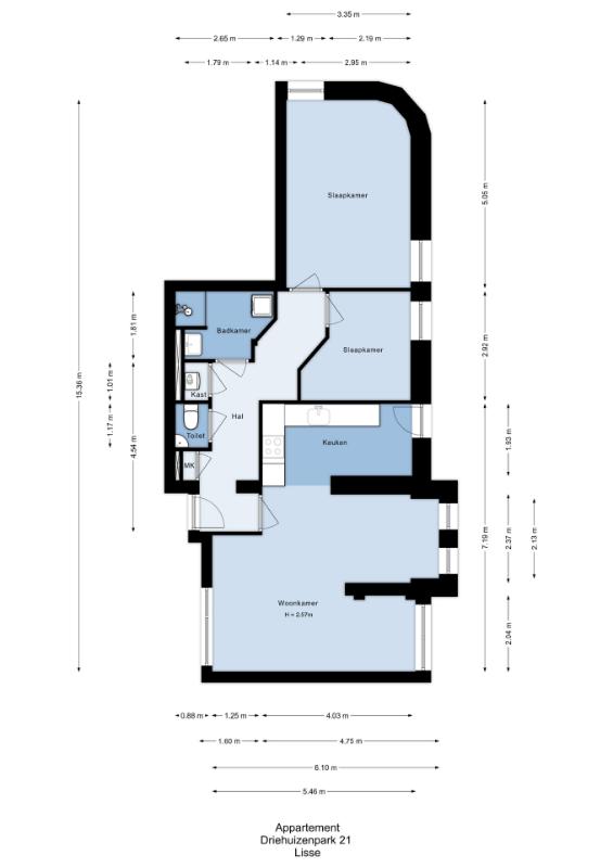
  • Woonoppervlakte78 m2
  • Perceel0 m2
  • Inhoud294 m3
  • Kamers3
  • Slaapkamers2
  • EnergielabelA
Woningen met een energielabel A of beter

Omschrijving

Dit stijlvolle en instapklare 3-kamerappartement bevindt zich in een monumentale bollenschuur uit 1922 die in 2007/2008 is getransformeerd tot een hoogwaardig appartementencomplex met energielabel A. Het appartement ligt op de begane grond aan de voorzijde van “Driehuizenpark” en bevindt zich op loopafstand van het centrum van Lisse, nabij openbaar vervoer en de uitvalswegen richting Den Haag en Amsterdam.

De ligging is centraal en kindvriendelijk, met scholen, sportfaciliteiten, het centrum van Lisse, Keukenhof, strand en duinen op korte afstand. Parkeren kan direct in de omgeving.

Het appartement heeft een fraaie pvc-vloer (2021) en is instapklaar.

Deze woning aangeboden voor een Vanafprijs van € 400.000,-

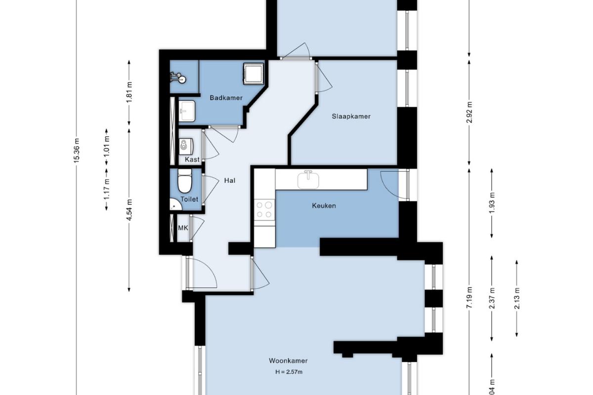
Indeling
Entree appartementencomplex, afgesloten entree met brievenbussen en bellentableau met doorgang naar de binnenplaats.

Entree appartement met toegang tot woonkamer en een hal aan de linkerzijde met de moderne meterkast (6 groepen + kookgroep), toilet met fonteintje een kast met cv-installatie (Remeha 2022), de badkamer en de 2 slaapkamers.
Speelse woonkamer met tussenmuur waardoor er een nis ontstaan is waar perfect de eettafel past.
Halfopen keuken v.v. 4-pits keramische kookplaat met afzuigkap, combi-oven, koel vriescombinatie, vaatwasser en spoelbak. Vanuit de keuken is er toegang tot de tuin.
De slaapkamers en badkamer liggen aan het einde van de hal.
Nette badkamer is v.v. inloopdouche met stortdouche, een badkamermeubel en de aansluiting voor de wasmachine.
De hoofdslaapkamer ligt op de hoek van het appartement en heeft hierdoor ook een zijraam voor extra lichtinval.
De 2e slaapkamer doet momenteel dienst als inloopkast.

Algemeen:
- Bouwjaar: 2007
- Woonoppervlak: 78 m2
- Rustige en kindvriendelijke buurt
- Servicekosten VVE: circa € 147,- per maand
- Fraaie pvc-vloer door het hele appartement
- Karakteristiek complex met hoogwaardig afwerkingsniveau
- Centrale ligging nabij winkels en uitvalswegen
- Gemeenschappelijke fietsenberging en voldoende parkeergelegenheid

Interesse?
Bel voor een bezichtingsafspraak of download de brochure via Funda, klik op de link en plan direct online een bezichtiging.

Van deze woning is ook een eigen website beschikbaar. Behalve de foto's en video op groot formaat zijn er ook allerlei handige tools. Tevens kunt u hier de relevante documentatie vinden. Download de brochure via Funda om naar deze site te gaan.

Je bent van harte welkom met jouw aankoopmakelaar voor een bezichtigingsafspraak.


-------------------------------------------------------------

This stylish and move-in ready 3-room apartment is located in a monumental bulb shed from 1922, which was transformed into a high-quality apartment complex with energy label A in 2007/2008.
The apartment is situated on the ground floor at the front of “Driehuizenpark” and is within walking distance of the center of Lisse, close to public transport and the main roads to The Hague and Amsterdam.

The location is central and child-friendly, with schools, sports facilities, the center of Lisse, Keukenhof, the beach and dunes all within a short distance. Parking is available directly in the surrounding area.

The apartment features an attractive PVC floor (2021) and is ready to move into.

This property is offered with a starting price of €400,000.

Layout:
Entrance to the apartment complex, secured entry with mailboxes and intercom system, with access to the courtyard.

Entrance to the apartment with access to the living room and a hallway on the left side containing the modern fuse box (6 circuits + cooking circuit), toilet with washbasin, a closet with the central heating system (Remeha 2022), the bathroom, and the 2 bedrooms.
Playful living room with a partition wall that creates a niche perfectly suited for a dining table.
Semi-open kitchen equipped with a 4-burner ceramic cooktop with extractor hood, combi-oven, fridge-freezer combination, dishwasher, and sink. From the kitchen there is access to the garden.
The bedrooms and bathroom are located at the end of the hallway.
Neat bathroom equipped with a walk-in shower with rain shower, a bathroom cabinet, and the connection for the washing machine.
The master bedroom is located on the corner of the apartment and therefore also has a side window for extra natural light.
The 2nd bedroom is currently used as a walk-in closet.

General:
Year of construction: 2007
Living area: 78 m²
Quiet and child-friendly neighborhood
Homeowners’ association service charges: approx. €147 per month
Attractive PVC flooring throughout the apartment
Characteristic complex with high-quality finishes
Central location near shops and main roads
Communal bicycle storage and ample parking

Interested?
Call to schedule a viewing or download the brochure via Funda, click the link and book a viewing online.

A dedicated website for this property is also available. In addition to large-format photos and video, it offers various useful tools. You can also find all relevant documentation here. Download the brochure via Funda to access this site.

You are warmly welcome to attend a viewing together with your purchasing agent.
brochure

Waar staat dit huis?

Driehuizenpark 21, Lisse

Woningvideo

Afspraak maken

Laat uw gegevens achter en wij nemen zo spoedig mogelijk contact met u op.