47

Nijkerkerveenweg 3 a

Hoevelaken

Verkocht onder voorbehoud
  • SoortEengezinswoning , Woonhuis
  • Kosteninfo Verkocht onder voorbehoud
  • Woonoppervlakte156 m2
  • Perceel1092 m2
  • Inhoud488 m3
  • Kamers6
  • Slaapkamers4
  • EnergielabelA
Woningen met een energielabel A of beter

Omschrijving

** Door het grote aantal aanvragen kunnen wij momenteel geen nieuwe bezichtigingen meer inplannen **

Luxe, energiezuinig en verrassend ruim wonen op een perceel van 1.092 m².

Aan een rustige weg, net buiten de bebouwde kom van Hoevelaken, staat deze volledig gemoderniseerde vrijstaande woning. Oorspronkelijk gebouwd in 1967 maar in 2019 van top tot teen vernieuwd, waarbij feitelijk alleen de buitenmuren zijn blijven staan. Het resultaat is een stijlvolle, levensloopbestendige en energiezuinige woning met een hedendaagse indeling en hoogwaardige afwerking.

Met een woonoppervlakte van 156 m², vier slaapkamers, twee luxe badkamers en een prachtige woonkeuken is dit een huis dat ruimte, rust en kwaliteit moeiteloos combineert.

Nijkerkerveenweg 3a ligt op een fraaie locatie net buiten de bebouwde kom van Hoevelaken, waar je elke dag geniet van rust, ruimte en groen, maar toch verrassend centraal woont. Het omliggende landschap met weilanden, bomenrijen en vergezichten geeft een heerlijk buitengevoel, terwijl voorzieningen zoals winkels, scholen en sportverenigingen binnen enkele minuten bereikbaar zijn. Ook de uitvalswegen richting Amersfoort, Nijkerk en de A1 liggen dichtbij. Een ideale combinatie van landelijk wonen met alle dagelijkse gemakken binnen handbereik.

Bouwjaar 1967. Woonoppervlakte 156 m². Perceeloppervlakte 1092 m². Energielabel A.

INDELING
Begane grond: de woonkamer is een heerlijke leefruimte met een houten vloer, een gashaard en een vrij uitzicht over de tuin. Grote ramen zorgen voor veel daglicht en een prettige verbinding met buiten.

De royale woonkeuken vormt het hart van de woning en is een echte eyecatcher. Dankzij het hoge plafond en de grote raampartijen is dit een bijzonder lichte en ruimtelijke plek. De luxe keuken is voorzien van onder andere een inductiekookplaat, Quooker, vaatwasser en stoomoven. Een ideale ruimte voor koken, uitgebreid tafelen en samenzijn. Via de schuifpui is er directe toegang tot de veranda.

Op de begane grond bevindt zich een volwaardige slaapkamer met een bad, ideaal voor gelijkvloers wonen of gasten. Daarnaast is er een tweede kamer die momenteel in gebruik is als werkkamer.

De luxe badkamer op de begane grond beschikt over een wastafelmeubel, inloopdouche, wandcloset, inbouwkasten en vloerverwarming.
Vloerverwarming is tevens aanwezig in de woonkamer, keuken, bijkeuken, werkkamer, hal en toiletruimte, wat zorgt voor een aangename en gelijkmatige warmte.
In de hal bevindt zich een separate toiletruimte met wandcloset en fonteintje. De bijkeuken is praktisch ingericht met vaste kasten, een wasbak en aansluitingen voor wasmachine, droger en de mechanische ventilatie.

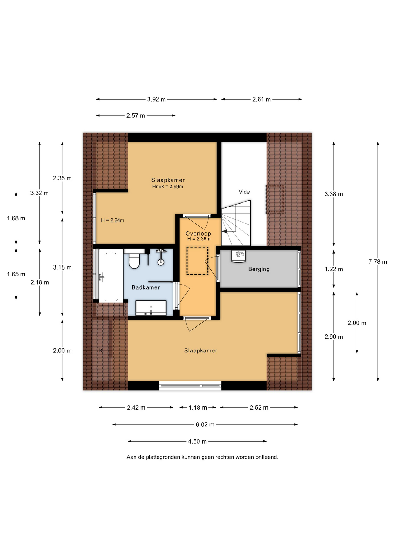
Eerste verdieping: op de eerste etage zijn twee slaapkamers die beiden zijn voorzien van een dakkapel.
Daarnaast bevindt zich hier de tweede, zeer complete badkamer met inloopdouche, ligbad en een dubbele wastafel met meubel. Tevens met dakkapel.
Verder is er een aparte berging met de cv-opstelling (Remeha, 2019).

Vliering: er is een vliering aanwezig, ideaal voor extra opslagruimte.

Buitenleven: het royale perceel van 1.092 m² biedt volop ruimte en privacy en mogelijkheden.
De tuin is verzorgd aangelegd en beschikt over een bloementuin, een veranda, een houten berging en zelfs een eigen waterbron (Norton) voor de tuinberegening.
De royale oprit en de parkeerplaatsen voor de woning, bieden meer dan genoeg parkeergelegenheid op eigen terrein.

Bijzondere kenmerken:
- Vrijstaande woning, volledig gerenoveerd in 2019
- Levensloopbestendig met slaapkamer en badkamer op de begane grond
- Luxe woonkeuken met schuifpui naar de veranda
- Vier slaapkamers en twee luxe badkamers
- Vloerverwarming in meerdere ruimtes
- Volledig geïsoleerd en voorzien van 10 zonnepanelen
- Ruime oprit, parkeerplaatsen, houten berging en eigen waterbron met beregeningsinstallatie
- Nabij voorzieningen en uitvalswegen
brochure

Waar staat dit huis?

Nijkerkerveenweg 3 a, Hoevelaken

Woningvideo

Plattegronden

Afspraak maken

Laat uw gegevens achter en wij nemen zo spoedig mogelijk contact met u op.