46

Guido Gezellelaan 138

Hillegom

€495.000 k.k.
  • SoortEengezinswoning , Woonhuis
  • Kosteninfo €495.000 k.k.
  • Woonoppervlakte101 m2
  • Perceel186 m2
  • Inhoud362 m3
  • Kamers5
  • Slaapkamers4
  • EnergielabelC

Omschrijving

Fijne hoekwoning met ruime tuin en uitzicht op het groen!

Aan de Guido Gezellelaan 138 in Hillegom staat deze verzorgde hoekwoning met een heerlijk ruime tuin en uitzicht op het naastgelegen plantsoen. Dankzij het zijraam in de woonkamer geniet u van extra daglicht en een groen uitzicht. De woning beschikt over drie slaapkamers op de eerste verdieping en een ruime vierde slaapkamer met dakkapel op de tweede verdieping.

Ligging
De ligging is rustig en groen, met diverse parken zoals het Heempark en park Elsbroek op loopafstand. Voor dagelijkse voorzieningen kunt u terecht bij het kleinschalige winkelcentrum Elsbroek, met onder andere een supermarkt. Ook scholen en speeltuintjes zijn in de directe omgeving aanwezig.
Daarnaast bevindt het gezellige centrum van Hillegom zich op fietsafstand, waar u volop keuze heeft uit winkels, restaurants en terrasjes. Goede bereikbaarheid: vanuit de wijk rijdt u naar de N207 en N208 met aansluiting op de A4 en A44 richting Schiphol, Amsterdam, Den Haag, Haarlem en Leiden. Hillegom beschikt bovendien over een eigen NS-station en goede busverbindingen.

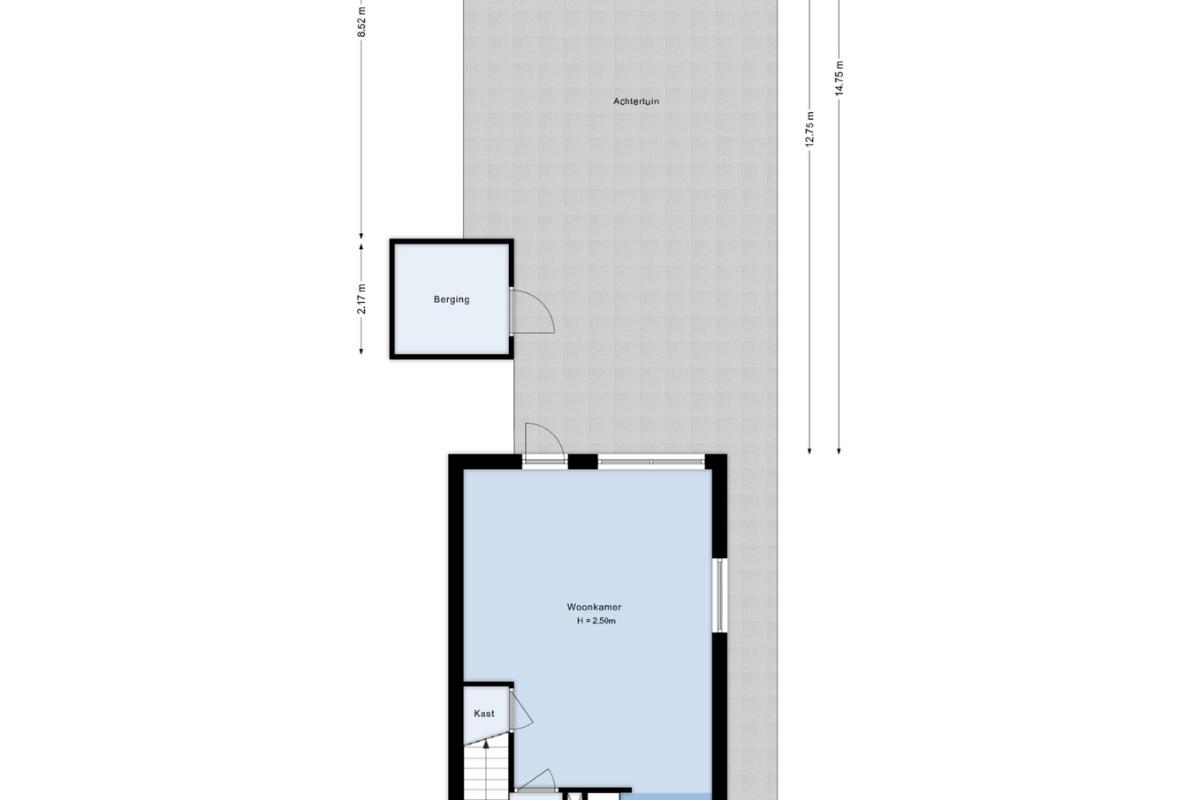
Indeling begane grond
Entree, hal met meterkast (5 groepen + kookgroep) en toiletruimte in lichte kleurstelling met zwevend closet en fonteintje. De ruime, tuingerichte woonkamer is voorzien van een sfeervolle massief eikenhouten parketvloer, een praktische trapkast en geniet van veel daglicht dankzij het extra zijraam met uitzicht op het naastgelegen plantsoen. Aan de voorzijde bevindt zich de half open keuken in L-opstelling, uitgevoerd in een warme houtkleur en uitgerust met diverse inbouwapparatuur: keramische kookplaat, afzuigkap, combi-oven, koelkast, vaatwasser en plintverwarming.

1e etage
Overloop met toegang tot drie slaapkamers. Twee slaapkamers bevinden zich aan de achterzijde en zijn voorzien van een dakkapel, de derde slaapkamer ligt aan de voorzijde. De badkamer, eveneens aan de voorzijde gesitueerd, is uitgevoerd in een moderne wit/zwarte kleurstelling en beschikt over een ruime inloopdouche, een dubbel wastafelmeubel en een zwevend toilet. Op de gehele verdieping ligt een lichte plavuizen tegelvloer.

2e etage
Overloop. De ruime vierde slaapkamer beschikt over een dakkapel aan de voorzijde en een groot dakraam aan de achterzijde, waardoor er veel licht binnenvalt. De kamer biedt daarnaast extra bergruimte achter de knieschotten en heeft een nokhoogte van 2,81 meter. Er is een aparte bergruimte, voorzien van de aansluiting voor de wasmachine, de opstelling van de c.v.-combiketel (Nefit Trendline, 2018) en de mechanische ventilatie unit (2018).

Tuin
De woning beschikt over een verzorgde voortuin met sierbestrating en groene borders. De zijtuin biedt toegang tot de ruime achtertuin, gelegen op het noordoosten, met een diepte van 14,75 meter en een breedte van 6,17 meter. Aan één kant is de tuin gescheiden door een gemetselde muur en er is een aangebouwde stenen schuur aanwezig (5m2). Achterin de tuin staat een houten blokhut (die ter overname is) en er is toegang via een achterom. Door het naastgelegen plantsoen en het grasveld aan de zijkant van de woning geniet u hier van een heerlijk vrij en groen gevoel.

Algemeen:
- Bouwjaar: 1986
- Woonoppervlak: 101 m2
- Perceeloppervlak:186 m2
- Geheel v.v. dubbel glas, vloerisolatie
- De kruipruimte is recent afgedekt met isolatie parels
- C.v.-combiketel (Nefit Trendline, 2018) en mechanische ventilatie unit (2018)

Hillegom
Hillegom beschikt over een sfeervol, historisch dorpshart met een breed aanbod aan winkels, gezellige terrassen en diverse horecagelegenheden. Voor de dagelijkse boodschappen zijn er meerdere supermarkten en speciaalzaken in de directe omgeving.
Wilt u een dagje uitgebreid winkelen? Dan bevindt Haarlem – één van de aantrekkelijkste winkelsteden van Nederland – zich op slechts 10 kilometer afstand. Hier vindt u tevens een levendig uitgaansaanbod en tal van horecagelegenheden.
De ligging in het hart van de Duin- en Bollenstreek biedt volop mogelijkheden voor recreatie en natuurbeleving. Zo zijn uitgestrekte wandel- en natuurgebieden in de duinen tussen Noordwijk en Zandvoort eenvoudig bereikbaar. Ook het strand van Langevelderslag ligt op fietsafstand – ideaal voor een dagje uitwaaien aan zee.

Van deze woning is ook een eigen website beschikbaar. Behalve de foto's en video op groot formaat zijn er ook allerlei handige tools. Tevens kunt u hier de relevante documentatie vinden. Download de brochure via Funda om naar deze site te gaan.

U en uw NVM-aankoopmakelaar zijn van harte welkom voor een bezichtigingsafspraak.

----------------------------------------------------------------------------------
Lovely Corner House with Spacious Garden and Green Views!

At Guido Gezellelaan 138 in Hillegom stands this well-maintained corner house with a wonderfully spacious garden and views over the adjacent green area. Thanks to the side window in the living room, you can enjoy extra daylight and a green outlook. The property features three bedrooms on the first floor and a spacious fourth bedroom with a dormer on the second floor.

Location
The location is quiet and green, with several parks such as Heempark and Park Elsbroek within walking distance. For daily necessities, you can visit the small-scale Elsbroek shopping center, which includes a supermarket. Schools and playgrounds are also in the immediate vicinity.
Additionally, the charming center of Hillegom is within cycling distance, offering plenty of shops, restaurants, and cafés. Excellent accessibility: from the neighborhood, you can reach the N207 and N208 with connections to the A4 and A44 toward Schiphol, Amsterdam, The Hague, Haarlem, and Leiden. Hillegom also has its own NS train station and good bus connections.

Ground Floor Layout
Entrance hall with meter cupboard (5 groups + cooking group) and toilet in a light color scheme, equipped with a wall-mounted toilet and small sink. The spacious garden-facing living room features an attractive solid oak parquet floor, a practical under-stairs cupboard, and plenty of daylight thanks to the side window overlooking the adjacent green area. At the front is the semi-open L-shaped kitchen in a warm wood tone, fitted with various built-in appliances: ceramic hob, extractor hood, combi-oven, refrigerator, dishwasher, and plinth heating.

1st Floor
Landing with access to three bedrooms. Two bedrooms are at the rear and equipped with a dormer, while the third bedroom is at the front. The bathroom, also at the front, has a modern white/black design and features a spacious walk-in shower, a double sink unit, and a wall-mounted toilet. The entire floor has light ceramic tiles.

2nd Floor
Landing. The spacious fourth bedroom has a dormer at the front and a large skylight at the rear, allowing plenty of light. The room also offers extra storage behind the knee walls and has a ridge height of 2.81 meters. There is a separate storage space with connections for the washing machine, the central heating combi boiler (Nefit Trendline, 2018), and the mechanical ventilation unit (2018).

Garden
The property features a well-kept front garden with decorative paving and green borders. The side garden provides access to the spacious northeast-facing backyard, with a depth of 14.75 meters and a width of 6.17 meters. On one side, the garden is separated by a brick wall, and there is an attached stone shed (5 m²). At the rear of the garden stands a wooden cabin (available for takeover) and access via a rear entrance. Thanks to the adjacent green area and the lawn at the side of the house, you can enjoy a wonderfully open and green feeling.

General Information
Year of construction: 1986
Living area: 101 m²
Plot area: 186 m²
Fully equipped with double glazing, floor insulation
Crawl space recently insulated with insulation beads
Central heating combi boiler (Nefit Trendline, 2018) and mechanical ventilation unit (2018)

Hillegom
Hillegom features a charming, historic village center with a wide range of shops, cozy terraces, and various dining options. For daily shopping, there are several supermarkets and specialty stores nearby.
For a full day of shopping, Haarlem – one of the most attractive shopping cities in the Netherlands – is just 10 km away, offering a lively nightlife and plenty of restaurants.
Situated in the heart of the Dune and Bulb Region, the area offers ample opportunities for recreation and enjoying nature. Extensive walking and nature areas in the dunes between Noordwijk and Zandvoort are easily accessible. The beach at Langevelderslag is also within cycling distance – ideal for a day at the sea.

This property also has its own dedicated website. In addition to large-format photos and a video, it offers various useful tools. You can also find the relevant documentation here. Download the brochure via Funda to access the site.

You and your NVM buying agent are welcome to schedule a viewing appointment.
brochure

Waar staat dit huis?

Guido Gezellelaan 138, Hillegom

Woningvideo

Afspraak maken

Laat uw gegevens achter en wij nemen zo spoedig mogelijk contact met u op.