33

Dahlialaan 2

Eindhoven

€550.000 k.k.
  • SoortEengezinswoning , Woonhuis
  • Kosteninfo €550.000 k.k.
  • Woonoppervlakte116 m2
  • Perceel57 m2
  • Inhoud411 m3
  • Kamers5
  • Slaapkamers4
  • EnergielabelA
Woningen met een energielabel A of beter

Omschrijving

In verkoop bij Tim de Rouw: Speels ingedeelde en energiezuinige hoekwoning, gelegen op een gewilde woonlocatie in de Bloemenbuurt te Eindhoven. Deze woning is verrassend ruim van opzet, beschikt over vier slaapkamers, een eigen parkeerplaats en is gunstig gelegen op korte afstand van het stadscentrum. Dankzij het goede isolatieniveau, energielabel A en de aanwezigheid van zonnepanelen is dit een comfortabele en toekomstbestendige woning.

ENIGE HOOGTEPUNTEN
- Speels ingedeelde en verrassend ruime hoekwoning;
- De woning beschikt over vier slaapkamers;
- Goed geïsoleerde woning (energielabel A) en voorzien van zonnepanelen;
- Mogelijkheid tot het creëren van extra slaapkamers op de zolderverdieping;
- Eigen parkeerplaats op afgesloten binnenterrein;
- Gunstige ligging nabij het stadscentrum van Eindhoven;
- Grotendeels voorzien van kunststof kozijnen met HR++ beglazing;
- De inboedel wordt ter overname aangeboden.

VRAAGPRIJS: €550.000,-- k.k.
AANVAARDING: Op korte termijn mogelijk

INDELING VAN DE WONING
Deze leuke woning is gelegen aan een rustige en groenrijke woonstraat. Naast de eigen parkeerplaats is er in de omgeving voldoende openbare parkeergelegenheid aanwezig.

HAL/ENTREE
Overdekte entree. Ontvangsthal met meterkast, trapopgang en toegang tot de woonkamer.

WOONKAMER
Lichte en sfeervolle woonkamer met prettige daglichttoetreding, een nette tegelvloer en een praktische berg-/provisiekast. Een comfortabele leefruimte met voldoende plaats voor zowel een zit- en eethoek.

KEUKEN
De open keuken is uitgevoerd in een lichte opstelling en afgewerkt met een granieten aanrechtblad. De keuken is voorzien van de volgende inbouwapparatuur:

- Vaatwasser
- Gaskookplaat
- Afzuigschouw
- Koelkast
- Combi-oven

PORTAAL
Praktisch achterportaal met deur naar de tuin alsmede toegang tot de toiletruimte

TOILETRUIMTE
Volledig betegelde toiletruimte met hangend closet.

TUIN
Onderhoudsvriendelijke stadstuin met achterom naar het afgesloten binnenterrein en eigen parkeerplaats.

BERGING
Houten berging voorzien van elektra en voldoende bergruimte.

EIGEN PARKEERPLAATS
Eigen parkeerplaats gelegen op het afgesloten binnenterrein, vrijwel direct grenzend aan de achterom van de woning.

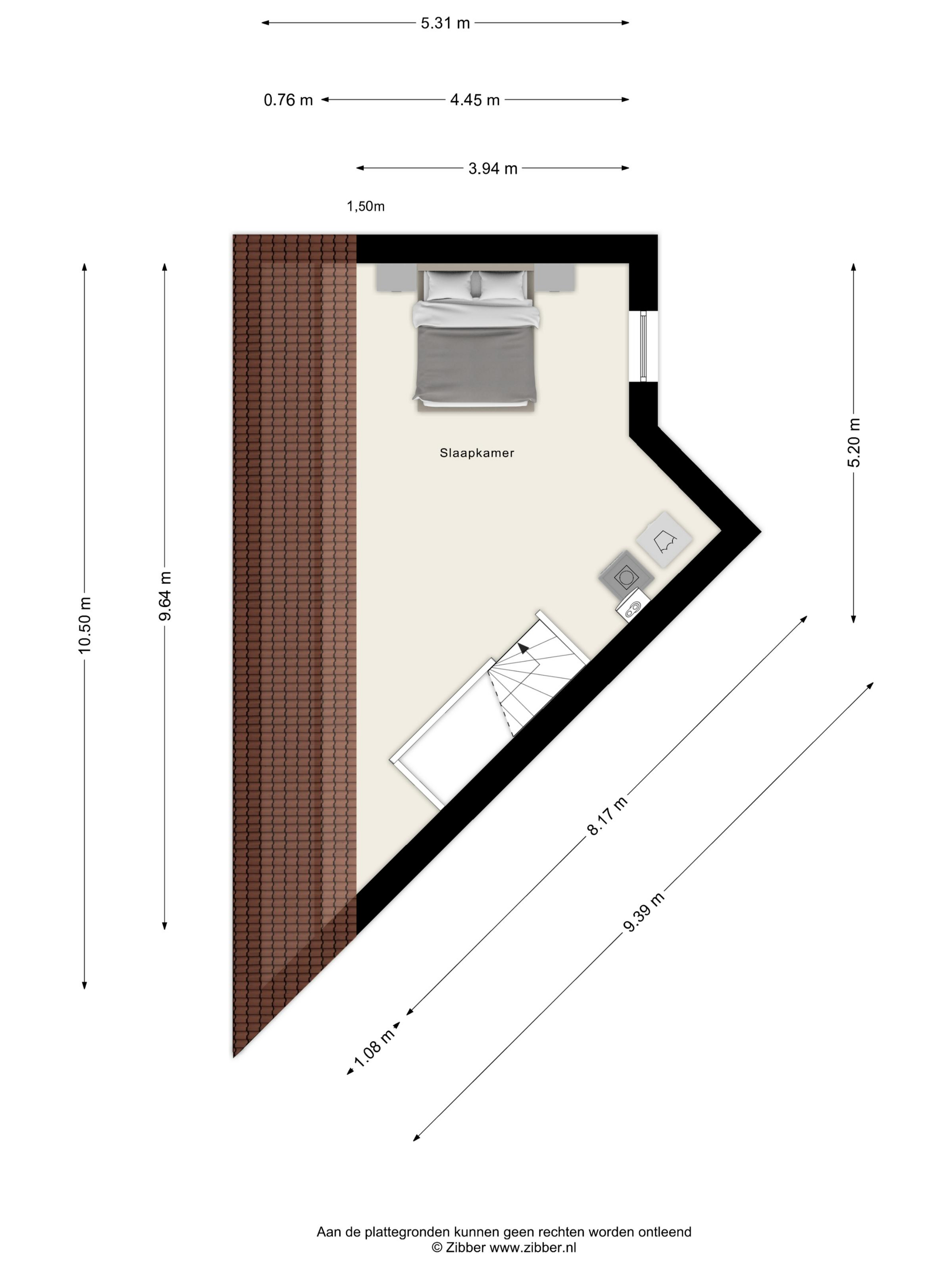
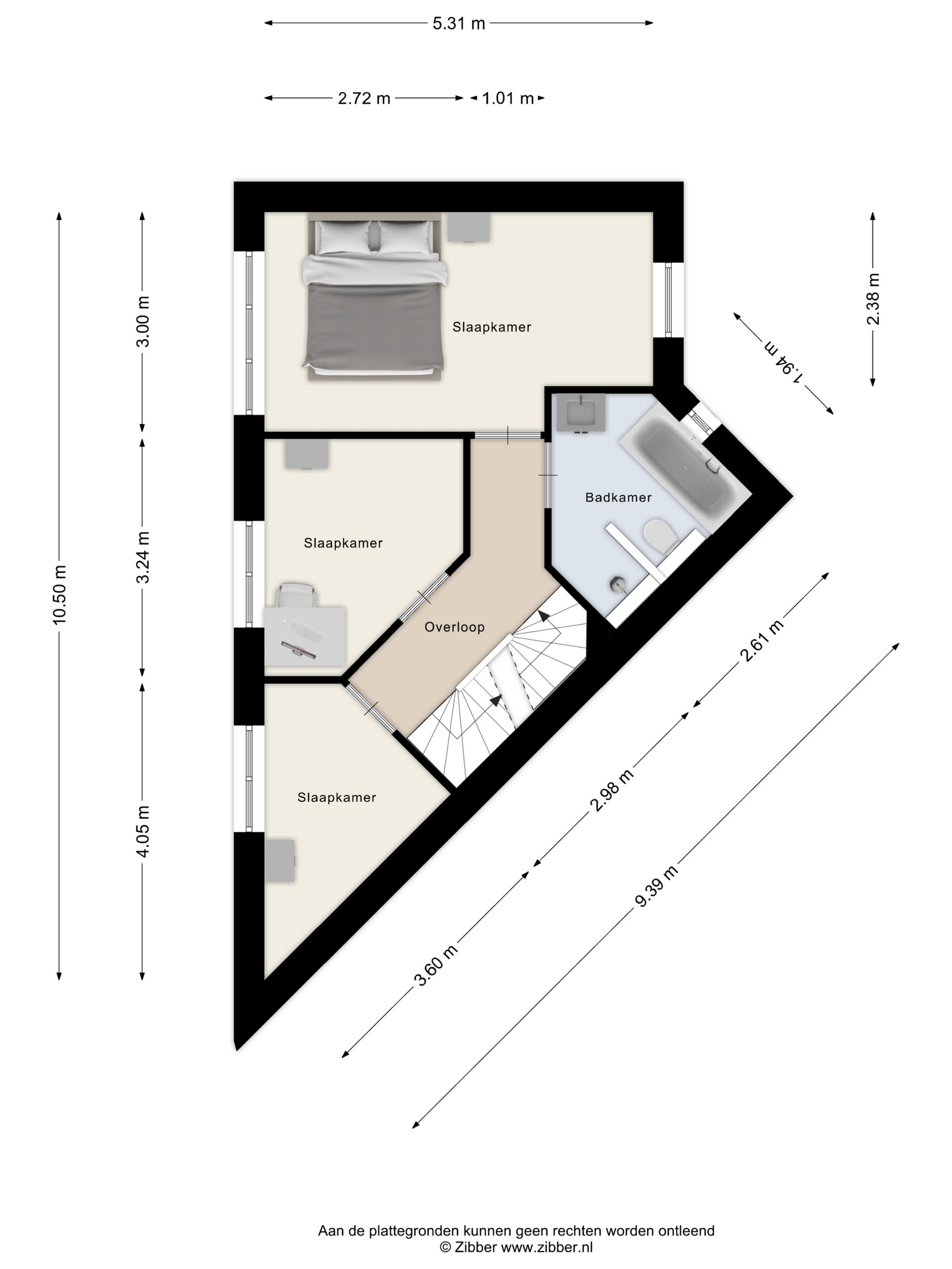
EERSTE VERDIEPING
Overloop met toegang tot drie slaapkamers en de badkamer.

SLAAPKAMER(S)
- Slaapkamer I: Gelegen aan de voorzijde van de woning, momenteel in gebruik als kledingkamer;
- Slaapkamer II: Eveneens aan de voorzijde, ideaal als werkkamer of tweede slaapkamer;
- Slaapkamer III: Royale ouderslaapkamer gelegen aan de achterzijde van de woning.

BADKAMER
Zeer luxe en complete badkamer voorzien van een inloopdouche, ligbad met whirlpoolfunctie, hangend toilet, designradiator, afzuiging, wastafelmeubel en regelbare inbouwverlichting.

TWEEDE VERDIEPING
Via vaste trap bereikbare, royale open zolderverdieping met opstelling van de HR cv-ketel (2011), mechanische ventilatie-unit en aansluitingen voor wasapparatuur. Tevens bevindt zich hier de omvormer t.b.v. de zonnepanelen. Deze verdieping biedt de mogelijkheid om één of meerdere extra slaapkamers te realiseren.

LIGGING EN LOCATIE
De woning is gelegen in de populaire Bloemenbuurt in stadsdeel Stratum. Een prettige en jonge woonomgeving met een centrale ligging ten opzichte van winkels, scholen en sportvoorzieningen. Het stadscentrum van Eindhoven, evenals uitvalswegen richting de High Tech Campus en ASML, zijn uitstekend bereikbaar.

BIJZONDERHEDEN
- Eigen parkeerplaats op afgesloten terrein;
- VvE-bijdrage: € 14,21 per maand;
- Energielabel A en voorzien van zonnepanelen;
- De gehele inboedel wordt ter overname aangeboden;
- Aanvaarding op korte termijn mogelijk.

Plan een bezichtiging met uw makelaar: Tim de Rouw.

Waar staat dit huis?

Dahlialaan 2, Eindhoven

Woningvideo

Plattegronden

Afspraak maken

Laat uw gegevens achter en wij nemen zo spoedig mogelijk contact met u op.