37

Evenaar 171

De Meern

€529.000 k.k.
  • SoortEengezinswoning , Woonhuis
  • Kosteninfo €529.000 k.k.
  • Woonoppervlakte108 m2
  • Perceel130 m2
  • Inhoud370 m3
  • Kamers5
  • Slaapkamers4
  • EnergielabelA
Woningen met een energielabel A of beter

Omschrijving

In de kindvriendelijke en populaire wijk 't Weer ligt deze keurige tussenwoning met vier slaapkamers, een ruime woonkamer, moderne keuken en badkamer, plus een zonnige voor- en achtertuin met berging en achterom. Dankzij de dakkapellen (2023) voor én achter en de gunstige oriëntatie geniet je de hele dag door van veel licht.

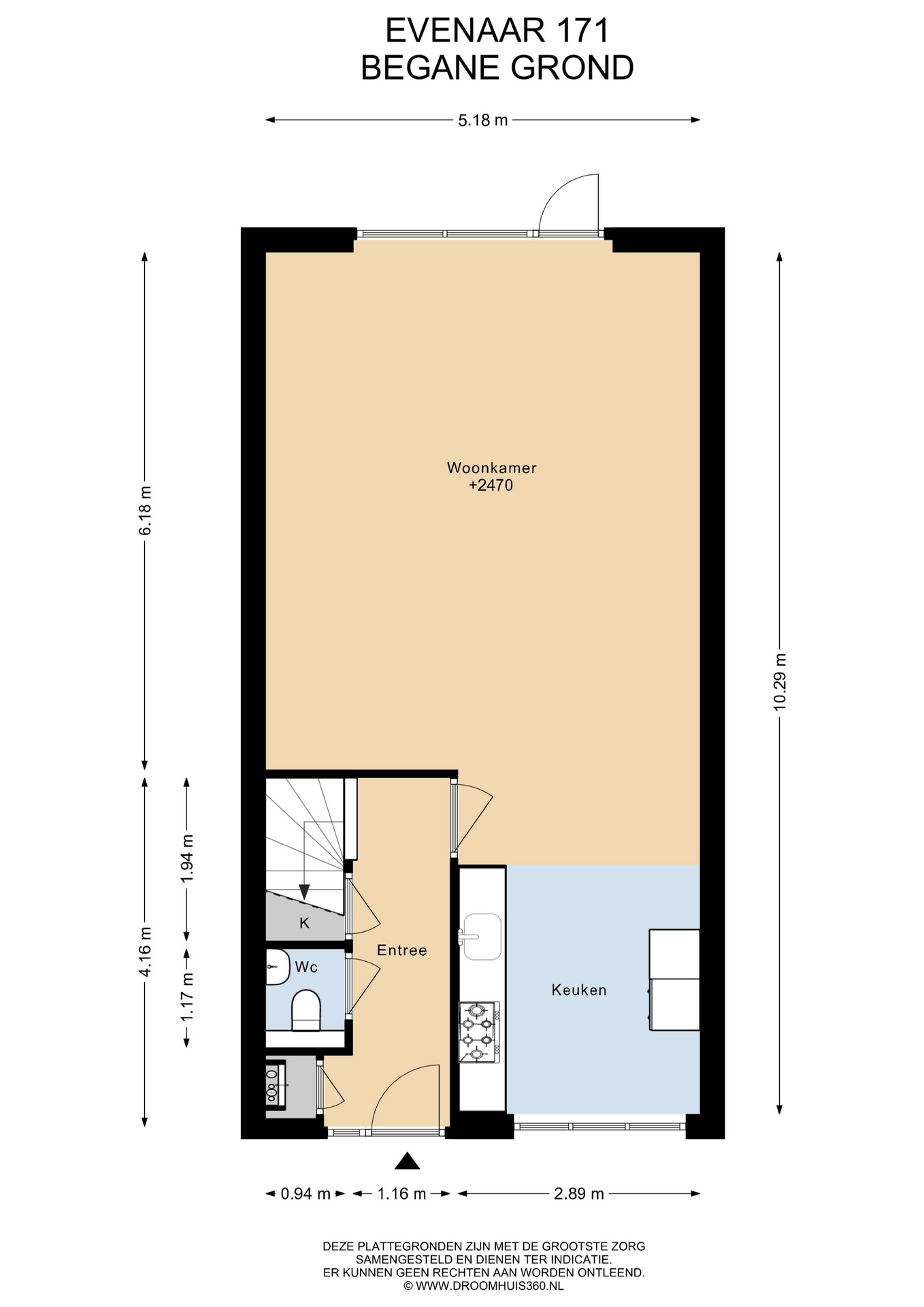
Via de voortuin op het zuiden, ideaal voor een gezellig zitje, bereik je de entree. In de hal tref je het toilet, praktische bergruimte en de trap naar boven. De lichte keuken ligt aan de voorzijde en is voorzien van alle gewenste inbouwapparatuur, met een groot raam voor veel daglicht. De uitgebouwde woonkamer biedt een ruime zithoek én een apart eetgedeelte. De grote raampartij aan de achterzijde en de deur naar de tuin maken deze leefruimte extra prettig en verbonden met buiten.

Op de eerste verdieping bevinden zich drie slaapkamers en de moderne badkamer (verbouwd in 2020). De slaapkamer aan de voorzijde beschikt over elektrische screens. Aan de achterzijde bevinden zich twee slaapkamers, waaronder de hoofdslaapkamer, beide uitgevoerd met een dakkapel, wat zorgt voor extra ruimte en licht. De badkamer is voorzien van een inloopdouche, tweede toilet, wastafelmeubel, een raam voor daglicht en ventilatie en vloerverwarming.
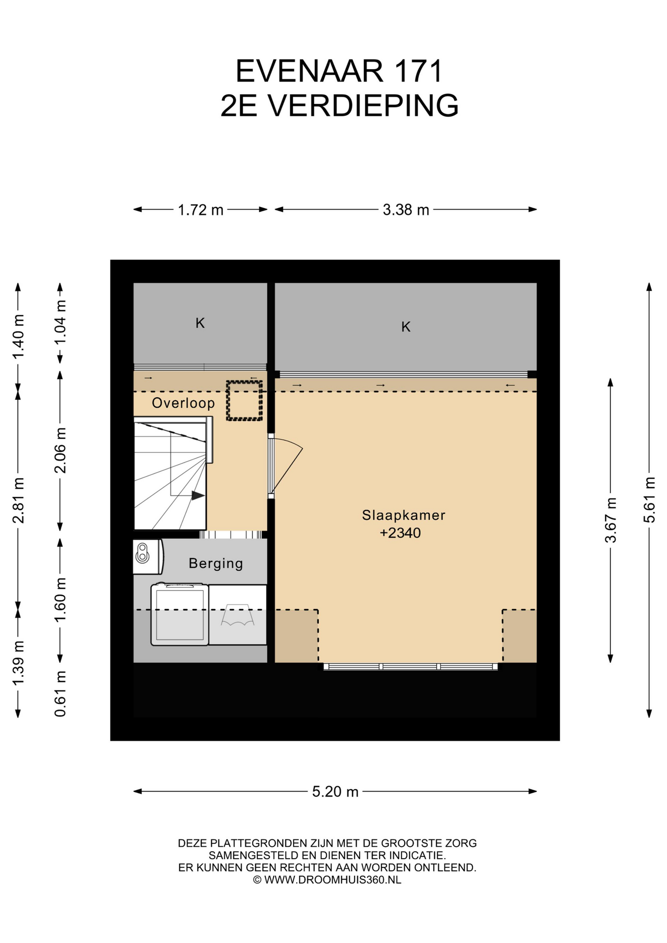
Via de vaste trap bereik je de tweede verdieping. Hier vind je een ruime slaapkamer met dakkapel (2023) voorzien van kunststof kozijnen en elektrische rolluiken, nette weggewerkte opbergruimtes, aansluitingen voor wasmachine en droger, de stookruimte, een dakraam en extra bergruimte.
De achtertuin is goed onderhouden, sfeervol aangelegd en voorzien van een onderhoudsvrije groenstrook. Er is volop ruimte voor een gezellige zithoek, een vrijstaande houten berging en achterom.

De ligging is ideaal: in de groene en kindvriendelijke wijk 't Weer met speeltuin in de buurt en vrij uitzicht aan de voorzijde. Het Máximapark ligt om de hoek – perfect voor wandelen, fietsen of sporten. Scholen, sportclubs, winkelcentrum Mereveldplein en Vleuterweide zijn binnen handbereik. Het moderne Leidsche Rijn Centrum en het bruisende centrum van Utrecht bereik je eenvoudig met fiets, bus of trein (meerdere stations nabij). De uitvalswegen (A2/A12) liggen vlakbij voor snelle verbindingen naar de Randstad.

Bijzonderheden:
- Tussenwoning met 108 m² woonoppervlak;
- Vier slaapkamers;
- Energielabel A;
- Moderne badkamer (verbouwd 2020);
- Dakkapellen voor én achter (2023);
- Vrijstaande houten berging met achterom;
- Gelegen in de geliefde wijk 't Weer, op korte afstand van Máximapark;
- Speeltuin in de buurt en vrij uitzicht aan de voorzijde;
- Uitstekende bereikbaarheid naar Utrecht en uitvalswegen;

Interesse in deze woning? Neem je eigen NVM-aankoopmakelaar mee!
brochure

Waar staat dit huis?

Evenaar 171, De Meern

Woningvideo

Plattegronden

Afspraak maken

Laat uw gegevens achter en wij nemen zo spoedig mogelijk contact met u op.