26

Rozenhof 64

Borne

Verkocht onder voorbehoud
  • SoortEengezinswoning , Woonhuis
  • Kosteninfo Verkocht onder voorbehoud
  • Woonoppervlakte130 m2
  • Perceel224 m2
  • Inhoud545 m3
  • Kamers5
  • Slaapkamers4
  • EnergielabelA
Woningen met een energielabel A of beter

Omschrijving

Hartje Bornsche Maten, aan een verkeersluw hofje in deelgebied Tuinstad, ligt deze tweekapper met maar liefst 4 royale slaapkamers én een garage! Aan de voorzijde kijk je heerlijk vrij weg over een groot speelplantsoen met diverse speeltoestellen en een ruim grasveld. Daarnaast kent de woning een centrale ligging ten opzichte van diverse onderwijs-, sport- en winkelvoorzieningen.

Op de begane grond vind je een ruime, uitgebouwde woonkamer die toegang biedt tot de achtertuin met prieel en de garage. Op de eerste verdieping bevinden zich 3 slaapkamers en een ruime badkamer. Op de tweede verdieping is de royale 4e slaapkamer gesitueerd, met volop mogelijkheden. De woning is volledig geïsoleerd en voorzien van zonnepanelen, waardoor je profiteert van lage woonlasten én een duurzame energievoorziening.

Indeling:
Begane grond: overdekt entree, hal met garderobenis, toilet met fontein, meterkast en trapopgang, tuingerichte woonkamer met trapkast en openslaande deuren, open keuken voorzien van 4-pits gaskookplaat, afzuigkap, combi-oven, vaatwasser en koel-vriescombinatie.
1e verdieping: overloop, 3 slaapkamers, badkamer met inloopdouche, wastafel, ligbad en toilet.
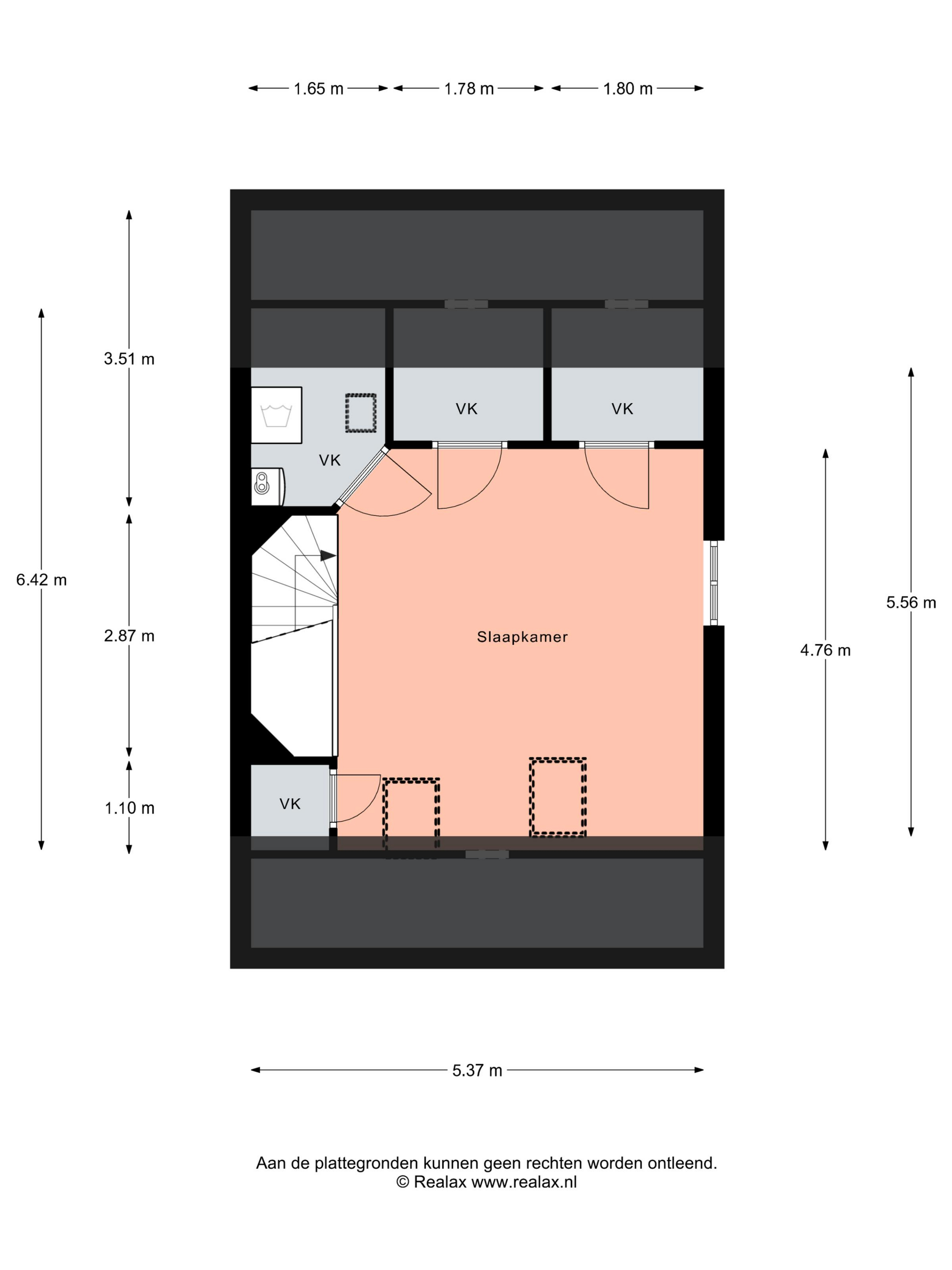
2e verdieping: middels vaste trap bereikbaar, separate ruimte met stookopstelling en wasmachine-opstelling, 4e (slaap)kamer met vaste kasten, dakramen en bergruimte achter de knieschotten.

Bijzonderheden:
- Nabij de uitvalswegen A1/A35;
- De woning is volledig geïsoleerd en beschikt over zonnepanelen;
- Perceeloppervlakte: door het kadaster nog uit te meten (ca. 227 m²) / uitmetingskosten voor rekening koper;
- Het betreft een voormalige huurwoning, keuken en badkamer zijn basaal maar functioneel;
- In de koopakte zal een 10% waarborgsom of bankgarantie worden opgenomen.
- Eigendomsoverdracht via notaris Kuhlmann Westerhof & de Kok.

Waar staat dit huis?

Rozenhof 64, Borne

Plattegronden

Afspraak maken

Laat uw gegevens achter en wij nemen zo spoedig mogelijk contact met u op.