34

Conducteur 19

Assendelft

€450.000 k.k.
  • SoortEengezinswoning , Woonhuis
  • Kosteninfo €450.000 k.k.
  • Woonoppervlakte86 m2
  • Perceel111 m2
  • Inhoud307 m3
  • Kamers4
  • Slaapkamers3
  • EnergielabelA++
Woningen met een energielabel A of beter

Omschrijving

Aan de Conducteur 19 in Assendelft staat een verzorgde en energiezuinige tussenwoning uit 2010 die je direct het gevoel van thuiskomen geeft. Zodra je binnenstapt tref je aan de voorzijde de ruime, moderne keuken die is uitgerust met alle gewenste inbouwapparatuur en uitnodigt tot uitgebreid koken. Aan de achterzijde bevindt zich de tuingerichte woonkamer, een fijne plek om te ontspannen met zicht op de strak aangelegde tuin. Dankzij de vloerverwarming (2021) en de airco-unit uit 2023 is het hier het hele jaar door comfortabel.

Op de eerste verdieping zijn drie goed bemeten slaapkamers te vinden, stuk voor stuk licht en praktisch in te delen. De nette badkamer is uitgerust met een douche, toilet en wastafel, waardoor het dagelijkse gemak voorop staat. Buiten geniet je van een zonnige achtertuin op het westen waar je vanaf de middag tot in de avond heerlijk kunt zitten. De vrijstaande houten berging met elektra biedt bovendien extra opbergruimte voor fietsen en gereedschap.

De woning ligt in de kindvriendelijke wijk Parkrijk, een rustige en groene omgeving met basisscholen, middelbare scholen, sportverenigingen en kinderopvang op korte afstand. Ook het winkelcentrum De Saen, met diverse supermarkten, speciaalzaken en horeca, ligt vlakbij. Dankzij de uitstekende ligging loop je binnen enkele minuten naar busverbindingen en het NS-station Krommenie–Assendelft, met snelle verbindingen richting Alkmaar, Zaandam en Amsterdam. Met de auto rijd je zó de A7, A8 of A9 op.

Met energielabel A++, acht zonnepanelen (2023) en moderne voorzieningen is dit een bijzonder duurzame en comfortabele gezinswoning op een aantrekkelijke plek in Assendelft—ideaal voor wie zorgeloos wil wonen met alle dagelijkse voorzieningen binnen handbereik.

Indeling
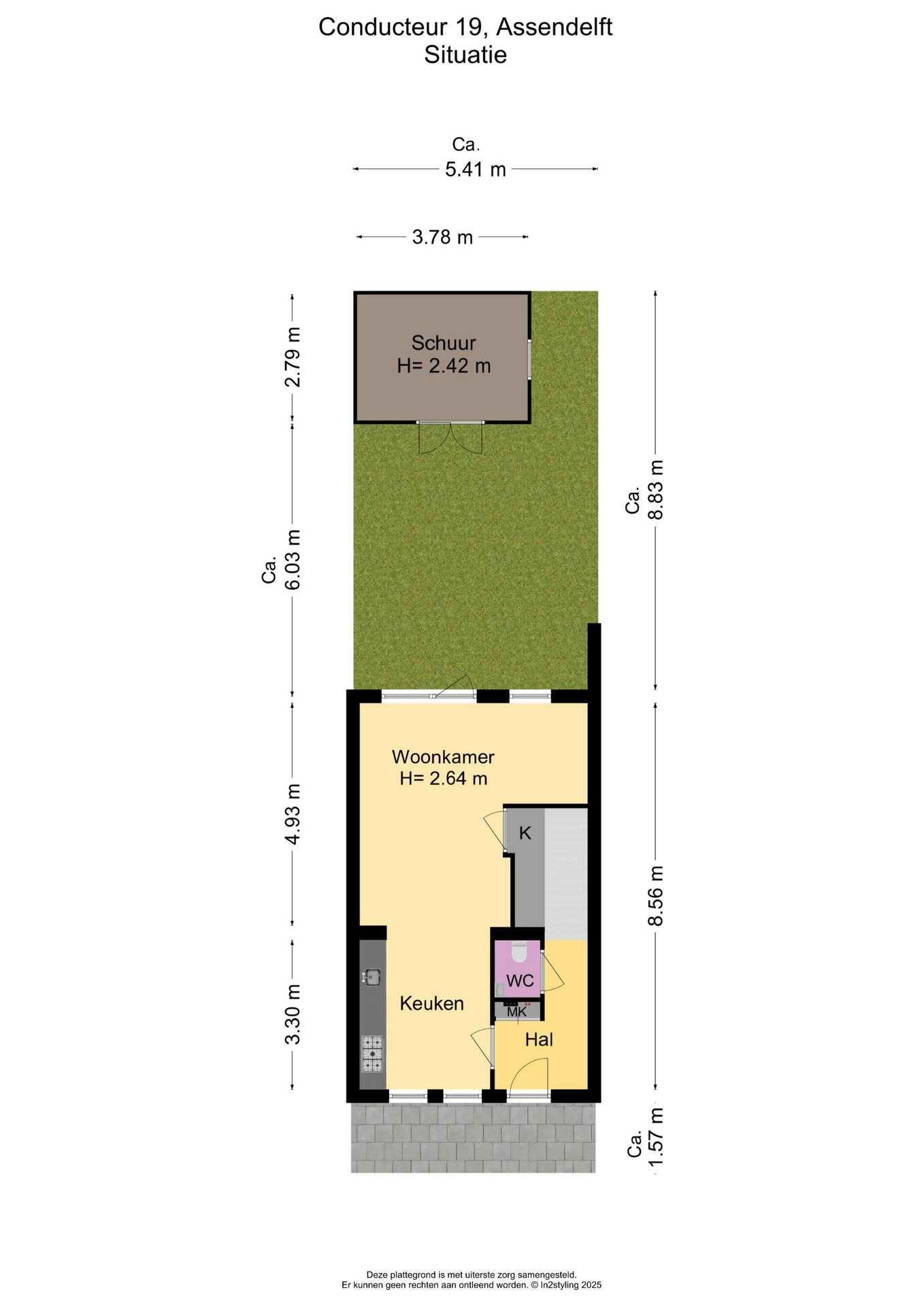
Begane grond: entree, hal, meterkast, toilet met fontein, trapopgang, toegang naar keuken v.v. inbouwapparatuur, tuingerichte woonkamer met trap/provisiekast.

Eerste verdieping: overloop, drie slaapkamers, aparte ruimte met opstelling WTW en cv-ketel en een badkamer v.v. toilet, wastafel en douche.

In de achtertuin staat een vrijstaande houten berging v.v. elektra.

Bijzonderheden
- energielabel A++
- 8 zonnepanelen 2023;
- airco unit (2023) woonkamer (warm/koud);
- nieuw toilet begane grond (2023);
- vloerverwarming (2021) begane grond;
- gelegen in een woonwijk;
- achtertuin gelegen op het westen;
- basisscholen, middelbare school, sportverenigingen en kinderopvang in de buurt;
- op korte afstand van winkelcentrum De Saen met supermarkten, speciaalzaken en horeca;
- NS-station Krommenie-Assendelft op loopafstand.

Interesse in deze woning?! Schakel direct uw eigen NVM-aankoopmakelaar in. Uw NVM-aankoopmakelaar komt op voor úw belang en bespaart u tijd, geld en zorgen. Adressen van collega NVM-aankoopmakelaars vindt u op Funda.
brochure

Waar staat dit huis?

Conducteur 19, Assendelft

Woningvideo

Plattegronden

Afspraak maken

Laat uw gegevens achter en wij nemen zo spoedig mogelijk contact met u op.